Log In/Sign Up
Your email has been sent.
PARK FACTS
| Total Space Available | 12,538 SF | Park Type | Industrial Park |
| Total Space Available | 12,538 SF |
| Park Type | Industrial Park |
ALL AVAILABLE SPACES(5)
Display Rental Rate as
Mesa Business Park I
310 S Nina Dr - Bldg C
2,438 - 12,538 SF
|
$19.11 CAD/SF/YR
$1.59 CAD/SF/MO
$205.66 CAD/m²/YR
$17.14 CAD/m²/MO
$3,882 - $19,963 CAD/MO
$46,581 - $239,552 CAD/YR
Building Type/Class
Industrial/B
Building Subtype
Warehouse
Building Size
29,704 SF
Lot Size
0.71 AC
Year Built
1981
Construction
Masonry
Clear Height
14’
Drive In Bays
12
Power Supply
Amps: 100 Volts: 120-208
Zoning
M-2 - M-2
- SPACE
- SIZE
- TERM
- RENTAL RATE
- SPACE USE
- CONDITION
- AVAILABLE
Suite 1 offers 2,438 SF of open industrial space
- Listed rate may not include certain utilities, building services and property expenses
- Private Restrooms
Reception, 1 Office
- Listed rate may not include certain utilities, building services and property expenses
- Reception Area
- 1 Drive Bay
Suite 2 offers 2,525 SF of open industrial space
- Listed rate may not include certain utilities, building services and property expenses
- Private Restrooms
Reception, 2 Offices, 1 Restroom
- Listed rate may not include certain utilities, building services and property expenses
- Private Restrooms
- Reception Area
- Listed rate may not include certain utilities, building services and property expenses
| Space | Size | Term | Rental Rate | Space Use | Condition | Available |
| 1st Floor - 1 | 2,438 SF | Negotiable | $19.11 CAD/SF/YR $1.59 CAD/SF/MO $46,581 CAD/YR $3,882 CAD/MO | Industrial | Partial Build-Out | Now |
| 1st Floor - 10 | 2,525 SF | Negotiable | $19.11 CAD/SF/YR $1.59 CAD/SF/MO $48,243 CAD/YR $4,020 CAD/MO | Industrial | Partial Build-Out | Now |
| 1st Floor - 2 | 2,525 SF | Negotiable | $19.11 CAD/SF/YR $1.59 CAD/SF/MO $48,243 CAD/YR $4,020 CAD/MO | Industrial | Partial Build-Out | Now |
| 1st Floor - 3 | 2,525 SF | Negotiable | $19.11 CAD/SF/YR $1.59 CAD/SF/MO $48,243 CAD/YR $4,020 CAD/MO | Industrial | Full Build-Out | Now |
| 1st Floor - 6 | 2,525 SF | Negotiable | $19.11 CAD/SF/YR $1.59 CAD/SF/MO $48,243 CAD/YR $4,020 CAD/MO | Industrial | Full Build-Out | Now |
Mesa Business Park I
310 S Nina Dr - Bldg C
2,438 - 12,538 SF
|
$19.11 CAD/SF/YR
$1.59 CAD/SF/MO
$205.66 CAD/m²/YR
$17.14 CAD/m²/MO
$3,882 - $19,963 CAD/MO
$46,581 - $239,552 CAD/YR
Building Type/Class
Industrial/B
Building Subtype
Warehouse
Building Size
29,704 SF
Lot Size
0.71 AC
Year Built
1981
Construction
Masonry
Clear Height
14’
Drive In Bays
12
Power Supply
Amps: 100 Volts: 120-208
Zoning
M-2 - M-2
310 S Nina Dr - 1st Floor - 1
Size
2,438 SF
Term
Negotiable
Rental Rate
$19.11 CAD/SF/YR
$1.59 CAD/SF/MO
$46,581 CAD/YR
$3,882 CAD/MO
Space Use
Industrial
Condition
Partial Build-Out
Available
Now
310 S Nina Dr - 1st Floor - 10
Size
2,525 SF
Term
Negotiable
Rental Rate
$19.11 CAD/SF/YR
$1.59 CAD/SF/MO
$48,243 CAD/YR
$4,020 CAD/MO
Space Use
Industrial
Condition
Partial Build-Out
Available
Now
310 S Nina Dr - 1st Floor - 2
Size
2,525 SF
Term
Negotiable
Rental Rate
$19.11 CAD/SF/YR
$1.59 CAD/SF/MO
$48,243 CAD/YR
$4,020 CAD/MO
Space Use
Industrial
Condition
Partial Build-Out
Available
Now
310 S Nina Dr - 1st Floor - 3
Size
2,525 SF
Term
Negotiable
Rental Rate
$19.11 CAD/SF/YR
$1.59 CAD/SF/MO
$48,243 CAD/YR
$4,020 CAD/MO
Space Use
Industrial
Condition
Full Build-Out
Available
Now
310 S Nina Dr - 1st Floor - 6
Size
2,525 SF
Term
Negotiable
Rental Rate
$19.11 CAD/SF/YR
$1.59 CAD/SF/MO
$48,243 CAD/YR
$4,020 CAD/MO
Space Use
Industrial
Condition
Full Build-Out
Available
Now
1 of 1
VIDEOS
MATTERPORT 3D EXTERIOR
MATTERPORT 3D TOUR
PHOTOS
STREET VIEW
STREET
MAP
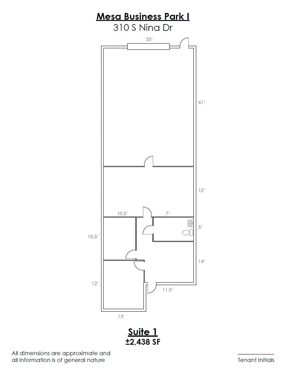
310 S Nina Dr - 1st Floor - 1
| Size | 2,438 SF |
| Term | Negotiable |
| Rental Rate | $19.11 CAD/SF/YR |
| Space Use | Industrial |
| Condition | Partial Build-Out |
| Available | Now |
Suite 1 offers 2,438 SF of open industrial space
- Listed rate may not include certain utilities, building services and property expenses
- Private Restrooms
310 S Nina Dr - 1st Floor - 10
| Size | 2,525 SF |
| Term | Negotiable |
| Rental Rate | $19.11 CAD/SF/YR |
| Space Use | Industrial |
| Condition | Partial Build-Out |
| Available | Now |
Reception, 1 Office
- Listed rate may not include certain utilities, building services and property expenses
- 1 Drive Bay
- Reception Area
1 of 1
VIDEOS
MATTERPORT 3D EXTERIOR
MATTERPORT 3D TOUR
PHOTOS
STREET VIEW
STREET
MAP
310 S Nina Dr - 1st Floor - 2
| Size | 2,525 SF |
| Term | Negotiable |
| Rental Rate | $19.11 CAD/SF/YR |
| Space Use | Industrial |
| Condition | Partial Build-Out |
| Available | Now |
Suite 2 offers 2,525 SF of open industrial space
- Listed rate may not include certain utilities, building services and property expenses
- Private Restrooms
1 of 1
VIDEOS
MATTERPORT 3D EXTERIOR
MATTERPORT 3D TOUR
PHOTOS
STREET VIEW
STREET
MAP
310 S Nina Dr - 1st Floor - 3
| Size | 2,525 SF |
| Term | Negotiable |
| Rental Rate | $19.11 CAD/SF/YR |
| Space Use | Industrial |
| Condition | Full Build-Out |
| Available | Now |
Reception, 2 Offices, 1 Restroom
- Listed rate may not include certain utilities, building services and property expenses
- Reception Area
- Private Restrooms
1 of 1
VIDEOS
MATTERPORT 3D EXTERIOR
MATTERPORT 3D TOUR
PHOTOS
STREET VIEW
STREET
MAP
310 S Nina Dr - 1st Floor - 6
| Size | 2,525 SF |
| Term | Negotiable |
| Rental Rate | $19.11 CAD/SF/YR |
| Space Use | Industrial |
| Condition | Full Build-Out |
| Available | Now |
- Listed rate may not include certain utilities, building services and property expenses
1 1
1 of 7
VIDEOS
MATTERPORT 3D EXTERIOR
MATTERPORT 3D TOUR
PHOTOS
STREET VIEW
STREET
MAP
1 of 1
Presented by
Mesa Business Park I | Mesa, AZ 85210
Already a member? Log In
Hmm, there seems to have been an error sending your message. Please try again.
Thanks! Your message was sent.











