Your email has been sent.
327 County Road 4851 2,800 SF of Industrial Space Available in Newark, TX 76071



Features
All Available Space(1)
Display Rental Rate as
- Space
- Size
- Term
- Rental Rate
- Space Use
- Build-Out
- Available
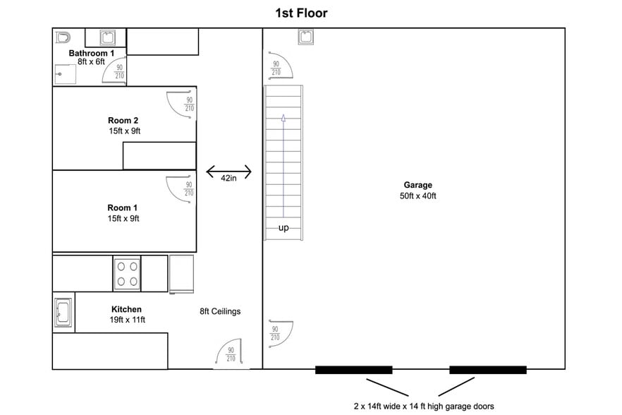
- 70 x 40ft building - 2 Story 2,800 Sq ft first story. 800 Sq ft 2nd story - Two 14' x 14' roll-up garage doors - Two bathroom and showers. - Power, water, internet, central Ac and heating for even the garage. - High ceilings - No zoning limits, unincorporated - Private yard available - stove and washing machine.
- Rate includes utilities, building services and property expenses
- 2 Drive Ins
- Central Air and Heating
- Wi-Fi Connectivity
- Shower Facilities
- Includes 800 SF of dedicated office space
- Space is in Excellent Condition
- Private Restrooms
- Natural Light
- Yard
| Space | Size | Term | Rental Rate | Space Use | Build-Out | Available |
| 1st Floor | 2,800 SF | Negotiable | $15.12 CAD/SF/YR $1.26 CAD/SF/MO $42,345 CAD/YR $3,529 CAD/MO | Industrial | Full Build-Out | Now |
1st Floor
| Size |
| 2,800 SF |
| Term |
| Negotiable |
| Rental Rate |
| $15.12 CAD/SF/YR $1.26 CAD/SF/MO $42,345 CAD/YR $3,529 CAD/MO |
| Space Use |
| Industrial |
| Build-Out |
| Full Build-Out |
| Available |
| Now |
1st Floor
| Size | 2,800 SF |
| Term | Negotiable |
| Rental Rate | $15.12 CAD/SF/YR |
| Space Use | Industrial |
| Build-Out | Full Build-Out |
| Available | Now |
- 70 x 40ft building - 2 Story 2,800 Sq ft first story. 800 Sq ft 2nd story - Two 14' x 14' roll-up garage doors - Two bathroom and showers. - Power, water, internet, central Ac and heating for even the garage. - High ceilings - No zoning limits, unincorporated - Private yard available - stove and washing machine.
- Rate includes utilities, building services and property expenses
- Includes 800 SF of dedicated office space
- 2 Drive Ins
- Space is in Excellent Condition
- Central Air and Heating
- Private Restrooms
- Wi-Fi Connectivity
- Natural Light
- Shower Facilities
- Yard
Property Overview
This versatile building features a 70’ x 40’ footprint with approximately 2,800 square feet on the first level and 800 square feet mezzanine. The property includes two 14’ x 14’ roll-up garage doors, high ceilings, two bathrooms with showers, and full utilities including power, water, internet, central air, and heating throughout, including the garage. Located in an unincorporated area with no zoning restrictions, the property also offers a private yard and is equipped with a stove and washing machine for added convenience.
Industrial Facility Facts
Presented by
Beamcrafts
327 County Road 4851
Hmm, there seems to have been an error sending your message. Please try again.
Thanks! Your message was sent.
