Log In/Sign Up
Your email has been sent.
Executive Summary
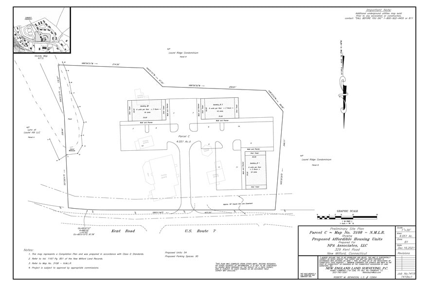
Multi family for redevelopment or rehab on 4 level acres. Preliminary engineering and surveys now available. The redevelopment proposes 50-60+ bedrooms based on approval and water capacity. Existing structures with 5 apartments are being served by private septics/wells. Aquarion water service located an adjacent parcel.
The main building was previously operated as The North Country Inn with 3 apartments above and a 5 year old roof. This portion was added to the original main house built in the 1600's with some original floors, beams and fire place. Previous owner roughed in 2 owner apt units upstairs. A second 2 family building has 2 apts recently vacated with a new roof and a 3rd unit roughed in. Single family house and retail/barn are also onsite and considered to be in tear down condition. All buyers should use due diligence on legal status of units.
The main building was previously operated as The North Country Inn with 3 apartments above and a 5 year old roof. This portion was added to the original main house built in the 1600's with some original floors, beams and fire place. Previous owner roughed in 2 owner apt units upstairs. A second 2 family building has 2 apts recently vacated with a new roof and a 3rd unit roughed in. Single family house and retail/barn are also onsite and considered to be in tear down condition. All buyers should use due diligence on legal status of units.
Property Facts
Amenities
Unit Amenities
- Fireplace
- Kitchen
- Refrigerator
- Basement
- Built-In Bookshelves
- Dining Room
- Office
1 1
Not walkable
10/100
Exceptionally drivable
100/100
Somewhat bikeable
20/100
Property Taxes
| Parcel Number | NMIL-000040-000000-000098-C000000 | Improvements Assessment | $361,139 CAD |
| Land Assessment | $292,465 CAD | Total Assessment | $653,604 CAD |
Property Taxes
Parcel Number
NMIL-000040-000000-000098-C000000
Land Assessment
$292,465 CAD
Improvements Assessment
$361,139 CAD
Total Assessment
$653,604 CAD
1 of 23
Videos
Matterport 3D Exterior
Matterport 3D Tour
Photos
Street View
Street
Map
1 of 1
Presented by
329 Kent Rd
Already a member? Log In
Hmm, there seems to have been an error sending your message. Please try again.
Thanks! Your message was sent.



