Your email has been sent.
Highlights
- Creative lease options allow flexibility to expand as business needs change.
- Variety of office sizes and layouts.
All Available Spaces(7)
Display Rental Rate as
- Space
- Size
- Term
- Rental Rate
- Space Use
- Build-Out
- Available
Ready to move in open-plan space
- Rate includes utilities, building services and property expenses
- Conference Rooms
- Central Air Conditioning
- Drop Ceilings
- Common Parts WC Facilities
- Ready to move in
- Open Floor Plan Layout
- Space is in Excellent Condition
- Fully Carpeted
- Natural Light
- Open-Plan
- Lots of natural light
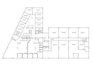
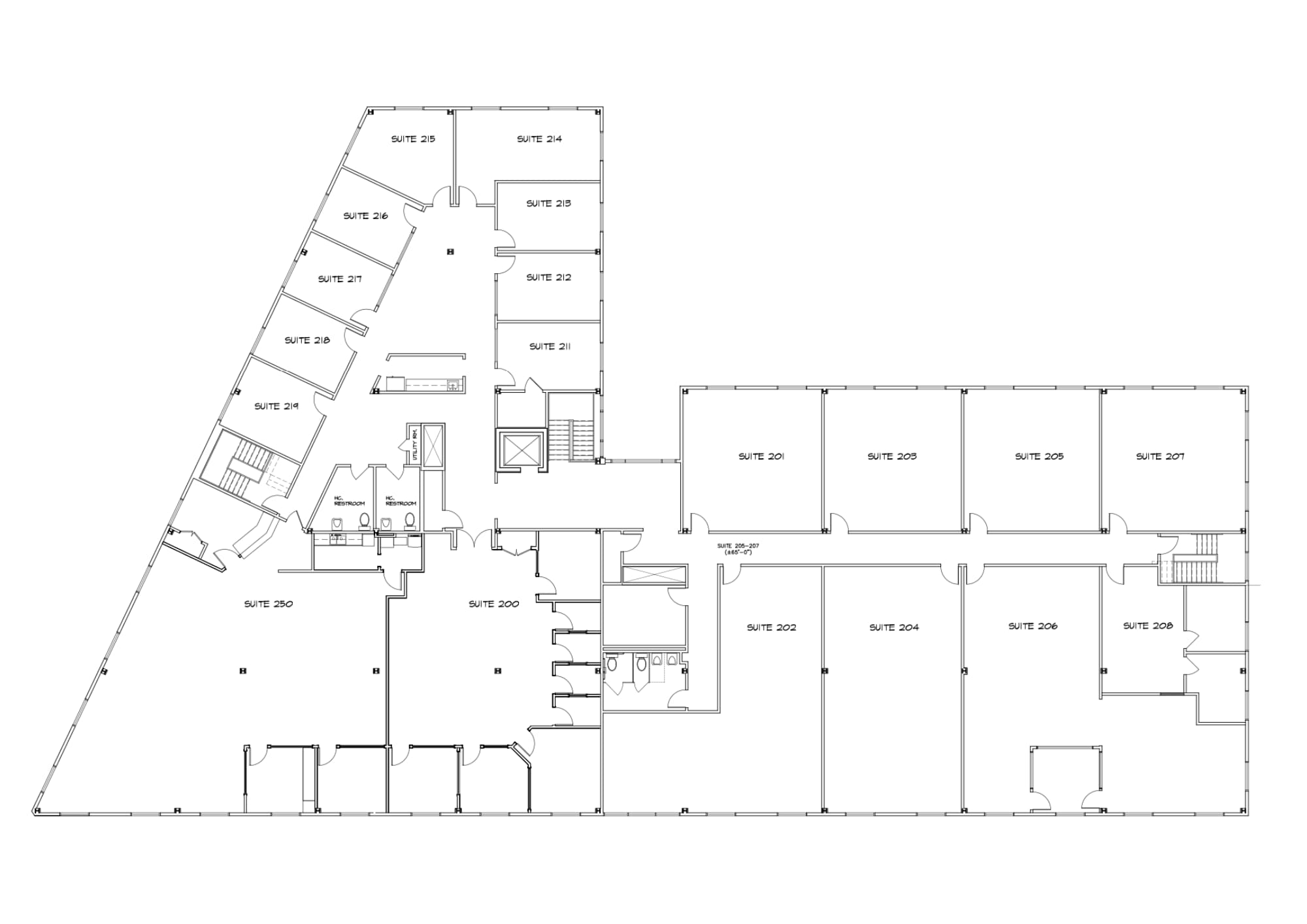
Positioned on 2.8 acres+/- at the crossroads of Hampton Road and County Road 39, 33 Flying Point Road is a distinguished professional office building encompassing 30,000 SF+/- across 2 levels. Comprised of 50 suites ranging from 200 SF+/- to 2,500 SF+/-, the property offers a thoughtful mix of layouts including private offices, open bullpen areas, conference space, lounge areas, and 2 shared kitchens—designed to accommodate both office and medical users in the heart of Southampton Village. Its scale and versatility are further enhanced by 180 private parking spaces, providing a level of convenience rarely found in this premier Hamptons location. Suite 200 offers 2,236 SF+/- of professional office space and features a large bullpen area complemented by several private offices overlooking the park. The space is light and bright, offering an inviting and functional environment ideal for collaborative teams or professional practices seeking a balance of openness and privacy. Centrally positioned within Southampton Village, this address offers exceptional accessibility with direct connections to both Southampton and Bridgehampton Villages. Located just minutes from the ocean, tenants can enjoy an unmatched work-life balance with nearby beaches perfect for lunch breaks or after-work sunsets. Stony Brook Southampton Hospital is just 1.3 miles+/- away, while convenient proximity to the Hampton Jitney stop and the LIRR station ensures efficient travel to and from New York City. 33 Flying Point Road presents a well-positioned professional office opportunity in the heart of Southampton Village. With flexible suite options, strong visibility, and convenient access to surrounding villages and transportation, the property offers a practical and compelling setting for a range of professional users.
- Lease rate does not include utilities, property expenses or building services
- 4 Private Offices
- Finished Ceilings: 8’ - 10’
- Central Air and Heating
- Natural Light
- Common Parts WC Facilities
- Available now
- Partially Built-Out as Standard Medical Space
- 1 Conference Room
- Space is in Excellent Condition
- Secure Storage
- After Hours HVAC Available
- Light, bright office with windows that open.
Positioned on 2.8 acres+/- at the crossroads of Hampton Road and County Road 39, 33 Flying Point Road is a distinguished professional office building encompassing 30,000 SF+/- across 2 levels. Comprised of 50 suites ranging from 200 SF+/- to 2,500 SF+/-, the property offers a thoughtful mix of layouts including private offices, open bullpen areas, conference space, lounge areas, and 2 shared kitchens—designed to accommodate both office and medical users in the heart of Southampton Village. Its scale and versatility are further enhanced by 180 private parking spaces, providing a level of convenience rarely found in this premier Hamptons location. Suites 200, 202, 204, and 206 offer a rare opportunity to lease 6,834SF+/- of contiguous professional office space comprised of three separate suites within 33 Flying Point Road. The combined footprint delivers scale and flexibility, featuring expansive open areas, excellent natural light, drop ceilings, and carpeted floors throughout. The configuration allows for internal connectivity while maintaining suite separation if desired, making it well suited for tenants seeking a larger, cohesive presence within Southampton Village. Plenty of parking is available on site. Centrally positioned within Southampton Village, this address offers exceptional accessibility with direct connections to both Southampton and Bridgehampton Villages. Located just minutes from the ocean, tenants can enjoy an unmatched work-life balance with nearby beaches perfect for lunch breaks or after-work sunsets. Stony Brook Southampton Hospital is just 1.3 miles+/- away, while convenient proximity to the Hampton Jitney stop and the LIRR station ensures efficient travel to and from New York City. 33 Flying Point Road presents a well-positioned professional office opportunity in the heart of Southampton Village. With flexible suite options, strong visibility, and convenient access to surrounding villages and transportation, the property offers a practical and compelling setting for a range of professional users.
- Finished Ceilings: 8’ - 10’
- Central Air and Heating
- Drop Ceilings
- Space is in Excellent Condition
- Fully Carpeted
Positioned on 2.8 acres+/- at the crossroads of Hampton Road and County Road 39, 33 Flying Point Road is a distinguished professional office building encompassing 30,000 SF+/- across 2 levels. Comprised of 50 suites ranging from 200 SF+/- to 2,500 SF+/-, the property offers a thoughtful mix of layouts including private offices, open bullpen areas, conference space, lounge areas, and 2 shared kitchens—designed to accommodate both office and medical users in the heart of Southampton Village. Its scale and versatility are further enhanced by 180 private parking spaces, providing a level of convenience rarely found in this premier Hamptons location. Suite 202 offers 1,366 SF+/- of bright, well configured office space with a combination of open work area and private rooms. The suite features drop ceilings, carpeted floors, and excellent natural light throughout, including oversized windows with views of the surrounding greenery. Plenty of parking is available on site. Centrally positioned within Southampton Village, this address offers exceptional accessibility with direct connections to both Southampton and Bridgehampton Villages. Located just minutes from the ocean, tenants can enjoy an unmatched work-life balance with nearby beaches perfect for lunch breaks or after-work sunsets. Stony Brook Southampton Hospital is just 1.3 miles+/- away, while convenient proximity to the Hampton Jitney stop and the LIRR station ensures efficient travel to and from New York City. 33 Flying Point Road presents a well-positioned professional office opportunity in the heart of Southampton Village. With flexible suite options, strong visibility, and convenient access to surrounding villages and transportation, the property offers a practical and compelling setting for a range of professional users.
- Partially Built-Out as Standard Medical Space
- Finished Ceilings: 8’ - 10’
- Central Air and Heating
- Common Parts WC Facilities
- 2 Private Offices
- Space is in Excellent Condition
- After Hours HVAC Available
- Available now
Positioned on 2.8 acres+/- at the crossroads of Hampton Road and County Road 39, 33 Flying Point Road is a distinguished professional office building encompassing 30,000 SF+/- across 2 levels. Comprised of 50 suites ranging from 200 SF+/- to 2,500 SF+/-, the property offers a thoughtful mix of layouts including private offices, open bullpen areas, conference space, lounge areas, and 2 shared kitchens—designed to accommodate both office and medical users in the heart of Southampton Village. Its scale and versatility are further enhanced by 180 private parking spaces, providing a level of convenience rarely found in this premier Hamptons location. Suite 203 offers 728 SF+/- of bright, efficient office space with an open floor plan, drop ceilings, and carpeted floors, well suited for a range of professional uses. Centrally positioned within Southampton Village, this address offers exceptional accessibility with direct connections to both Southampton and Bridgehampton Villages. Located just minutes from the ocean, tenants can enjoy an unmatched work-life balance with nearby beaches perfect for lunch breaks or after-work sunsets. Stony Brook Southampton Hospital is just 1.3 miles+/- away, while convenient proximity to the Hampton Jitney stop and the LIRR station ensures efficient travel to and from New York City. 33 Flying Point Road presents a well-positioned professional office opportunity in the heart of Southampton Village. With flexible suite options, strong visibility, and convenient access to surrounding villages and transportation, the property offers a practical and compelling setting for a range of professional users.
- Partially Built-Out as Standard Office
- Finished Ceilings: 8’ - 10’
- Available now
- 1 Private Office
- Space is in Excellent Condition
Positioned on 2.8 acres+/- at the crossroads of Hampton Road and County Road 39, 33 Flying Point Road is a distinguished professional office building encompassing 30,000 SF+/- across 2 levels. Comprised of 50 suites ranging from 200 SF+/- to 2,500 SF+/-, the property offers a thoughtful mix of layouts including private offices, open bullpen areas, conference space, lounge areas, and 2 shared kitchens—designed to accommodate both office and medical users in the heart of Southampton Village. Its scale and versatility are further enhanced by 180 private parking spaces, providing a level of convenience rarely found in this premier Hamptons location. Suite 204 offers 1,262 SF+/- of open, efficiently configured office space with a clean rectangular layout and excellent natural light along the window line. The suite’s straightforward footprint allows for a variety of professional uses. Plenty of parking is available on site. Centrally positioned within Southampton Village, this address offers exceptional accessibility with direct connections to both Southampton and Bridgehampton Villages. Located just minutes from the ocean, tenants can enjoy an unmatched work-life balance with nearby beaches perfect for lunch breaks or after-work sunsets. Stony Brook Southampton Hospital is just 1.3 miles+/- away, while convenient proximity to the Hampton Jitney stop and the LIRR station ensures efficient travel to and from New York City. 33 Flying Point Road presents a well-positioned professional office opportunity in the heart of Southampton Village. With flexible suite options, strong visibility, and convenient access to surrounding villages and transportation, the property offers a practical and compelling setting for a range of professional users.
- Partially Built-Out as Standard Office
- Finished Ceilings: 8’ - 10’
- Available now
- 1 Private Office
- Space is in Excellent Condition
Positioned on 2.8 acres+/- at the crossroads of Hampton Road and County Road 39, 33 Flying Point Road is a distinguished professional office building encompassing 30,000 SF+/- across 2 levels. Comprised of 50 suites ranging from 200 SF+/- to 2,500 SF+/-, the property offers a thoughtful mix of layouts including private offices, open bullpen areas, conference space, lounge areas, and 2 shared kitchens—designed to accommodate both office and medical users in the heart of Southampton Village. Its scale and versatility are further enhanced by 180 private parking spaces, providing a level of convenience rarely found in this premier Hamptons location. Suite 206 offers 1,830 SF+/- of expansive, open office space with a flexible layout suited for a variety of professional uses. The suite features drop ceilings, carpeted floors, and excellent natural light from multiple window exposures overlooking surrounding greenery. The largely open footprint allows for customization to accommodate tenant build out requirements. Plenty of parking is available on site. Centrally positioned within Southampton Village, this address offers exceptional accessibility with direct connections to both Southampton and Bridgehampton Villages. Located just minutes from the ocean, tenants can enjoy an unmatched work-life balance with nearby beaches perfect for lunch breaks or after-work sunsets. Stony Brook Southampton Hospital is just 1.3 miles+/- away, while convenient proximity to the Hampton Jitney stop and the LIRR station ensures efficient travel to and from New York City. 33 Flying Point Road presents a well-positioned professional office opportunity in the heart of Southampton Village. With flexible suite options, strong visibility, and convenient access to surrounding villages and transportation, the property offers a practical and compelling setting for a range of professional users.
- Fully Built-Out as Standard Office
- Finished Ceilings: 8’ - 10’
- Central Air and Heating
- Available now
- Open Floor Plan Layout
- Space is in Excellent Condition
- Flexible build out
| Space | Size | Term | Rental Rate | Space Use | Build-Out | Available |
| 1st Floor, Ste 124 | 182 SF | Negotiable | Upon Request Upon Request Upon Request Upon Request | Office | Shell Space | Now |
| 2nd Floor, Ste 200 | 2,236 SF | 1-10 Years | Upon Request Upon Request Upon Request Upon Request | Office/Medical | Partial Build-Out | Now |
| 2nd Floor, Ste 200, 202, 204, 206 | 6,834 SF | 1-10 Years | Upon Request Upon Request Upon Request Upon Request | Office | - | Now |
| 2nd Floor, Ste 202 | 1,366 SF | 1-10 Years | Upon Request Upon Request Upon Request Upon Request | Office/Medical | Partial Build-Out | Now |
| 2nd Floor, Ste 203 | 728 SF | 1-10 Years | Upon Request Upon Request Upon Request Upon Request | Office | Partial Build-Out | Now |
| 2nd Floor, Ste 204 | 1,262 SF | 1-10 Years | Upon Request Upon Request Upon Request Upon Request | Office | Partial Build-Out | Now |
| 2nd Floor, Ste 206 | 1,830 SF | 1-10 Years | Upon Request Upon Request Upon Request Upon Request | Office | Full Build-Out | Now |
1st Floor, Ste 124
| Size |
| 182 SF |
| Term |
| Negotiable |
| Rental Rate |
| Upon Request Upon Request Upon Request Upon Request |
| Space Use |
| Office |
| Build-Out |
| Shell Space |
| Available |
| Now |
2nd Floor, Ste 200
| Size |
| 2,236 SF |
| Term |
| 1-10 Years |
| Rental Rate |
| Upon Request Upon Request Upon Request Upon Request |
| Space Use |
| Office/Medical |
| Build-Out |
| Partial Build-Out |
| Available |
| Now |
2nd Floor, Ste 200, 202, 204, 206
| Size |
| 6,834 SF |
| Term |
| 1-10 Years |
| Rental Rate |
| Upon Request Upon Request Upon Request Upon Request |
| Space Use |
| Office |
| Build-Out |
| - |
| Available |
| Now |
2nd Floor, Ste 202
| Size |
| 1,366 SF |
| Term |
| 1-10 Years |
| Rental Rate |
| Upon Request Upon Request Upon Request Upon Request |
| Space Use |
| Office/Medical |
| Build-Out |
| Partial Build-Out |
| Available |
| Now |
2nd Floor, Ste 203
| Size |
| 728 SF |
| Term |
| 1-10 Years |
| Rental Rate |
| Upon Request Upon Request Upon Request Upon Request |
| Space Use |
| Office |
| Build-Out |
| Partial Build-Out |
| Available |
| Now |
2nd Floor, Ste 204
| Size |
| 1,262 SF |
| Term |
| 1-10 Years |
| Rental Rate |
| Upon Request Upon Request Upon Request Upon Request |
| Space Use |
| Office |
| Build-Out |
| Partial Build-Out |
| Available |
| Now |
2nd Floor, Ste 206
| Size |
| 1,830 SF |
| Term |
| 1-10 Years |
| Rental Rate |
| Upon Request Upon Request Upon Request Upon Request |
| Space Use |
| Office |
| Build-Out |
| Full Build-Out |
| Available |
| Now |
1st Floor, Ste 124
| Size | 182 SF |
| Term | Negotiable |
| Rental Rate | Upon Request |
| Space Use | Office |
| Build-Out | Shell Space |
| Available | Now |
Ready to move in open-plan space
- Rate includes utilities, building services and property expenses
- Open Floor Plan Layout
- Conference Rooms
- Space is in Excellent Condition
- Central Air Conditioning
- Fully Carpeted
- Drop Ceilings
- Natural Light
- Common Parts WC Facilities
- Open-Plan
- Ready to move in
- Lots of natural light
2nd Floor, Ste 200
| Size | 2,236 SF |
| Term | 1-10 Years |
| Rental Rate | Upon Request |
| Space Use | Office/Medical |
| Build-Out | Partial Build-Out |
| Available | Now |
Positioned on 2.8 acres+/- at the crossroads of Hampton Road and County Road 39, 33 Flying Point Road is a distinguished professional office building encompassing 30,000 SF+/- across 2 levels. Comprised of 50 suites ranging from 200 SF+/- to 2,500 SF+/-, the property offers a thoughtful mix of layouts including private offices, open bullpen areas, conference space, lounge areas, and 2 shared kitchens—designed to accommodate both office and medical users in the heart of Southampton Village. Its scale and versatility are further enhanced by 180 private parking spaces, providing a level of convenience rarely found in this premier Hamptons location. Suite 200 offers 2,236 SF+/- of professional office space and features a large bullpen area complemented by several private offices overlooking the park. The space is light and bright, offering an inviting and functional environment ideal for collaborative teams or professional practices seeking a balance of openness and privacy. Centrally positioned within Southampton Village, this address offers exceptional accessibility with direct connections to both Southampton and Bridgehampton Villages. Located just minutes from the ocean, tenants can enjoy an unmatched work-life balance with nearby beaches perfect for lunch breaks or after-work sunsets. Stony Brook Southampton Hospital is just 1.3 miles+/- away, while convenient proximity to the Hampton Jitney stop and the LIRR station ensures efficient travel to and from New York City. 33 Flying Point Road presents a well-positioned professional office opportunity in the heart of Southampton Village. With flexible suite options, strong visibility, and convenient access to surrounding villages and transportation, the property offers a practical and compelling setting for a range of professional users.
- Lease rate does not include utilities, property expenses or building services
- Partially Built-Out as Standard Medical Space
- 4 Private Offices
- 1 Conference Room
- Finished Ceilings: 8’ - 10’
- Space is in Excellent Condition
- Central Air and Heating
- Secure Storage
- Natural Light
- After Hours HVAC Available
- Common Parts WC Facilities
- Light, bright office with windows that open.
- Available now
2nd Floor, Ste 200, 202, 204, 206
| Size | 6,834 SF |
| Term | 1-10 Years |
| Rental Rate | Upon Request |
| Space Use | Office |
| Build-Out | - |
| Available | Now |
Positioned on 2.8 acres+/- at the crossroads of Hampton Road and County Road 39, 33 Flying Point Road is a distinguished professional office building encompassing 30,000 SF+/- across 2 levels. Comprised of 50 suites ranging from 200 SF+/- to 2,500 SF+/-, the property offers a thoughtful mix of layouts including private offices, open bullpen areas, conference space, lounge areas, and 2 shared kitchens—designed to accommodate both office and medical users in the heart of Southampton Village. Its scale and versatility are further enhanced by 180 private parking spaces, providing a level of convenience rarely found in this premier Hamptons location. Suites 200, 202, 204, and 206 offer a rare opportunity to lease 6,834SF+/- of contiguous professional office space comprised of three separate suites within 33 Flying Point Road. The combined footprint delivers scale and flexibility, featuring expansive open areas, excellent natural light, drop ceilings, and carpeted floors throughout. The configuration allows for internal connectivity while maintaining suite separation if desired, making it well suited for tenants seeking a larger, cohesive presence within Southampton Village. Plenty of parking is available on site. Centrally positioned within Southampton Village, this address offers exceptional accessibility with direct connections to both Southampton and Bridgehampton Villages. Located just minutes from the ocean, tenants can enjoy an unmatched work-life balance with nearby beaches perfect for lunch breaks or after-work sunsets. Stony Brook Southampton Hospital is just 1.3 miles+/- away, while convenient proximity to the Hampton Jitney stop and the LIRR station ensures efficient travel to and from New York City. 33 Flying Point Road presents a well-positioned professional office opportunity in the heart of Southampton Village. With flexible suite options, strong visibility, and convenient access to surrounding villages and transportation, the property offers a practical and compelling setting for a range of professional users.
- Finished Ceilings: 8’ - 10’
- Space is in Excellent Condition
- Central Air and Heating
- Fully Carpeted
- Drop Ceilings
2nd Floor, Ste 202
| Size | 1,366 SF |
| Term | 1-10 Years |
| Rental Rate | Upon Request |
| Space Use | Office/Medical |
| Build-Out | Partial Build-Out |
| Available | Now |
Positioned on 2.8 acres+/- at the crossroads of Hampton Road and County Road 39, 33 Flying Point Road is a distinguished professional office building encompassing 30,000 SF+/- across 2 levels. Comprised of 50 suites ranging from 200 SF+/- to 2,500 SF+/-, the property offers a thoughtful mix of layouts including private offices, open bullpen areas, conference space, lounge areas, and 2 shared kitchens—designed to accommodate both office and medical users in the heart of Southampton Village. Its scale and versatility are further enhanced by 180 private parking spaces, providing a level of convenience rarely found in this premier Hamptons location. Suite 202 offers 1,366 SF+/- of bright, well configured office space with a combination of open work area and private rooms. The suite features drop ceilings, carpeted floors, and excellent natural light throughout, including oversized windows with views of the surrounding greenery. Plenty of parking is available on site. Centrally positioned within Southampton Village, this address offers exceptional accessibility with direct connections to both Southampton and Bridgehampton Villages. Located just minutes from the ocean, tenants can enjoy an unmatched work-life balance with nearby beaches perfect for lunch breaks or after-work sunsets. Stony Brook Southampton Hospital is just 1.3 miles+/- away, while convenient proximity to the Hampton Jitney stop and the LIRR station ensures efficient travel to and from New York City. 33 Flying Point Road presents a well-positioned professional office opportunity in the heart of Southampton Village. With flexible suite options, strong visibility, and convenient access to surrounding villages and transportation, the property offers a practical and compelling setting for a range of professional users.
- Partially Built-Out as Standard Medical Space
- 2 Private Offices
- Finished Ceilings: 8’ - 10’
- Space is in Excellent Condition
- Central Air and Heating
- After Hours HVAC Available
- Common Parts WC Facilities
- Available now
2nd Floor, Ste 203
| Size | 728 SF |
| Term | 1-10 Years |
| Rental Rate | Upon Request |
| Space Use | Office |
| Build-Out | Partial Build-Out |
| Available | Now |
Positioned on 2.8 acres+/- at the crossroads of Hampton Road and County Road 39, 33 Flying Point Road is a distinguished professional office building encompassing 30,000 SF+/- across 2 levels. Comprised of 50 suites ranging from 200 SF+/- to 2,500 SF+/-, the property offers a thoughtful mix of layouts including private offices, open bullpen areas, conference space, lounge areas, and 2 shared kitchens—designed to accommodate both office and medical users in the heart of Southampton Village. Its scale and versatility are further enhanced by 180 private parking spaces, providing a level of convenience rarely found in this premier Hamptons location. Suite 203 offers 728 SF+/- of bright, efficient office space with an open floor plan, drop ceilings, and carpeted floors, well suited for a range of professional uses. Centrally positioned within Southampton Village, this address offers exceptional accessibility with direct connections to both Southampton and Bridgehampton Villages. Located just minutes from the ocean, tenants can enjoy an unmatched work-life balance with nearby beaches perfect for lunch breaks or after-work sunsets. Stony Brook Southampton Hospital is just 1.3 miles+/- away, while convenient proximity to the Hampton Jitney stop and the LIRR station ensures efficient travel to and from New York City. 33 Flying Point Road presents a well-positioned professional office opportunity in the heart of Southampton Village. With flexible suite options, strong visibility, and convenient access to surrounding villages and transportation, the property offers a practical and compelling setting for a range of professional users.
- Partially Built-Out as Standard Office
- 1 Private Office
- Finished Ceilings: 8’ - 10’
- Space is in Excellent Condition
- Available now
2nd Floor, Ste 204
| Size | 1,262 SF |
| Term | 1-10 Years |
| Rental Rate | Upon Request |
| Space Use | Office |
| Build-Out | Partial Build-Out |
| Available | Now |
Positioned on 2.8 acres+/- at the crossroads of Hampton Road and County Road 39, 33 Flying Point Road is a distinguished professional office building encompassing 30,000 SF+/- across 2 levels. Comprised of 50 suites ranging from 200 SF+/- to 2,500 SF+/-, the property offers a thoughtful mix of layouts including private offices, open bullpen areas, conference space, lounge areas, and 2 shared kitchens—designed to accommodate both office and medical users in the heart of Southampton Village. Its scale and versatility are further enhanced by 180 private parking spaces, providing a level of convenience rarely found in this premier Hamptons location. Suite 204 offers 1,262 SF+/- of open, efficiently configured office space with a clean rectangular layout and excellent natural light along the window line. The suite’s straightforward footprint allows for a variety of professional uses. Plenty of parking is available on site. Centrally positioned within Southampton Village, this address offers exceptional accessibility with direct connections to both Southampton and Bridgehampton Villages. Located just minutes from the ocean, tenants can enjoy an unmatched work-life balance with nearby beaches perfect for lunch breaks or after-work sunsets. Stony Brook Southampton Hospital is just 1.3 miles+/- away, while convenient proximity to the Hampton Jitney stop and the LIRR station ensures efficient travel to and from New York City. 33 Flying Point Road presents a well-positioned professional office opportunity in the heart of Southampton Village. With flexible suite options, strong visibility, and convenient access to surrounding villages and transportation, the property offers a practical and compelling setting for a range of professional users.
- Partially Built-Out as Standard Office
- 1 Private Office
- Finished Ceilings: 8’ - 10’
- Space is in Excellent Condition
- Available now
2nd Floor, Ste 206
| Size | 1,830 SF |
| Term | 1-10 Years |
| Rental Rate | Upon Request |
| Space Use | Office |
| Build-Out | Full Build-Out |
| Available | Now |
Positioned on 2.8 acres+/- at the crossroads of Hampton Road and County Road 39, 33 Flying Point Road is a distinguished professional office building encompassing 30,000 SF+/- across 2 levels. Comprised of 50 suites ranging from 200 SF+/- to 2,500 SF+/-, the property offers a thoughtful mix of layouts including private offices, open bullpen areas, conference space, lounge areas, and 2 shared kitchens—designed to accommodate both office and medical users in the heart of Southampton Village. Its scale and versatility are further enhanced by 180 private parking spaces, providing a level of convenience rarely found in this premier Hamptons location. Suite 206 offers 1,830 SF+/- of expansive, open office space with a flexible layout suited for a variety of professional uses. The suite features drop ceilings, carpeted floors, and excellent natural light from multiple window exposures overlooking surrounding greenery. The largely open footprint allows for customization to accommodate tenant build out requirements. Plenty of parking is available on site. Centrally positioned within Southampton Village, this address offers exceptional accessibility with direct connections to both Southampton and Bridgehampton Villages. Located just minutes from the ocean, tenants can enjoy an unmatched work-life balance with nearby beaches perfect for lunch breaks or after-work sunsets. Stony Brook Southampton Hospital is just 1.3 miles+/- away, while convenient proximity to the Hampton Jitney stop and the LIRR station ensures efficient travel to and from New York City. 33 Flying Point Road presents a well-positioned professional office opportunity in the heart of Southampton Village. With flexible suite options, strong visibility, and convenient access to surrounding villages and transportation, the property offers a practical and compelling setting for a range of professional users.
- Fully Built-Out as Standard Office
- Open Floor Plan Layout
- Finished Ceilings: 8’ - 10’
- Space is in Excellent Condition
- Central Air and Heating
- Flexible build out
- Available now
Property Overview
With an exceptional, central location (County Rd 39 at Hampton Rd) this professional office building offers multiple options from 200sf to 9,000sf – including medical use. High-speed IT interface, conference room, lounge, kitchen, elevator, secure access and private parking.
- Conferencing Facility
- Natural Light
- Air Conditioning
Property Facts
Presented by
33 Flying Point Rd
Hmm, there seems to have been an error sending your message. Please try again.
Thanks! Your message was sent.




















