Your email has been sent.
Northern Ontario Building 330 Bay St 1,393 - 40,631 SF of Office Space Available in Toronto, ON M5H 2S8



HIGHLIGHTS
- Heavy commercialized area
- Retail amenities nearby
- High exposure location
ALL AVAILABLE SPACES(10)
Display Rental Rate as
- SPACE
- SIZE
- TERM
- RENTAL RATE
- SPACE USE
- CONDITION
- AVAILABLE
Full floor opportunity, floor built out with 3 (6-8 person) meeting rooms, 6 (3-4 person) huddle rooms, 1 (14-16 person) executive boardroom, 3 phone rooms, open ceiling reception with large kitchen and lounge/games area, open space that fit 100 workstations
- Lease rate does not include utilities, property expenses or building services
- Mostly Open Floor Plan Layout
- 100 Workstations
- Central Air Conditioning
- Open space that fit 100 workstations
- Fully Built-Out as Standard Office
- 4 Conference Rooms
- Space is in Excellent Condition
- Full floor opportunity
- Lounge/games area
Suite built out with reception area, 4 large office, 1 boardroom, small open area and kitchenett
- Lease rate does not include utilities, property expenses or building services
- Mostly Open Floor Plan Layout
- 1 Conference Room
- Space is in Excellent Condition
- Central Air Conditioning
- Open space that fit 100 workstations
- Fully Built-Out as Standard Office
- 4 Private Offices
- 100 Workstations
- Can be combined with additional space(s) for up to 6,003 SF of adjacent space
- Full floor opportunity
- Lounge/games area
Built out with 6 offices, reception, open area and kitchen.
- Lease rate does not include utilities, property expenses or building services
- Mostly Open Floor Plan Layout
- Space is in Excellent Condition
- Central Air Conditioning
- Open space that fit 100 workstations
- Fully Built-Out as Standard Office
- 6 Private Offices
- Can be combined with additional space(s) for up to 6,003 SF of adjacent space
- Full floor opportunity
- Lounge/games area
Office space available with open area for workstations.
- Lease rate does not include utilities, property expenses or building services
- Mostly Open Floor Plan Layout
- Can be combined with additional space(s) for up to 6,003 SF of adjacent space
- Full floor opportunity
- Lounge/games area
- Fully Built-Out as Standard Office
- Space is in Excellent Condition
- Central Air Conditioning
- Open space that fit 100 workstations
Office space available for lease. Open space with open ceiling throughout, and concrete floors ready for finishing. Suite ready for fixturing, Landlord will turnkey. Contiguous with Suite 612 up to 6,861 S
- Lease rate does not include utilities, property expenses or building services
- Mostly Open Floor Plan Layout
- Central Air Conditioning
- Open space that fit 100 workstations
- Fully Built-Out as Standard Office
- Space is in Excellent Condition
- Full floor opportunity
- Lounge/games area
Corner unit overlooking the atrium
- Lease rate does not include utilities, property expenses or building services
- Open Floor Plan Layout
- Partially Built-Out as Standard Office
Corner suite with Elevator Exposure. Built with perimeter offices and kitchenette.
- Lease rate does not include utilities, property expenses or building services
- Mostly Open Floor Plan Layout
- Central Air Conditioning
- Open space that fit 100 workstations
- Fully Built-Out as Standard Office
- Space is in Excellent Condition
- Full floor opportunity
- Lounge/games area
Suite built out with reception area, perimeter offices, meeting rooms and kitchen area.
- Lease rate does not include utilities, property expenses or building services
- Reception Area
- Natural Light
- city views
- Plug & Play
- Kitchen
- Large windows
Open concept office space available for lease.
- Lease rate does not include utilities, property expenses or building services
- Open-Plan
- open floor plan
- Natural Light
- open floor plan
Full floor opportunity, ideal for data centre use.
- Lease rate does not include utilities, property expenses or building services
- Open Floor Plan Layout
| Space | Size | Term | Rental Rate | Space Use | Condition | Available |
| 3rd Floor, Ste 300 | 13,347 SF | 1-10 Years | Upon Request Upon Request Upon Request Upon Request | Office | Full Build-Out | Now |
| 5th Floor, Ste 507 | 2,288 SF | 1-10 Years | Upon Request Upon Request Upon Request Upon Request | Office | Full Build-Out | 30 Days |
| 5th Floor, Ste 509 | 2,322 SF | 1-10 Years | Upon Request Upon Request Upon Request Upon Request | Office | Full Build-Out | 30 Days |
| 5th Floor, Ste 510 | 1,393 SF | 1-10 Years | Upon Request Upon Request Upon Request Upon Request | Office | Full Build-Out | 2026-01-01 |
| 6th Floor, Ste 610 | 4,402 SF | 1-10 Years | Upon Request Upon Request Upon Request Upon Request | Office | Full Build-Out | Now |
| 8th Floor, Ste 812 | 2,969 SF | Negotiable | Upon Request Upon Request Upon Request Upon Request | Office | Partial Build-Out | Now |
| 12th Floor, Ste 1200 | 2,256 SF | 1-10 Years | Upon Request Upon Request Upon Request Upon Request | Office | Full Build-Out | Now |
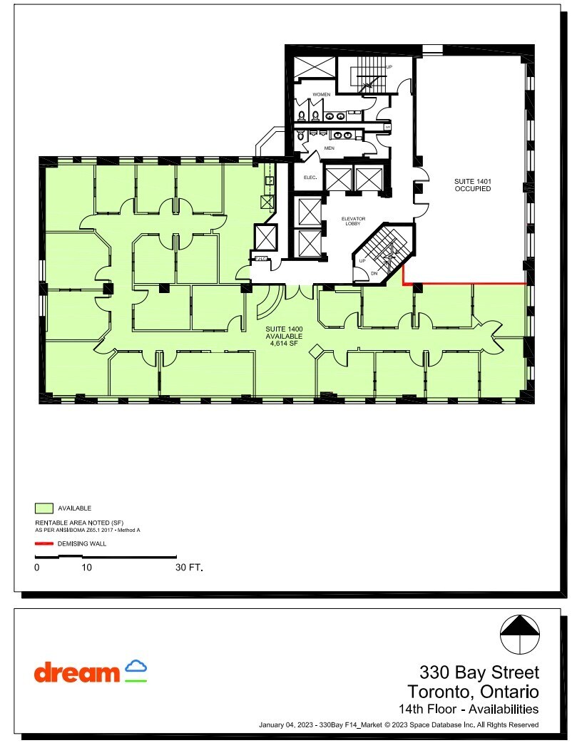
| 14th Floor, Ste 1400 | 4,614 SF | Negotiable | Upon Request Upon Request Upon Request Upon Request | Office | - | Now |
| 14th Floor, Ste 1401 | 1,464 SF | Negotiable | Upon Request Upon Request Upon Request Upon Request | Office | - | Now |
| 16th Floor, Ste 1600 | 5,576 SF | Negotiable | Upon Request Upon Request Upon Request Upon Request | Office | - | Now |
3rd Floor, Ste 300
| Size |
| 13,347 SF |
| Term |
| 1-10 Years |
| Rental Rate |
| Upon Request Upon Request Upon Request Upon Request |
| Space Use |
| Office |
| Condition |
| Full Build-Out |
| Available |
| Now |
5th Floor, Ste 507
| Size |
| 2,288 SF |
| Term |
| 1-10 Years |
| Rental Rate |
| Upon Request Upon Request Upon Request Upon Request |
| Space Use |
| Office |
| Condition |
| Full Build-Out |
| Available |
| 30 Days |
5th Floor, Ste 509
| Size |
| 2,322 SF |
| Term |
| 1-10 Years |
| Rental Rate |
| Upon Request Upon Request Upon Request Upon Request |
| Space Use |
| Office |
| Condition |
| Full Build-Out |
| Available |
| 30 Days |
5th Floor, Ste 510
| Size |
| 1,393 SF |
| Term |
| 1-10 Years |
| Rental Rate |
| Upon Request Upon Request Upon Request Upon Request |
| Space Use |
| Office |
| Condition |
| Full Build-Out |
| Available |
| 2026-01-01 |
6th Floor, Ste 610
| Size |
| 4,402 SF |
| Term |
| 1-10 Years |
| Rental Rate |
| Upon Request Upon Request Upon Request Upon Request |
| Space Use |
| Office |
| Condition |
| Full Build-Out |
| Available |
| Now |
8th Floor, Ste 812
| Size |
| 2,969 SF |
| Term |
| Negotiable |
| Rental Rate |
| Upon Request Upon Request Upon Request Upon Request |
| Space Use |
| Office |
| Condition |
| Partial Build-Out |
| Available |
| Now |
12th Floor, Ste 1200
| Size |
| 2,256 SF |
| Term |
| 1-10 Years |
| Rental Rate |
| Upon Request Upon Request Upon Request Upon Request |
| Space Use |
| Office |
| Condition |
| Full Build-Out |
| Available |
| Now |
14th Floor, Ste 1400
| Size |
| 4,614 SF |
| Term |
| Negotiable |
| Rental Rate |
| Upon Request Upon Request Upon Request Upon Request |
| Space Use |
| Office |
| Condition |
| - |
| Available |
| Now |
14th Floor, Ste 1401
| Size |
| 1,464 SF |
| Term |
| Negotiable |
| Rental Rate |
| Upon Request Upon Request Upon Request Upon Request |
| Space Use |
| Office |
| Condition |
| - |
| Available |
| Now |
16th Floor, Ste 1600
| Size |
| 5,576 SF |
| Term |
| Negotiable |
| Rental Rate |
| Upon Request Upon Request Upon Request Upon Request |
| Space Use |
| Office |
| Condition |
| - |
| Available |
| Now |
3rd Floor, Ste 300
| Size | 13,347 SF |
| Term | 1-10 Years |
| Rental Rate | Upon Request |
| Space Use | Office |
| Condition | Full Build-Out |
| Available | Now |
Full floor opportunity, floor built out with 3 (6-8 person) meeting rooms, 6 (3-4 person) huddle rooms, 1 (14-16 person) executive boardroom, 3 phone rooms, open ceiling reception with large kitchen and lounge/games area, open space that fit 100 workstations
- Lease rate does not include utilities, property expenses or building services
- Fully Built-Out as Standard Office
- Mostly Open Floor Plan Layout
- 4 Conference Rooms
- 100 Workstations
- Space is in Excellent Condition
- Central Air Conditioning
- Full floor opportunity
- Open space that fit 100 workstations
- Lounge/games area
5th Floor, Ste 507
| Size | 2,288 SF |
| Term | 1-10 Years |
| Rental Rate | Upon Request |
| Space Use | Office |
| Condition | Full Build-Out |
| Available | 30 Days |
Suite built out with reception area, 4 large office, 1 boardroom, small open area and kitchenett
- Lease rate does not include utilities, property expenses or building services
- Fully Built-Out as Standard Office
- Mostly Open Floor Plan Layout
- 4 Private Offices
- 1 Conference Room
- 100 Workstations
- Space is in Excellent Condition
- Can be combined with additional space(s) for up to 6,003 SF of adjacent space
- Central Air Conditioning
- Full floor opportunity
- Open space that fit 100 workstations
- Lounge/games area
5th Floor, Ste 509
| Size | 2,322 SF |
| Term | 1-10 Years |
| Rental Rate | Upon Request |
| Space Use | Office |
| Condition | Full Build-Out |
| Available | 30 Days |
Built out with 6 offices, reception, open area and kitchen.
- Lease rate does not include utilities, property expenses or building services
- Fully Built-Out as Standard Office
- Mostly Open Floor Plan Layout
- 6 Private Offices
- Space is in Excellent Condition
- Can be combined with additional space(s) for up to 6,003 SF of adjacent space
- Central Air Conditioning
- Full floor opportunity
- Open space that fit 100 workstations
- Lounge/games area
5th Floor, Ste 510
| Size | 1,393 SF |
| Term | 1-10 Years |
| Rental Rate | Upon Request |
| Space Use | Office |
| Condition | Full Build-Out |
| Available | 2026-01-01 |
Office space available with open area for workstations.
- Lease rate does not include utilities, property expenses or building services
- Fully Built-Out as Standard Office
- Mostly Open Floor Plan Layout
- Space is in Excellent Condition
- Can be combined with additional space(s) for up to 6,003 SF of adjacent space
- Central Air Conditioning
- Full floor opportunity
- Open space that fit 100 workstations
- Lounge/games area
6th Floor, Ste 610
| Size | 4,402 SF |
| Term | 1-10 Years |
| Rental Rate | Upon Request |
| Space Use | Office |
| Condition | Full Build-Out |
| Available | Now |
Office space available for lease. Open space with open ceiling throughout, and concrete floors ready for finishing. Suite ready for fixturing, Landlord will turnkey. Contiguous with Suite 612 up to 6,861 S
- Lease rate does not include utilities, property expenses or building services
- Fully Built-Out as Standard Office
- Mostly Open Floor Plan Layout
- Space is in Excellent Condition
- Central Air Conditioning
- Full floor opportunity
- Open space that fit 100 workstations
- Lounge/games area
8th Floor, Ste 812
| Size | 2,969 SF |
| Term | Negotiable |
| Rental Rate | Upon Request |
| Space Use | Office |
| Condition | Partial Build-Out |
| Available | Now |
Corner unit overlooking the atrium
- Lease rate does not include utilities, property expenses or building services
- Partially Built-Out as Standard Office
- Open Floor Plan Layout
12th Floor, Ste 1200
| Size | 2,256 SF |
| Term | 1-10 Years |
| Rental Rate | Upon Request |
| Space Use | Office |
| Condition | Full Build-Out |
| Available | Now |
Corner suite with Elevator Exposure. Built with perimeter offices and kitchenette.
- Lease rate does not include utilities, property expenses or building services
- Fully Built-Out as Standard Office
- Mostly Open Floor Plan Layout
- Space is in Excellent Condition
- Central Air Conditioning
- Full floor opportunity
- Open space that fit 100 workstations
- Lounge/games area
14th Floor, Ste 1400
| Size | 4,614 SF |
| Term | Negotiable |
| Rental Rate | Upon Request |
| Space Use | Office |
| Condition | - |
| Available | Now |
Suite built out with reception area, perimeter offices, meeting rooms and kitchen area.
- Lease rate does not include utilities, property expenses or building services
- Plug & Play
- Reception Area
- Kitchen
- Natural Light
- Large windows
- city views
14th Floor, Ste 1401
| Size | 1,464 SF |
| Term | Negotiable |
| Rental Rate | Upon Request |
| Space Use | Office |
| Condition | - |
| Available | Now |
Open concept office space available for lease.
- Lease rate does not include utilities, property expenses or building services
- Natural Light
- Open-Plan
- open floor plan
- open floor plan
16th Floor, Ste 1600
| Size | 5,576 SF |
| Term | Negotiable |
| Rental Rate | Upon Request |
| Space Use | Office |
| Condition | - |
| Available | Now |
Full floor opportunity, ideal for data centre use.
- Lease rate does not include utilities, property expenses or building services
- Open Floor Plan Layout
PROPERTY OVERVIEW
Prominently located in Toronto’s financial core, 330 Bay offers tenants with all the modern amenities of today, while also featuring the elegant finishes of the 1920s. The Building also offers close proximity to the Eaton Centre and is just minutes away from flagship hotels, restaurants, major financial services and convenient access to Toronto’s PATH System.
- Banking
- Bus Line
- Concierge
- Fitness Center
- Metro/Subway
- Restaurant
- Security System
- Wi-Fi
- Air Conditioning
PROPERTY FACTS
SELECT TENANTS
- FLOOR
- TENANT NAME
- 2nd
- Altair Engineering, Inc.
- 15th
- Canada China Business Council
- 8th
- Colliers Project Leaders
- 6th
- Corporate Consultants
- 14th
- Davis Barristers
- 11th
- First Quantum Minerals
- 2nd
- O'Donohue & O'Donohue
- 14th
- Tippet Foundation
- 8th
- TMF Canada
- 6th
- Training Centres of Canada
Presented by
Northern Ontario Building | 330 Bay St
Hmm, there seems to have been an error sending your message. Please try again.
Thanks! Your message was sent.




















