Your email has been sent.
3300 Boul de la Côte-Vertu 1,808 - 37,068 SF of Office Space Available in Montréal, QC H4R 2B7



Highlights
- Pylon signage available for enhanced visibility
- Surrounded by restaurants, retail, and essential services
- Ample indoor and outdoor parking for tenants and visitors
- Immediate access to Autoroutes 15, 520, and the Metropolitan
- Walking distance to public transportation options
All Available Spaces(4)
Display Rental Rate as
- Space
- Size
- Term
- Rental Rate
- Space Use
- Build-Out
- Available
Layout suitable for professional services or administrative use. Positioned near shared amenities and adjacent to other occupied suites, offering potential synergy for multi-tenant operations.
- Partially Built-Out as Standard Office
- Turnkey office space with modern finishes
- Excellent access to major highways and transit
- Mostly Open Floor Plan Layout
- Secure entry with magnetic card system
This multi-tenant building features a wide range of suite sizes from 1,215 to 26,300 square feet, making it ideal for both growing firms and established operations seeking flexible layouts.
- Partially Built-Out as Standard Office
- Turnkey office space with modern finishes
- Secure entry with magnetic card system
- Mostly Open Floor Plan Layout
- Excellent access to major highways and transit
Mid-size suite with flexible configuration options. Located on a higher floor with potential for signage visibility and natural light.
- Partially Built-Out as Standard Office
- Turnkey office space with modern finishes
- Secure entry with magnetic card system
- Mostly Open Floor Plan Layout
- Excellent access to major highways and transit
Suite sizes ranging from 1,215 to 26,300 square feet, making it ideal for both growing firms and established operations seeking flexible layouts.
- Partially Built-Out as Standard Office
- Turnkey office space with modern finishes
- Secure entry with magnetic card system
- Mostly Open Floor Plan Layout
- Excellent access to major highways and transit
| Space | Size | Term | Rental Rate | Space Use | Build-Out | Available |
| 2nd Floor, Ste 203 | 5,119 SF | Negotiable | Upon Request Upon Request Upon Request Upon Request | Office | Partial Build-Out | Now |
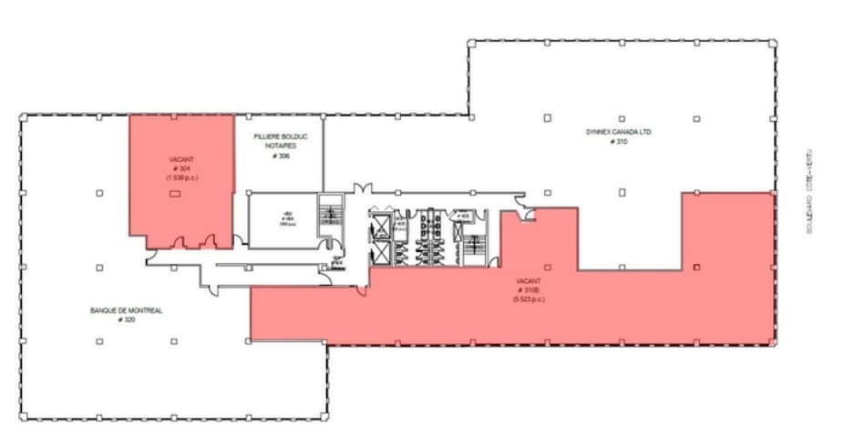
| 3rd Floor, Ste 304 | 1,808 SF | Negotiable | Upon Request Upon Request Upon Request Upon Request | Office | Partial Build-Out | Now |
| 3rd Floor, Ste 310 | 5,735 SF | Negotiable | Upon Request Upon Request Upon Request Upon Request | Office | Partial Build-Out | Now |
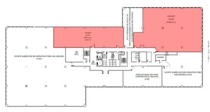
| 4th Floor, Ste 406 | 24,406 SF | Negotiable | Upon Request Upon Request Upon Request Upon Request | Office | Partial Build-Out | Now |
2nd Floor, Ste 203
| Size |
| 5,119 SF |
| Term |
| Negotiable |
| Rental Rate |
| Upon Request Upon Request Upon Request Upon Request |
| Space Use |
| Office |
| Build-Out |
| Partial Build-Out |
| Available |
| Now |
3rd Floor, Ste 304
| Size |
| 1,808 SF |
| Term |
| Negotiable |
| Rental Rate |
| Upon Request Upon Request Upon Request Upon Request |
| Space Use |
| Office |
| Build-Out |
| Partial Build-Out |
| Available |
| Now |
3rd Floor, Ste 310
| Size |
| 5,735 SF |
| Term |
| Negotiable |
| Rental Rate |
| Upon Request Upon Request Upon Request Upon Request |
| Space Use |
| Office |
| Build-Out |
| Partial Build-Out |
| Available |
| Now |
4th Floor, Ste 406
| Size |
| 24,406 SF |
| Term |
| Negotiable |
| Rental Rate |
| Upon Request Upon Request Upon Request Upon Request |
| Space Use |
| Office |
| Build-Out |
| Partial Build-Out |
| Available |
| Now |
2nd Floor, Ste 203
| Size | 5,119 SF |
| Term | Negotiable |
| Rental Rate | Upon Request |
| Space Use | Office |
| Build-Out | Partial Build-Out |
| Available | Now |
Layout suitable for professional services or administrative use. Positioned near shared amenities and adjacent to other occupied suites, offering potential synergy for multi-tenant operations.
- Partially Built-Out as Standard Office
- Mostly Open Floor Plan Layout
- Turnkey office space with modern finishes
- Secure entry with magnetic card system
- Excellent access to major highways and transit
3rd Floor, Ste 304
| Size | 1,808 SF |
| Term | Negotiable |
| Rental Rate | Upon Request |
| Space Use | Office |
| Build-Out | Partial Build-Out |
| Available | Now |
This multi-tenant building features a wide range of suite sizes from 1,215 to 26,300 square feet, making it ideal for both growing firms and established operations seeking flexible layouts.
- Partially Built-Out as Standard Office
- Mostly Open Floor Plan Layout
- Turnkey office space with modern finishes
- Excellent access to major highways and transit
- Secure entry with magnetic card system
3rd Floor, Ste 310
| Size | 5,735 SF |
| Term | Negotiable |
| Rental Rate | Upon Request |
| Space Use | Office |
| Build-Out | Partial Build-Out |
| Available | Now |
Mid-size suite with flexible configuration options. Located on a higher floor with potential for signage visibility and natural light.
- Partially Built-Out as Standard Office
- Mostly Open Floor Plan Layout
- Turnkey office space with modern finishes
- Excellent access to major highways and transit
- Secure entry with magnetic card system
4th Floor, Ste 406
| Size | 24,406 SF |
| Term | Negotiable |
| Rental Rate | Upon Request |
| Space Use | Office |
| Build-Out | Partial Build-Out |
| Available | Now |
Suite sizes ranging from 1,215 to 26,300 square feet, making it ideal for both growing firms and established operations seeking flexible layouts.
- Partially Built-Out as Standard Office
- Mostly Open Floor Plan Layout
- Turnkey office space with modern finishes
- Excellent access to major highways and transit
- Secure entry with magnetic card system
Property Overview
Located in the heart of Saint-Laurent, one of Montréal’s most dynamic commercial districts, 3300 Boulevard de la Côte-Vertu offers a versatile office environment with immediate access to major transportation routes and urban amenities.
- Banking
- Bus Line
- Concierge
- Metro/Subway
- Restaurant
- Security System
- Signage
- Heating
- Wheelchair Accessible
- Recycling
- Smoke Free
- Elevator
- On-Site ATM
- Office
- Bicycle Storage
- Public Transportation
- Air Conditioning
- Fiber Optic Internet
- Smoke Detector
Property Facts
Select Tenants
- Floor
- Tenant Name
- Industry
- 1st
- Action Sport Physio
- Health Care and Social Assistance
- 3rd
- Bank of Montreal
- Finance and Insurance
- 4th
- Gamma Entertainment
- Professional, Scientific, and Technical Services
- 2nd
- Inteplast
- Manufacturing
- 3rd
- Pilliere Bolduc Notaires
- Professional, Scientific, and Technical Services
- 2nd
- Revenu Québec
- Public Administration
- 4th
- Seedbox Technologies
- Professional, Scientific, and Technical Services
- 2nd
- Sppenom
- Services
- 1st
- Syntronic Recherche Et Développement Canada
- Professional, Scientific, and Technical Services
- 3rd
- TD Syntex
- Information
Presented by
3300 Boul de la Côte-Vertu
Hmm, there seems to have been an error sending your message. Please try again.
Thanks! Your message was sent.







