Your email has been sent.
Highlights
- Knickerbocker & Dekalb corner, Wrap-around Windows
- Individual HVAC
- Signage Opportunity
- ADA Compliant and Elevator building
- L & M Train station & B38 bus
- Local to Wyckoff Hospital and NYC Health Hospital
All Available Space(1)
Display Rental Rate as
- Space
- Size
- Term
- Rental Rate
- Space Use
- Build-Out
- Available
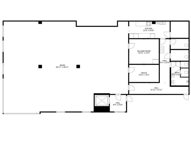
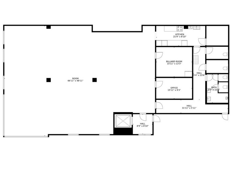
This 5,000 square foot second-floor corner suite is designed for tenants who want space that feels open, bright, and adaptable from day one. Wrapped in windows along two frontages, the suite benefits from abundant natural light throughout the day. Finished ceilings rise approximately 13 feet, and exposed ceiling elements create a modern, creative aesthetic while maintaining a professional environment. The result is a space that feels expansive, not confined. Direct elevator access brings visitors straight to the suite, reinforcing privacy and convenience. The building is fully ADA compliant and wheelchair accessible. The floorplate is efficient and primarily open, allowing for a range of configurations — collaborative open office, private executive offices, medical exam rooms, treatment suites, classrooms, lab build-out, showroom layout, or hybrid workspace. The infrastructure is already in place, including private demised restrooms, common area facilities, individual HVAC control, central air and heating, after-hours HVAC availability, smoke detection, emergency lighting, security system, and CCTV monitoring. The suite is in excellent condition and currently built out as a standard office, providing a clean canvas for customization or immediate occupancy. For medical and healthcare users, proximity to Wyckoff Heights Medical Center and NYC Health + Hospitals strengthens referral and operational logistics. For creative or professional users, the corner exposure and street-visible signage opportunity enhance brand presence beyond the interior footprint. This is not just functional square footage — it is high-ceilinged, light-filled, adaptable space with real visibility on one of Bushwick’s strongest corridors.
- Fully Built-Out as Standard Office
- Fits 250 - 500 People
- Space is in Excellent Condition
- Laboratory
- Private Restrooms
- Closed Circuit Television Monitoring (CCTV)
- High Ceilings
- Natural Light
- Emergency Lighting
- Common Parts WC Facilities
- Private Restrooms
- Smoke Detector
- Knickerbocker & Dekalb corner, wrap-around windows
- Individual HVAC in place
- L & M Train station & B38 bus
- Mostly Open Floor Plan Layout
- Finished Ceilings: 14’
- Central Air and Heating
- Wi-Fi Connectivity
- Security System
- Corner Space
- Exposed Ceiling
- After Hours HVAC Available
- Accent Lighting
- DDA Compliant
- Open-Plan
- Wheelchair Accessible
- ADA Compliant and Elevator building
- Signage Opportunity
- Local to Wyckoff Hospital and NYC Health Hospital
| Space | Size | Term | Rental Rate | Space Use | Build-Out | Available |
| 2nd Floor | 5,000 SF | Negotiable | Upon Request Upon Request Upon Request Upon Request | Office | Full Build-Out | Now |
2nd Floor
| Size |
| 5,000 SF |
| Term |
| Negotiable |
| Rental Rate |
| Upon Request Upon Request Upon Request Upon Request |
| Space Use |
| Office |
| Build-Out |
| Full Build-Out |
| Available |
| Now |
2nd Floor
| Size | 5,000 SF |
| Term | Negotiable |
| Rental Rate | Upon Request |
| Space Use | Office |
| Build-Out | Full Build-Out |
| Available | Now |
This 5,000 square foot second-floor corner suite is designed for tenants who want space that feels open, bright, and adaptable from day one. Wrapped in windows along two frontages, the suite benefits from abundant natural light throughout the day. Finished ceilings rise approximately 13 feet, and exposed ceiling elements create a modern, creative aesthetic while maintaining a professional environment. The result is a space that feels expansive, not confined. Direct elevator access brings visitors straight to the suite, reinforcing privacy and convenience. The building is fully ADA compliant and wheelchair accessible. The floorplate is efficient and primarily open, allowing for a range of configurations — collaborative open office, private executive offices, medical exam rooms, treatment suites, classrooms, lab build-out, showroom layout, or hybrid workspace. The infrastructure is already in place, including private demised restrooms, common area facilities, individual HVAC control, central air and heating, after-hours HVAC availability, smoke detection, emergency lighting, security system, and CCTV monitoring. The suite is in excellent condition and currently built out as a standard office, providing a clean canvas for customization or immediate occupancy. For medical and healthcare users, proximity to Wyckoff Heights Medical Center and NYC Health + Hospitals strengthens referral and operational logistics. For creative or professional users, the corner exposure and street-visible signage opportunity enhance brand presence beyond the interior footprint. This is not just functional square footage — it is high-ceilinged, light-filled, adaptable space with real visibility on one of Bushwick’s strongest corridors.
- Fully Built-Out as Standard Office
- Mostly Open Floor Plan Layout
- Fits 250 - 500 People
- Finished Ceilings: 14’
- Space is in Excellent Condition
- Central Air and Heating
- Laboratory
- Wi-Fi Connectivity
- Private Restrooms
- Security System
- Closed Circuit Television Monitoring (CCTV)
- Corner Space
- High Ceilings
- Exposed Ceiling
- Natural Light
- After Hours HVAC Available
- Emergency Lighting
- Accent Lighting
- Common Parts WC Facilities
- DDA Compliant
- Private Restrooms
- Open-Plan
- Smoke Detector
- Wheelchair Accessible
- Knickerbocker & Dekalb corner, wrap-around windows
- ADA Compliant and Elevator building
- Individual HVAC in place
- Signage Opportunity
- L & M Train station & B38 bus
- Local to Wyckoff Hospital and NYC Health Hospital
Property Overview
331 Knickerbocker Avenue stands at the highly visible corner of Knickerbocker & Dekalb — one of Bushwick’s most active intersections. With two full frontages and steady pedestrian and vehicle traffic throughout the day, the property delivers the kind of exposure businesses actively seek. This is a true corner building with wrap-around window lines and clear street-visible signage opportunities. Your branding is not buried — it is seen from multiple approaches, giving tenants a presence that carries beyond the immediate block. The building is elevator-served and fully ADA compliant, offering accessible entry for clients, patients, students, and staff. The infrastructure supports professional, medical, educational, and creative users who need both visibility and functionality. Positioned steps from the L and M train station at Myrtle–Wyckoff and served by the B38 bus line, the property benefits from strong public transit connectivity. Employees and visitors can access the building easily from Williamsburg, Ridgewood, Bed-Stuy, and throughout Brooklyn and Queens. The surrounding neighborhood continues to evolve as a dynamic residential and commercial hub. The property is located near Wyckoff Heights Medical Center and NYC Health + Hospitals, making it particularly attractive for healthcare and wellness operators seeking proximity to established institutions. With consistent foot traffic, transit access, and strong corner visibility, 331 Knickerbocker offers more than square footage — it offers positioning. Tenants benefit from signage exposure, accessibility, and a location that supports long-term brand recognition within the neighborhood. For users who value presence, accessibility, and strong infrastructure in a growing Brooklyn corridor, this address delivers.
Property Facts
Select Tenants
- Floor
- Tenant Name
- Industry
- 3rd
- Diamond Braces
- Health Care and Social Assistance
- 1st
- Kidz Joyful Palace Inc
- Health Care and Social Assistance
- 4th
- New York Heart & Vascular
- Health Care and Social Assistance
- 3rd
- Vascular & Wound Care Vein Center
- -
Presented by
331 Knickerbocker Ave
Hmm, there seems to have been an error sending your message. Please try again.
Thanks! Your message was sent.






