Your email has been sent.
Enbridge Gas Utah 333 S State St 3,117 - 38,959 SF of Space Available in Salt Lake City, UT 84111



Highlights
- 333 S State Street is an office building with LEED certification and open-plan space and a ground-floor bank suite at the heart of Downtown SLC.
- Pedestrian-friendly address within three blocks of Green Pig Pub, Planet Fitness, Quarters Arcade, The Grand American Hotel, and so much more.
- Professionally rich Economic District environment of federal and municipal buildings, finance firms, courthouses, and dozens of other companies.
- 66 parking stalls available with great commuter access to Interstates 15 and 80, plus TRAX stations and bus stops are steps away.
All Available Spaces(2)
Display Rental Rate as
- Space
- Size
- Term
- Rental Rate
- Space Use
- Build-Out
- Available
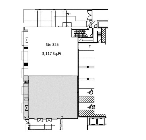
This retail space, previously used as a bank, features a large workspace area, two individual restrooms, a break room area, and two spacious offices.
- Fully Built-Out as a Bank
- Space is in Excellent Condition
- 28 Private Offices
- Private Restrooms
- Fits 13 - 285 People
- Finished Ceilings: 11’
- Partitioned Offices from Former Bank Tenant
- Highly Desirable End Cap Space
- Central Air and Heating
- Kitchen
- Secure Storage
- 3 Conference Rooms
- Mostly Open Floor Plan Layout
- Tenant Improvements Available
The space features an open floor plan with interior offices and lots of natural light. Some office and cubicle furniture, as well as tenant improvements are also available.
- Lease rate does not include utilities, property expenses or building services
- Mostly Open Floor Plan Layout
- 28 Private Offices
- Finished Ceilings: 11’
- Central Air and Heating
- Print/Copy Room
- Secure Storage
- After Hours HVAC Available
- Tenant Improvements Available
- Fully Built-Out as Standard Office
- Fits 13 - 285 People
- 3 Conference Rooms
- Space is in Excellent Condition
- Kitchen
- High Ceilings
- Natural Light
- Emergency Lighting
| Space | Size | Term | Rental Rate | Space Use | Build-Out | Available |
| 1st Floor, Ste 325 | 3,117 SF | 5 Years | Upon Request Upon Request Upon Request Upon Request | Retail | Full Build-Out | Now |
| 2nd Floor, Ste 200 | 15,000-35,842 SF | 5 Years | Upon Request Upon Request Upon Request Upon Request | Office | Full Build-Out | Now |
1st Floor, Ste 325
| Size |
| 3,117 SF |
| Term |
| 5 Years |
| Rental Rate |
| Upon Request Upon Request Upon Request Upon Request |
| Space Use |
| Retail |
| Build-Out |
| Full Build-Out |
| Available |
| Now |
2nd Floor, Ste 200
| Size |
| 15,000-35,842 SF |
| Term |
| 5 Years |
| Rental Rate |
| Upon Request Upon Request Upon Request Upon Request |
| Space Use |
| Office |
| Build-Out |
| Full Build-Out |
| Available |
| Now |
1st Floor, Ste 325
| Size | 3,117 SF |
| Term | 5 Years |
| Rental Rate | Upon Request |
| Space Use | Retail |
| Build-Out | Full Build-Out |
| Available | Now |
This retail space, previously used as a bank, features a large workspace area, two individual restrooms, a break room area, and two spacious offices.
- Fully Built-Out as a Bank
- Highly Desirable End Cap Space
- Space is in Excellent Condition
- Central Air and Heating
- 28 Private Offices
- Kitchen
- Private Restrooms
- Secure Storage
- Fits 13 - 285 People
- 3 Conference Rooms
- Finished Ceilings: 11’
- Mostly Open Floor Plan Layout
- Partitioned Offices from Former Bank Tenant
- Tenant Improvements Available
2nd Floor, Ste 200
| Size | 15,000-35,842 SF |
| Term | 5 Years |
| Rental Rate | Upon Request |
| Space Use | Office |
| Build-Out | Full Build-Out |
| Available | Now |
The space features an open floor plan with interior offices and lots of natural light. Some office and cubicle furniture, as well as tenant improvements are also available.
- Lease rate does not include utilities, property expenses or building services
- Fully Built-Out as Standard Office
- Mostly Open Floor Plan Layout
- Fits 13 - 285 People
- 28 Private Offices
- 3 Conference Rooms
- Finished Ceilings: 11’
- Space is in Excellent Condition
- Central Air and Heating
- Kitchen
- Print/Copy Room
- High Ceilings
- Secure Storage
- Natural Light
- After Hours HVAC Available
- Emergency Lighting
- Tenant Improvements Available
Property Overview
333 S State Street now offers its exclusive remaining available spaces for businesses to operate at the heart of Downtown Salt Lake City from a prominent professional building. The LEED certified office is widely recognized as the Enbridge Gas Building, as the company is the largest tenant and has high-identity signage atop the building. This was formerly known as the Dominion Energy Building before Dominion’s natural gas distribution business in Utah, Wyoming, and Idaho joined Enbridge Inc. in 2024. Tenants can join the energy powerhouse with its mix of multifaceted spaces across the building’s six floors. It features flexible open-plan layouts suitable for any office user with conference rooms, large workspaces, interior offices, some furniture, and generous window lines. A ground-floor quasi-retail suite is available with a second-generation bank build-out and its own street-level entrance. The landlord can also offer tenant improvement options to customize the ideal space. The property is in the Economic District with proximity to multiple financial institutions, including Charles Schwab, Goldman Sachs, and Washington Federal Bank. There are numerous nearby entertainment opportunities, including The Leonardo Museum and the Salt Lake City Public Library, as well as fitness centers such as Planet Fitness and Salt Lake Power Yoga. Additionally, the area offers a wide range of restaurants, from Ruth's Chris to Dunkin' and everything in between. The Peery Hotel, Fairfield Inn & Suites by Marriott, and Kimpton Hotel Monaco are also within a three- to four-block radius, so almost any imaginable necessity is only a short walk away. When it's time to head home, 333 S State Street is conveniently located just steps away from TRAX and bus stops, with drivers easily accessing the interstate from their dedicated on-site parking spot. Inquire now to learn more.
- 24 Hour Access
- Atrium
- Bus Line
- Commuter Rail
- Property Manager on Site
- Security System
- Central Heating
- Natural Light
- Partitioned Offices
- Secure Storage
- Air Conditioning
Property Facts
Presented by
Enbridge Gas Utah | 333 S State St
Hmm, there seems to have been an error sending your message. Please try again.
Thanks! Your message was sent.







