Your email has been sent.
335-337 Woodbridge Rd 2,689 SF of Retail Space Available in Ipswich IP4 4AX



Highlights
- The property is situated on the northern side of Woodbridge Road, on the junction with Brunswick Road, approximately 1 mile east of Ipswich town centr
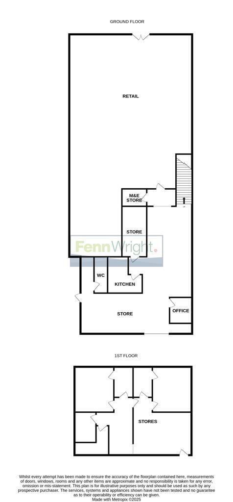
- The ground floor is arranged to provide a retail area to the front, with a rear store incorporating kitchen and WC facilities.
- The property comprises a prominent two-storey building with a pitch tiled roof, together with a single-storey flat roof extension to the rear.
- The first floor offers ancillary storage rooms, which may be suitable for conversion to office accommodation, subject to planning.
Space Availability (1)
Display Rental Rate as
- Space
- Size
- Term
- Rental Rate
- Type
| Space | Size | Term | Rental Rate | Rent Type | ||
| Ground, Ste 337 | 2,689 SF | Negotiable | $18.88 CAD/SF/YR $1.57 CAD/SF/MO $50,761 CAD/YR $4,230 CAD/MO | Fully Repairing & Insuring |
Ground, Ste 337
LOCATION:Ipswich is the county town of Suffolk with a resident population of approximately 130,000 and a catchment of about 320,000. Woodbridge Road (A1156) is a key arterial route providing excellent connectivity to the east side of Ipswich, including Rushmere St Andrew, Kesgrave, and Martlesham, and linking to the A12 for access to Woodbridge. The property is situated on the northern side of Woodbridge Road, on the junction with Brunswick Road, approximately 1 mile east of Ipswich town centre. DESCRIPTION:The property comprises a prominent two-storey building with a pitch tiled roof, together with a single-storey flat roof extension to the rear. The ground floor is arranged to provide a retail area to the front, with a rear store incorporating kitchen and WC facilities. The first floor offers ancillary storage rooms, which may be suitable for conversion to office accommodation, subject to planning.The main retail area benefits from a fully glazed frontage and is fitted with suspended ceilings incorporating air-conditioning, surface-mounted LED lighting, and vinyl floor coverings.Externally, the property has a service/loading bay at the rear, while a block paved forecourt provides customer access. ACCOMMODATION:[Approximate Net Internal Floor Areas] Ground Floor Retail1,815 sq ft[ 168.61 sq m] Rear Store (inc. Tea-point) 874 sq ft[ 81.24 sq m] Storeroom 88 sq ft[ 8.15 sq m] M&E Store 36 sq ft[ 3.30 sq m] First Floor Ancillary Stores 863 sq ft[ 80.18 sq m] Total Net Internal Floor Area3,676 sq ft[ 341.48 sq m]SERVICES:We understand that the property is connected to mains electricity, water and drainage.We have not tested any of the services and all interested parties should rely upon their own enquiries with the relevant utility companies in connection with the availability and capacity of all those serving the property including IT and telecommunications. BUSINESS RATES:The premises are assessed as follows:-Rateable Value: £15,500 | Rates Payable (2025/2026): £7,734.50 per annumThe rates payable are based on the current UBR of £0.499. All interested parties should speak to the local rating authority to verify their rates liability. LOCAL AUTHORITY:Ipswich Borough CouncilGrafton House15-17 Russell RoadIpswichSuffolk, IP1 2DE Telephone[use Contact Agent Button]ENERGY PERFORMANCE CERTIFICATE:B (47) Rating - Ref:[use Contact Agent Button]-2801-0925TERMS:The premises are available upon a new full repairing and insuring business lease upon terms to be agreed and at an initial rent of £27,500 per annum exclusive. It is understood VAT will be payable on the rent. LEGAL COSTS:Each party is to be responsible for its own legal costs incurred during the course of the transaction.
- Use Class: E
- Partially Built-Out as Standard Retail Space
- Located in-line with other retail
- Secure Storage
- Energy Performance Rating - B
- first floor offers ancillary storage rooms
- suspended ceilings incorporating air-conditioning
- New lease available
Service Types
The rent amount and service type that the tenant (lessee) will be responsible to pay to the landlord (lessor) throughout the lease term is negotiated prior to both parties signing a lease agreement. The service type will vary depending upon the services provided. Contact the listing broker for a full understanding of any associated costs or additional expenses for each service type.
1. Fully Repairing & Insuring: All obligations for repairing and insuring the property (or their share of the property) both internally and externally.
2. Internal Repairing Only: The tenant is responsible for internal repairs only. The landlord is responsible for structural and external repairs.
3. Internal Repairing & Insuring: The tenant is responsible for internal repairs and insurance for internal parts of the property only. The landlord is responsible for structural and external repairs.
4. Negotiable or TBD: This is used when the leasing contact does not provide the service type.
Property Facts
| Total Space Available | 2,689 SF | Gross Leasable Area | 6,485 SF |
| Property Type | Retail | Year Built | 1980 |
| Total Space Available | 2,689 SF |
| Property Type | Retail |
| Gross Leasable Area | 6,485 SF |
| Year Built | 1980 |
About the Property
DESCRIPTION: The property comprises a prominent two-storey building with a pitch tiled roof, together with a single-storey flat roof extension to the rear. The ground floor is arranged to provide a retail area to the front, with a rear store incorporating kitchen and WC facilities. The first floor offers ancillary storage rooms, which may be suitable for conversion to office accommodation, subject to planning. The main retail area benefits from a fully glazed frontage and is fitted with suspended ceilings incorporating air-conditioning, surface-mounted LED lighting, and vinyl floor coverings. Externally, the property has a service/loading bay at the rear, while a block paved forecourt provides customer access.
- Storage Space
Nearby Major Retailers
Presented by
335-337 Woodbridge Rd
Hmm, there seems to have been an error sending your message. Please try again.
Thanks! Your message was sent.


