Log In/Sign Up
Your email has been sent.
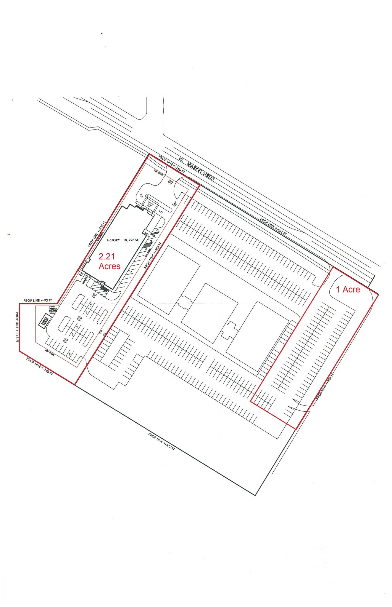
3350 W Market St 1 - 2.2 Acre Commercial Land Lots Offered at $4,150,140 - $5,187,675 CAD Per Lot in Fairlawn, OH 44333

INVESTMENT HIGHLIGHTS
- Located on Fairlawns' main thoroughfare, West Market Street. Across for the main entrance to the Summit Mall (food court)
EXECUTIVE SUMMARY
Available for land lease, sale or build to suit lease
PROPERTY FACTS
| Price | $4,150,140 - $9,337,815 CAD | Property Type | Land |
| Sale Type | Investment | Property Subtype | Commercial |
| Sale Conditions | Proposed Use | ||
| No. Lots | 2 | Total Lot Size | 3.20 AC |
| Price | $4,150,140 - $9,337,815 CAD |
| Sale Type | Investment |
| Sale Conditions | |
| No. Lots | 2 |
| Property Type | Land |
| Property Subtype | Commercial |
| Proposed Use | |
| Total Lot Size | 3.20 AC |
2 LOTS AVAILABLE
Lot 1
| Price | $4,150,140 CAD | Lot Size | 2.20 AC |
| Price Per AC | $1,886,427.35 CAD |
| Price | $4,150,140 CAD |
| Price Per AC | $1,886,427.35 CAD |
| Lot Size | 2.20 AC |
Available approximately 2.12 acres for free standing building.
Lot 2
| Price | $5,187,675 CAD | Lot Size | 1.00 AC |
| Price Per AC | $5,187,675.21 CAD |
| Price | $5,187,675 CAD |
| Price Per AC | $5,187,675.21 CAD |
| Lot Size | 1.00 AC |
One Acre corner site across the street from the main entrance to the Summit Mall
DESCRIPTION
Located at the main entrance to the Summit Mall. Signalized exit available
1 1
PROPERTY TAXES
| Parcel Number | 09-02780 | Improvements Assessment | $2,383,706 CAD |
| Land Assessment | $759,322 CAD | Total Assessment | $3,143,028 CAD |
PROPERTY TAXES
Parcel Number
09-02780
Land Assessment
$759,322 CAD
Improvements Assessment
$2,383,706 CAD
Total Assessment
$3,143,028 CAD
1 of 2
VIDEOS
MATTERPORT 3D EXTERIOR
MATTERPORT 3D TOUR
PHOTOS
STREET VIEW
STREET
MAP
1 of 1
Presented by
3350 W Market St
Already a member? Log In
Hmm, there seems to have been an error sending your message. Please try again.
Thanks! Your message was sent.
