Your email has been sent.
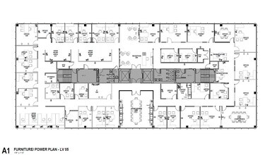
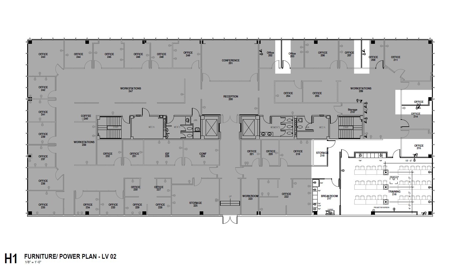
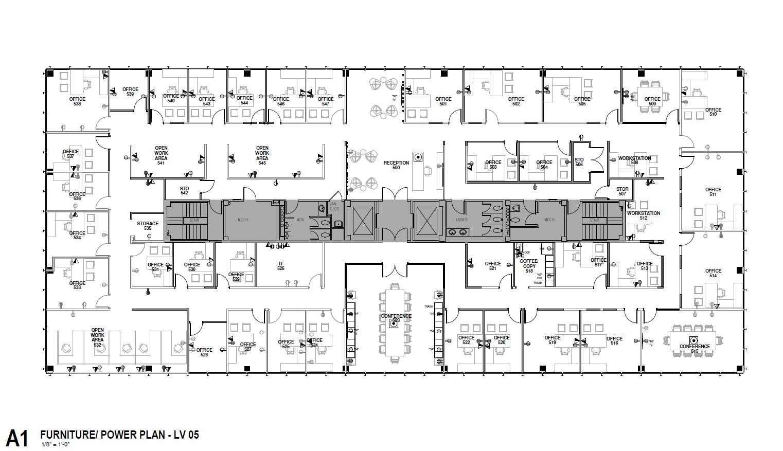
Richmond Tower 3411 Richmond Ave 309 - 33,123 SF of Office Space Available in Houston, TX 77046



All Available Spaces(6)
Display Rental Rate as
- Space
- Size
- Term
- Rental Rate
- Space Use
- Build-Out
- Available
- Rate includes utilities, building services and property expenses
- Fully Built-Out as Standard Office
Now leasing 4,203 SF of professional office space in the well-established Richmond Tower, centrally located in Houston’s Greenway/Upper Kirby corridor. This move-in ready suite offers a flexible layout suitable for a range of professional users.
- Rate includes utilities, building services and property expenses
- Open Floor Plan Layout
- Fully Built-Out as Standard Office
- Space is in Excellent Condition
Now leasing 1,305 SF of professional office space in the well-established Richmond Tower, centrally located in Houston’s Greenway/Upper Kirby corridor. This move-in ready suite offers a flexible layout suitable for a range of professional users.
- Rate includes utilities, building services and property expenses
- 4 Private Offices
- Central Air Conditioning
- Fully Built-Out as Standard Office
- Space is in Excellent Condition
- Reception Area
- Rate includes utilities, building services and property expenses
- Partially Built-Out as Standard Office
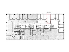
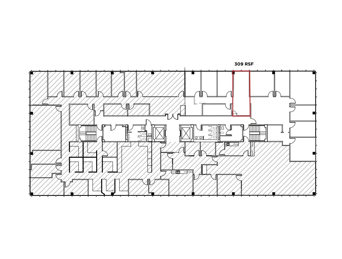
Now leasing 309 SF of professional office space in the well-established Richmond Tower, centrally located in Houston’s Greenway/Upper Kirby corridor. This move-in ready suite offers a flexible layout suitable for a range of professional users.
- Rate includes utilities, building services and property expenses
- Open Floor Plan Layout
- Central Air Conditioning
- Fully Built-Out as Standard Office
- Space is in Excellent Condition
Now leasing 2,498 SF of professional office space in the well-established Richmond Tower, centrally located in Houston’s Greenway/Upper Kirby corridor. This move-in ready suite offers a flexible layout suitable for a range of professional users.
- Rate includes utilities, building services and property expenses
- Open Floor Plan Layout
- Fully Built-Out as Standard Office
- Space is in Excellent Condition
| Space | Size | Term | Rental Rate | Space Use | Build-Out | Available |
| 2nd Floor, Ste 200 | 12,404 SF | Negotiable | $45.46 CAD/SF/YR $3.79 CAD/SF/MO $563,855 CAD/YR $46,988 CAD/MO | Office | Full Build-Out | 60 Days |
| 4th Floor, Ste 450 | 4,203 SF | Negotiable | $45.46 CAD/SF/YR $3.79 CAD/SF/MO $191,058 CAD/YR $15,921 CAD/MO | Office | Full Build-Out | Now |
| 4th Floor, Ste 490 | 1,305 SF | Negotiable | $45.46 CAD/SF/YR $3.79 CAD/SF/MO $59,322 CAD/YR $4,944 CAD/MO | Office | Full Build-Out | Now |
| 5th Floor, Ste 500 | 12,404 SF | Negotiable | $45.46 CAD/SF/YR $3.79 CAD/SF/MO $563,855 CAD/YR $46,988 CAD/MO | Office | Partial Build-Out | 60 Days |
| 6th Floor, Ste 610 | 309 SF | Negotiable | $45.46 CAD/SF/YR $3.79 CAD/SF/MO $14,046 CAD/YR $1,171 CAD/MO | Office | Full Build-Out | Now |
| 6th Floor, Ste 675 | 2,498 SF | Negotiable | $45.46 CAD/SF/YR $3.79 CAD/SF/MO $113,553 CAD/YR $9,463 CAD/MO | Office | Full Build-Out | Now |
2nd Floor, Ste 200
| Size |
| 12,404 SF |
| Term |
| Negotiable |
| Rental Rate |
| $45.46 CAD/SF/YR $3.79 CAD/SF/MO $563,855 CAD/YR $46,988 CAD/MO |
| Space Use |
| Office |
| Build-Out |
| Full Build-Out |
| Available |
| 60 Days |
4th Floor, Ste 450
| Size |
| 4,203 SF |
| Term |
| Negotiable |
| Rental Rate |
| $45.46 CAD/SF/YR $3.79 CAD/SF/MO $191,058 CAD/YR $15,921 CAD/MO |
| Space Use |
| Office |
| Build-Out |
| Full Build-Out |
| Available |
| Now |
4th Floor, Ste 490
| Size |
| 1,305 SF |
| Term |
| Negotiable |
| Rental Rate |
| $45.46 CAD/SF/YR $3.79 CAD/SF/MO $59,322 CAD/YR $4,944 CAD/MO |
| Space Use |
| Office |
| Build-Out |
| Full Build-Out |
| Available |
| Now |
5th Floor, Ste 500
| Size |
| 12,404 SF |
| Term |
| Negotiable |
| Rental Rate |
| $45.46 CAD/SF/YR $3.79 CAD/SF/MO $563,855 CAD/YR $46,988 CAD/MO |
| Space Use |
| Office |
| Build-Out |
| Partial Build-Out |
| Available |
| 60 Days |
6th Floor, Ste 610
| Size |
| 309 SF |
| Term |
| Negotiable |
| Rental Rate |
| $45.46 CAD/SF/YR $3.79 CAD/SF/MO $14,046 CAD/YR $1,171 CAD/MO |
| Space Use |
| Office |
| Build-Out |
| Full Build-Out |
| Available |
| Now |
6th Floor, Ste 675
| Size |
| 2,498 SF |
| Term |
| Negotiable |
| Rental Rate |
| $45.46 CAD/SF/YR $3.79 CAD/SF/MO $113,553 CAD/YR $9,463 CAD/MO |
| Space Use |
| Office |
| Build-Out |
| Full Build-Out |
| Available |
| Now |
2nd Floor, Ste 200
| Size | 12,404 SF |
| Term | Negotiable |
| Rental Rate | $45.46 CAD/SF/YR |
| Space Use | Office |
| Build-Out | Full Build-Out |
| Available | 60 Days |
- Rate includes utilities, building services and property expenses
- Fully Built-Out as Standard Office
4th Floor, Ste 450
| Size | 4,203 SF |
| Term | Negotiable |
| Rental Rate | $45.46 CAD/SF/YR |
| Space Use | Office |
| Build-Out | Full Build-Out |
| Available | Now |
Now leasing 4,203 SF of professional office space in the well-established Richmond Tower, centrally located in Houston’s Greenway/Upper Kirby corridor. This move-in ready suite offers a flexible layout suitable for a range of professional users.
- Rate includes utilities, building services and property expenses
- Fully Built-Out as Standard Office
- Open Floor Plan Layout
- Space is in Excellent Condition
4th Floor, Ste 490
| Size | 1,305 SF |
| Term | Negotiable |
| Rental Rate | $45.46 CAD/SF/YR |
| Space Use | Office |
| Build-Out | Full Build-Out |
| Available | Now |
Now leasing 1,305 SF of professional office space in the well-established Richmond Tower, centrally located in Houston’s Greenway/Upper Kirby corridor. This move-in ready suite offers a flexible layout suitable for a range of professional users.
- Rate includes utilities, building services and property expenses
- Fully Built-Out as Standard Office
- 4 Private Offices
- Space is in Excellent Condition
- Central Air Conditioning
- Reception Area
5th Floor, Ste 500
| Size | 12,404 SF |
| Term | Negotiable |
| Rental Rate | $45.46 CAD/SF/YR |
| Space Use | Office |
| Build-Out | Partial Build-Out |
| Available | 60 Days |
- Rate includes utilities, building services and property expenses
- Partially Built-Out as Standard Office
6th Floor, Ste 610
| Size | 309 SF |
| Term | Negotiable |
| Rental Rate | $45.46 CAD/SF/YR |
| Space Use | Office |
| Build-Out | Full Build-Out |
| Available | Now |
Now leasing 309 SF of professional office space in the well-established Richmond Tower, centrally located in Houston’s Greenway/Upper Kirby corridor. This move-in ready suite offers a flexible layout suitable for a range of professional users.
- Rate includes utilities, building services and property expenses
- Fully Built-Out as Standard Office
- Open Floor Plan Layout
- Space is in Excellent Condition
- Central Air Conditioning
6th Floor, Ste 675
| Size | 2,498 SF |
| Term | Negotiable |
| Rental Rate | $45.46 CAD/SF/YR |
| Space Use | Office |
| Build-Out | Full Build-Out |
| Available | Now |
Now leasing 2,498 SF of professional office space in the well-established Richmond Tower, centrally located in Houston’s Greenway/Upper Kirby corridor. This move-in ready suite offers a flexible layout suitable for a range of professional users.
- Rate includes utilities, building services and property expenses
- Fully Built-Out as Standard Office
- Open Floor Plan Layout
- Space is in Excellent Condition
Features and Amenities
- Controlled Access
- Property Manager on Site
- Air Conditioning
Property Facts
Presented by
Richmond Tower | 3411 Richmond Ave
Hmm, there seems to have been an error sending your message. Please try again.
Thanks! Your message was sent.









