Your email has been sent.
Park Highlights
- Signalized intersection
- Minutes from North Hills & I-440
- On-site Property Management & Maintenance
- Convenient location
- Weekly Food Trucks
Park Facts
All Available Spaces(3)
Display Rental Rate as
- Space
- Size
- Term
- Rental Rate
- Space Use
- Build-Out
- Available
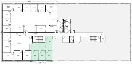
Premier office space in an unbeatable location! Square footage is an estimate and subject to change. Please contact us for more information. Availability date subject to change. For more information about this space, please visit https://www.hobbsproperties.com/six-forks-place-ii.html
- Rate includes utilities, building services and property expenses
- Space is in Excellent Condition
- Office intensive layout
Premier office space in an unbeatable location! Square footage is an estimate and subject to change. Please contact us for more information. Availability date subject to change. For more information about this space, please visit https://www.hobbsproperties.com/six-forks-place-ii.html
- Rate includes utilities, building services and property expenses
- Conference Rooms
- Space is in Excellent Condition
- Reception Area
- Drop Ceilings
- Mostly Open Floor Plan Layout
- Finished Ceilings: 9’
- Central Air and Heating
- Fully Carpeted
- After Hours HVAC Available
Premier office space in an unbeatable location! Tenant improvements for this space are available; floorplan options shown in picture attachments section. Square footage is an estimate and subject to change. Please contact us for more information. Availability date subject to change. For more information about this space, please visit https://www.hobbsproperties.com/six-forks-place-ii.html
- Rate includes utilities, building services and property expenses
- Mostly Open Floor Plan Layout
- Partially Built-Out as Standard Office
| Space | Size | Term | Rental Rate | Space Use | Build-Out | Available |
| 2nd Floor, Ste 225 | 1,024 SF | Negotiable | $43.85 CAD/SF/YR $3.65 CAD/SF/MO $44,906 CAD/YR $3,742 CAD/MO | Office | Spec Suite | 2026-06-01 |
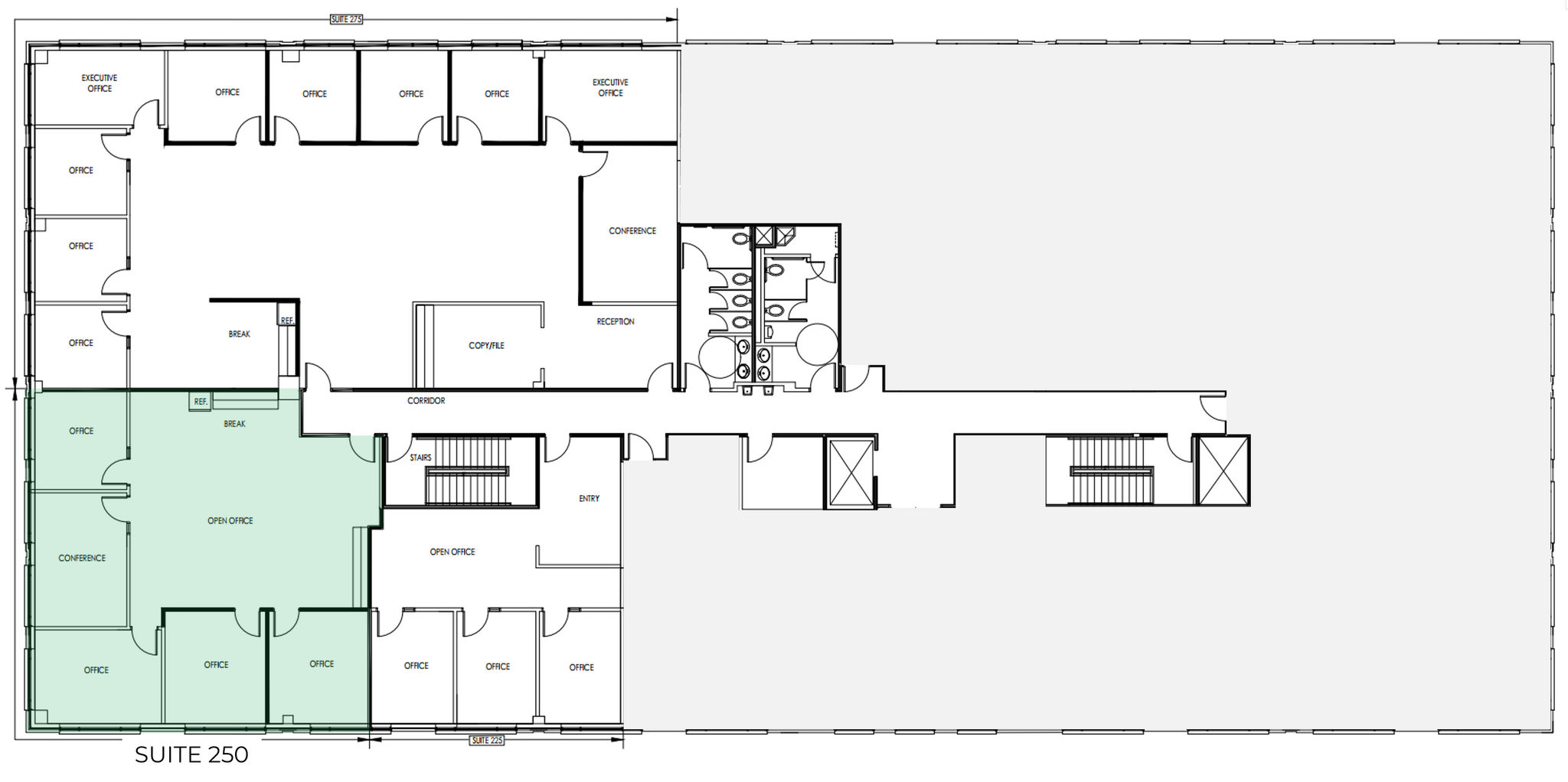
| 2nd Floor, Ste 250 | 1,925 SF | Negotiable | $43.85 CAD/SF/YR $3.65 CAD/SF/MO $84,417 CAD/YR $7,035 CAD/MO | Office | Spec Suite | 2026-06-01 |
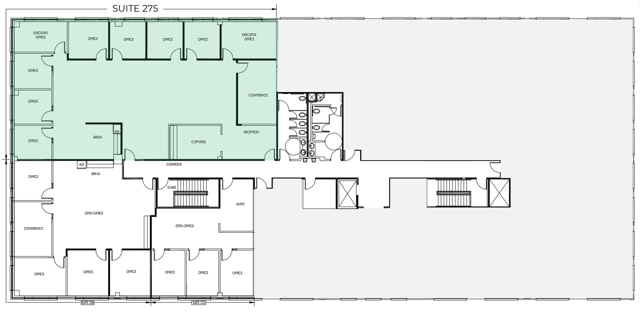
| 2nd Floor, Ste 275 | 3,775 SF | Negotiable | $43.85 CAD/SF/YR $3.65 CAD/SF/MO $165,546 CAD/YR $13,795 CAD/MO | Office | Partial Build-Out | 2026-06-01 |
343 E Six Forks Rd - 2nd Floor - Ste 225
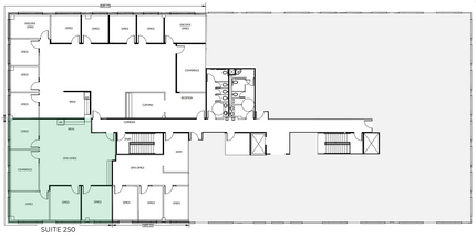
343 E Six Forks Rd - 2nd Floor - Ste 250
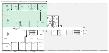
343 E Six Forks Rd - 2nd Floor - Ste 275
343 E Six Forks Rd - 2nd Floor - Ste 225
| Size | 1,024 SF |
| Term | Negotiable |
| Rental Rate | $43.85 CAD/SF/YR |
| Space Use | Office |
| Build-Out | Spec Suite |
| Available | 2026-06-01 |
Premier office space in an unbeatable location! Square footage is an estimate and subject to change. Please contact us for more information. Availability date subject to change. For more information about this space, please visit https://www.hobbsproperties.com/six-forks-place-ii.html
- Rate includes utilities, building services and property expenses
- Office intensive layout
- Space is in Excellent Condition
343 E Six Forks Rd - 2nd Floor - Ste 250
| Size | 1,925 SF |
| Term | Negotiable |
| Rental Rate | $43.85 CAD/SF/YR |
| Space Use | Office |
| Build-Out | Spec Suite |
| Available | 2026-06-01 |
Premier office space in an unbeatable location! Square footage is an estimate and subject to change. Please contact us for more information. Availability date subject to change. For more information about this space, please visit https://www.hobbsproperties.com/six-forks-place-ii.html
- Rate includes utilities, building services and property expenses
- Mostly Open Floor Plan Layout
- Conference Rooms
- Finished Ceilings: 9’
- Space is in Excellent Condition
- Central Air and Heating
- Reception Area
- Fully Carpeted
- Drop Ceilings
- After Hours HVAC Available
343 E Six Forks Rd - 2nd Floor - Ste 275
| Size | 3,775 SF |
| Term | Negotiable |
| Rental Rate | $43.85 CAD/SF/YR |
| Space Use | Office |
| Build-Out | Partial Build-Out |
| Available | 2026-06-01 |
Premier office space in an unbeatable location! Tenant improvements for this space are available; floorplan options shown in picture attachments section. Square footage is an estimate and subject to change. Please contact us for more information. Availability date subject to change. For more information about this space, please visit https://www.hobbsproperties.com/six-forks-place-ii.html
- Rate includes utilities, building services and property expenses
- Partially Built-Out as Standard Office
- Mostly Open Floor Plan Layout
Park Overview
Lease space in an unmatched location at 343 E. Six Forks Road! Just minutes from many major shopping centers & upcoming developments, including North Hills, Midtown East, North Hills Innovation District, The Exchange, and Raleigh Ironworks. Excellent road frontage, multiple complex entrances, and a signalized intersection with dedicated turn lane. This building is part of the Six Forks Place complex which also offers on-site management and weekly food trucks. For more details, visit our website at https://www.hobbsproperties.com/six-forks-place-ii.html
- Courtyard
- Dedicated Turn Lane
- Property Manager on Site
- Signage
- Signalized Intersection
- Air Conditioning
Presented by
Six Forks Place | Raleigh, NC 27609
Hmm, there seems to have been an error sending your message. Please try again.
Thanks! Your message was sent.










