Your email has been sent.
3443 Leitchfield Rd
Cecilia, KY 42724
Ascend Apartments In Elizabethtown KY · Land For Sale
·
15.00 AC


Investment Highlights
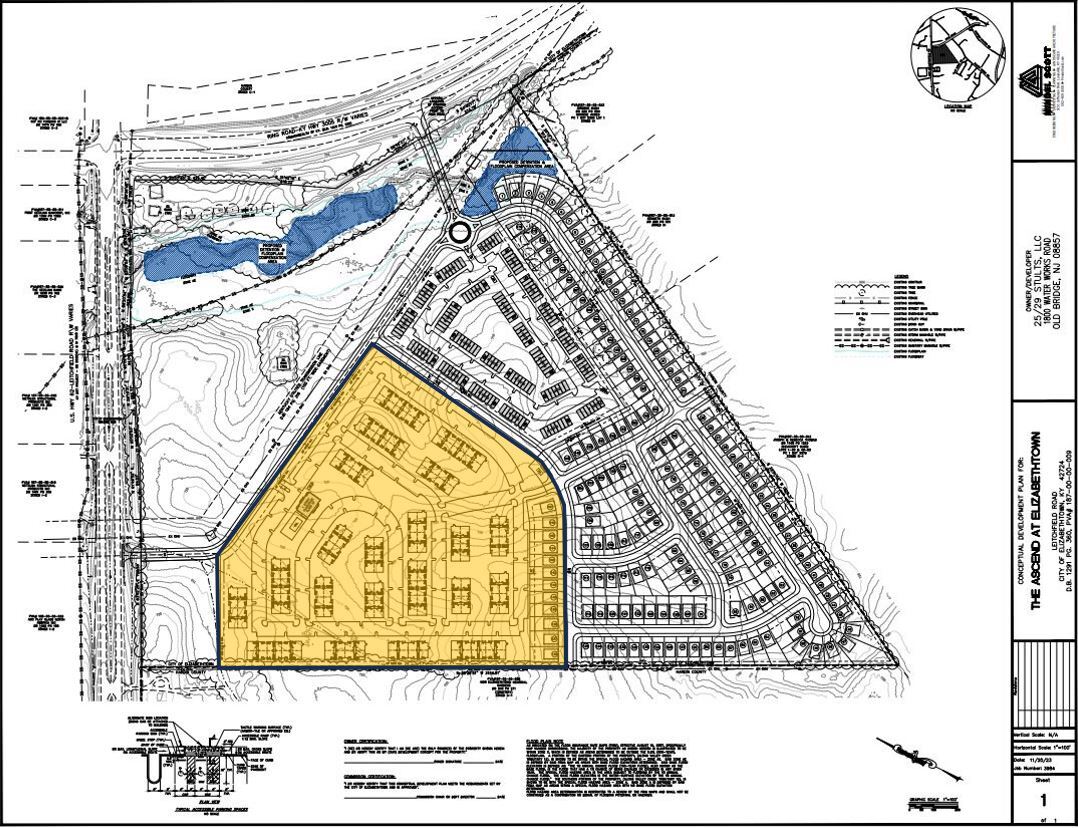
- Shovel Ready! This deal comes with Architectural Plans, Engineering Plans and is already zoned and approved for Apartments!
- Next to Existing Retail, Fast Food, Banking and Central Hardin High School.
- Highway 62 Currently Connects to the Massive Bluegrass Parkway, but also Has Plans to Connect to I-65.
Executive Summary
contract for the retail portion from a large retail developer. One of the largest home developers in the country has sent a contract for the single-family portion. A
townhome developer has expressed interest. The multifamily portions can be developed knowing that this is the only large multifamily development south of
Elizabethtown, towards the new Blue Oval SK plant. All the others are north of town, away from the plant. Many of the 8,000 new employees will want to locate on the
near side of town to work.
This is a unique opportunity to purchase an approved plan, Engineering plans, architectural plan for a 300 unit in a fantastic community.
Property Facts
| Sale Type | Investment | Property Subtype | Commercial |
| No. Lots | 1 | Proposed Use | Multifamily |
| Property Type | Land | Total Lot Size | 15.00 AC |
| Zoning | R-4 - R-4, approved 332 unit Multi-Family development | ||
| Sale Type | Investment |
| No. Lots | 1 |
| Property Type | Land |
| Property Subtype | Commercial |
| Proposed Use | Multifamily |
| Total Lot Size | 15.00 AC |
| Zoning | R-4 - R-4, approved 332 unit Multi-Family development |
1 Lot Available
Lot
| Price | $7,458,480 CAD | Lot Size | 15.00 AC |
| Price Per AC | $497,231.98 CAD |
| Price | $7,458,480 CAD |
| Price Per AC | $497,231.98 CAD |
| Lot Size | 15.00 AC |
Shovel Ready! This deal comes with Architectural Plans, Engineering Plans and is already zoned and approved for Apartments!
Description
Elizabethtown has many economic drivers. The two largest are Fort Knox to the north, and the Blue Oval SK Battery Park to the south. Blue Oval SK Battery Park has 5,000 employees, with a total of 8,000 considering all the supportive companies moving to Elizabethtown. As the Blue Oval SK industrial boom continues, a large industrial park has sprung up across the highway from this site. Elizabethtown offers an exceptional business climate that gives new and existing companies a competitive advantage. More than 9,500 people are currently employed by Elizabethtown’s growing manufacturing sector and supporting businesses. Elizabethtown manufacturers have invested more than $300 million in new and expanding facilities in the last few years – most of it across the street from this parcel. This success has led the Elizabethtown area to outpace the nation in job creation.
