Log In/Sign Up
Your email has been sent.
35 Regency Way
Reno, NV 89509
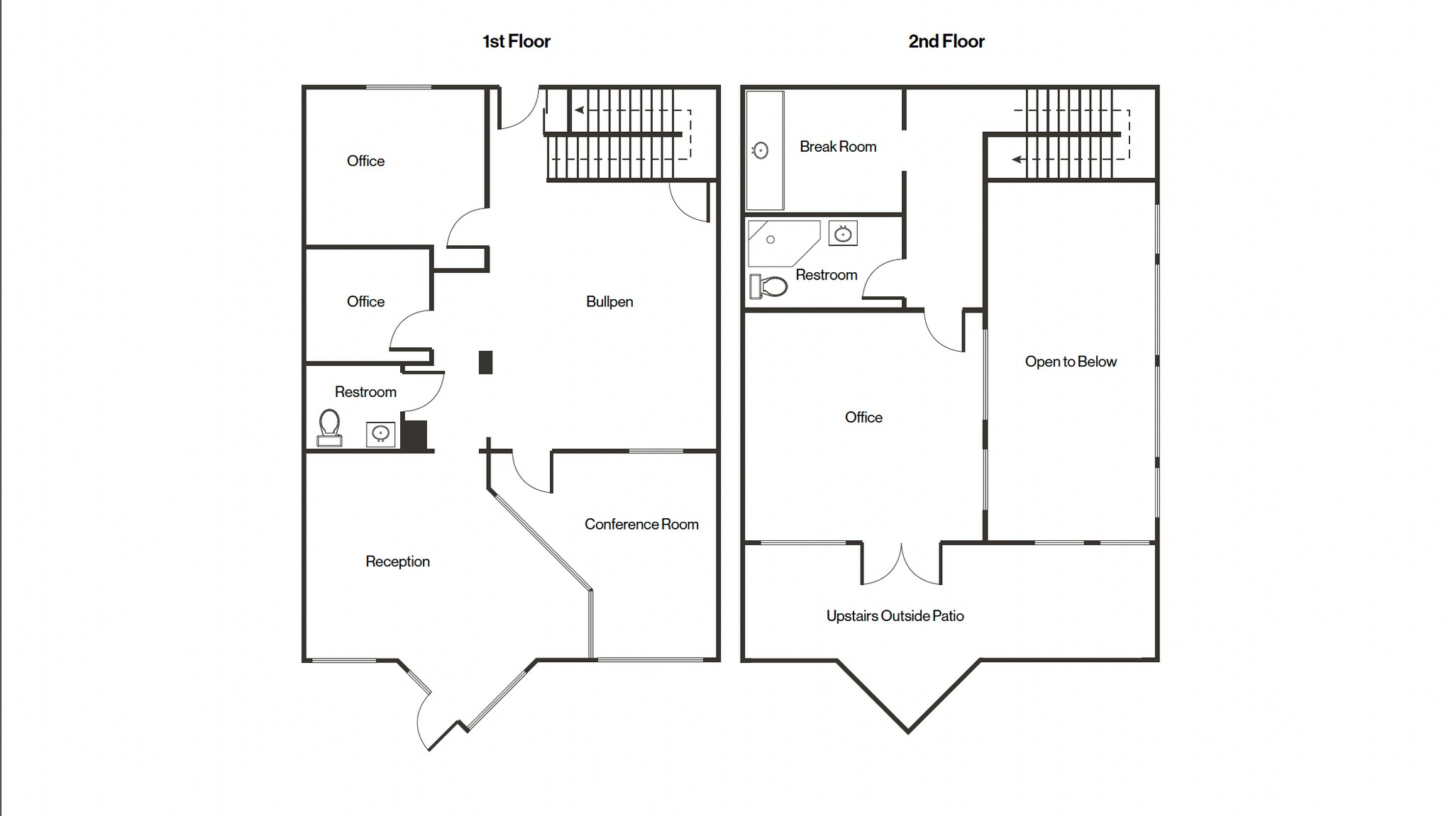
35 Regency Way · Office Property For Lease
·
1,800 SF


Highlights
- Located in coveted midtown
- High end finishes
Property Overview
Ideal professional office space Lofty, extraordinary two-story suite in Midtown area with large upstairs patio Located in coveted midtown area High end finishes
- Security System
- Skylights
- Air Conditioning
- Balcony
Property Facts
Building Type
Office
Year Built
2004
Building Height
2 Stories
Building Size
7,200 SF
Building Class
B
Typical Floor Size
5,300 SF
Parking
13 Surface Parking Spaces
1 of 4
Videos
Matterport 3D Exterior
Matterport 3D Tour
Photos
Street View
Street
Map
