Your email has been sent.
Sublease Highlights
- Positioned near Philadelphia International Airport enabling rapid regional and last-mile distribution.
- Integrated automated storage system supporting efficient product handling and order fulfillment.
- Secure yard with onsite fueling providing strong fleet support and operational continuity.
- Purpose-built food grade construction featuring specialized freezer and cooler environments.
- Dual-access loading configuration with dock-high and parcel-loading positions enhancing throughout.
- Direct access to major interstates and multiple port terminals strengthening supply chain reach.
Features
All Available Space(1)
Display Rental Rate as
- Space
- Size
- Term
- Rental Rate
- Space Use
- Build-Out
- Available
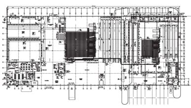
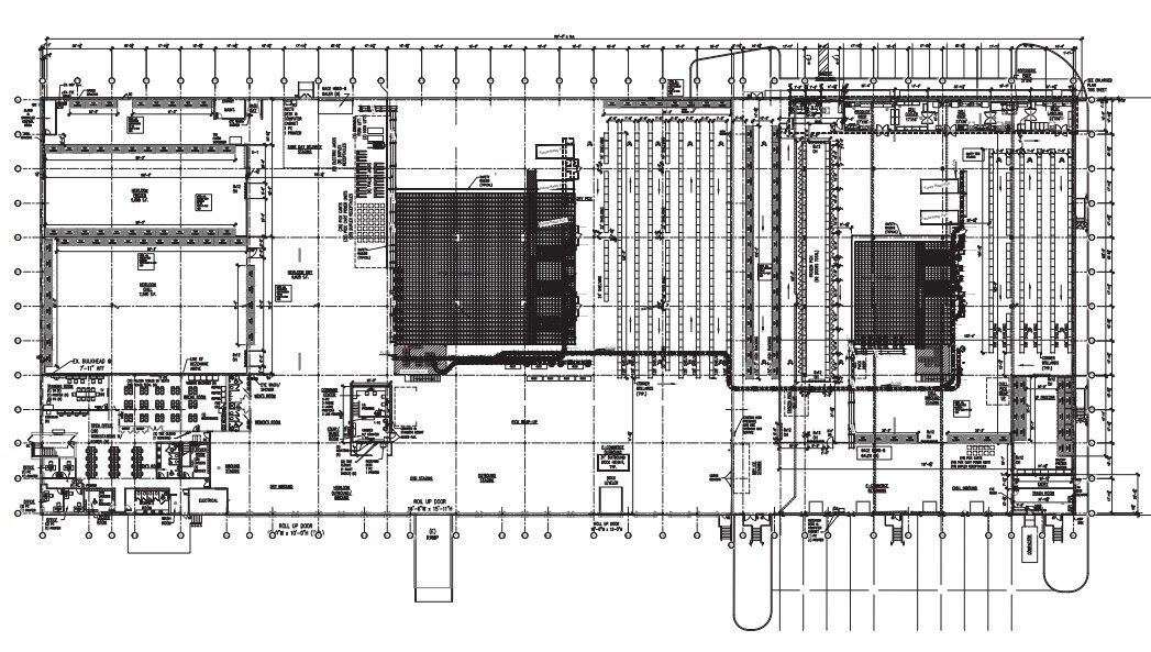
3501 Island Avenue presents one of the Philadelphia region’s most strategically located and operationally advanced food grade industrial opportunities. Positioned less than two miles from Philadelphia International Airport, the facility offers immediate connectivity to I-95 and I-295, placing major consumer populations in Philadelphia, New York and Baltimore within highly efficient distribution reach. The building sits within a mature logistics ecosystem close to multiple port terminals, leading freight corridors and a deep employment base, making it a powerful platform for cold chain, last-mile and regional fulfillment users alike. The property’s infrastructure is purpose-built to support high-velocity operations with a combination of 16 dock-high doors, 10 parcel-loading doors and generous loading depths that streamline inbound and outbound movement. Inside, the facility features extensive temperature-controlled environments across multiple zones including heirloom freezer storage, gel pack freezer space, chilled pick areas, produce prep rooms and deli coolers. These specialized environments allow users to support a full range of perishable handling and food distribution workflows. The building also incorporates an automated storage system, floor drains, hood vents and thoughtfully designed circulation patterns enhancing operational efficiency. A secure yard with onsite fueling supports fleet management and continuous mobility, while the property’s proximity to the CSX rail yard further broadens multimodal advantages. Users gain access to a surrounding labor force exceeding two million individuals within a 45-minute commute, including a significant share of transportation, material-moving and production workers. This combination of workforce density, infrastructure and location reduces friction in staffing, supply chain scheduling and delivery performance. With its airport adjacency, high-spec food grade buildout and immediate access to key population centers, 3501 Island Avenue stands out as a rare turnkey solution tailored for operators seeking speed, safety and precision in today’s modern distribution environment.
- Sublease space available from current tenant
- 10 Drive Ins
- 16 Loading Docks
- 24 foot clear height.
- Includes 11,983 SF of dedicated office space
- Space is in Excellent Condition
- Freezer Space
| Space | Size | Term | Rental Rate | Space Use | Build-Out | Available |
| 1st Floor | 123,466 SF | Negotiable | Upon Request Upon Request Upon Request Upon Request | Industrial | Partial Build-Out | Now |
1st Floor
| Size |
| 123,466 SF |
| Term |
| Negotiable |
| Rental Rate |
| Upon Request Upon Request Upon Request Upon Request |
| Space Use |
| Industrial |
| Build-Out |
| Partial Build-Out |
| Available |
| Now |
1st Floor
| Size | 123,466 SF |
| Term | Negotiable |
| Rental Rate | Upon Request |
| Space Use | Industrial |
| Build-Out | Partial Build-Out |
| Available | Now |
3501 Island Avenue presents one of the Philadelphia region’s most strategically located and operationally advanced food grade industrial opportunities. Positioned less than two miles from Philadelphia International Airport, the facility offers immediate connectivity to I-95 and I-295, placing major consumer populations in Philadelphia, New York and Baltimore within highly efficient distribution reach. The building sits within a mature logistics ecosystem close to multiple port terminals, leading freight corridors and a deep employment base, making it a powerful platform for cold chain, last-mile and regional fulfillment users alike. The property’s infrastructure is purpose-built to support high-velocity operations with a combination of 16 dock-high doors, 10 parcel-loading doors and generous loading depths that streamline inbound and outbound movement. Inside, the facility features extensive temperature-controlled environments across multiple zones including heirloom freezer storage, gel pack freezer space, chilled pick areas, produce prep rooms and deli coolers. These specialized environments allow users to support a full range of perishable handling and food distribution workflows. The building also incorporates an automated storage system, floor drains, hood vents and thoughtfully designed circulation patterns enhancing operational efficiency. A secure yard with onsite fueling supports fleet management and continuous mobility, while the property’s proximity to the CSX rail yard further broadens multimodal advantages. Users gain access to a surrounding labor force exceeding two million individuals within a 45-minute commute, including a significant share of transportation, material-moving and production workers. This combination of workforce density, infrastructure and location reduces friction in staffing, supply chain scheduling and delivery performance. With its airport adjacency, high-spec food grade buildout and immediate access to key population centers, 3501 Island Avenue stands out as a rare turnkey solution tailored for operators seeking speed, safety and precision in today’s modern distribution environment.
- Sublease space available from current tenant
- Includes 11,983 SF of dedicated office space
- 10 Drive Ins
- Space is in Excellent Condition
- 16 Loading Docks
- Freezer Space
- 24 foot clear height.
Property Overview
Set within one of Philadelphia’s most connected logistics corridors, 3501 Island Avenue delivers a turnkey food grade industrial environment designed to support sophisticated cold chain, e-commerce and high-volume distribution needs. Its airport-adjacent position provides exceptional access to regional and national transportation networks, placing major population centers and key port terminals within efficient reach. The facility integrates a wide range of temperature-controlled zones including multiple freezer, cooler and chilled pick areas, along with an automated storage system that enhances accuracy and throughput for fast-moving operations. Functional dock-high and parcel-loading configurations streamline inbound and outbound flow, while the secure yard and onsite fueling station strengthen fleet readiness and continuous mobility. Surrounded by a deep labor pool across transportation, production and logistics sectors, 3501 Island Avenue offers an operationally superior location for users seeking performance, reliability and speed in a rapidly evolving supply chain landscape.
Refrigeration/Cold Storage Facility Facts
Select Tenants
- Floor
- Tenant Name
- Industry
- 1st
- DB Schenker
- Transportation and Warehousing
Presented by
3501 Island Ave
Hmm, there seems to have been an error sending your message. Please try again.
Thanks! Your message was sent.






