Your email has been sent.
3508 Far West Blvd 3508 Far West Blvd 1,000 - 4,670 SF of Office Space Available in Austin, TX 78731



Highlights
- Great visibility with frontage on Far West Boulevard and quick access to Mopac.
- Updated lobby ceilings, granite floors, corridor carpet and wall coverings.
- Controlled access, after-hours HVAC, and on-site postal service for tenant convenience.
- Walking distance to many local restaurants and businesses.
- Updated bathrooms.
All Available Spaces(3)
Display Rental Rate as
- Space
- Size
- Term
- Rental Rate
- Space Use
- Build-Out
- Available
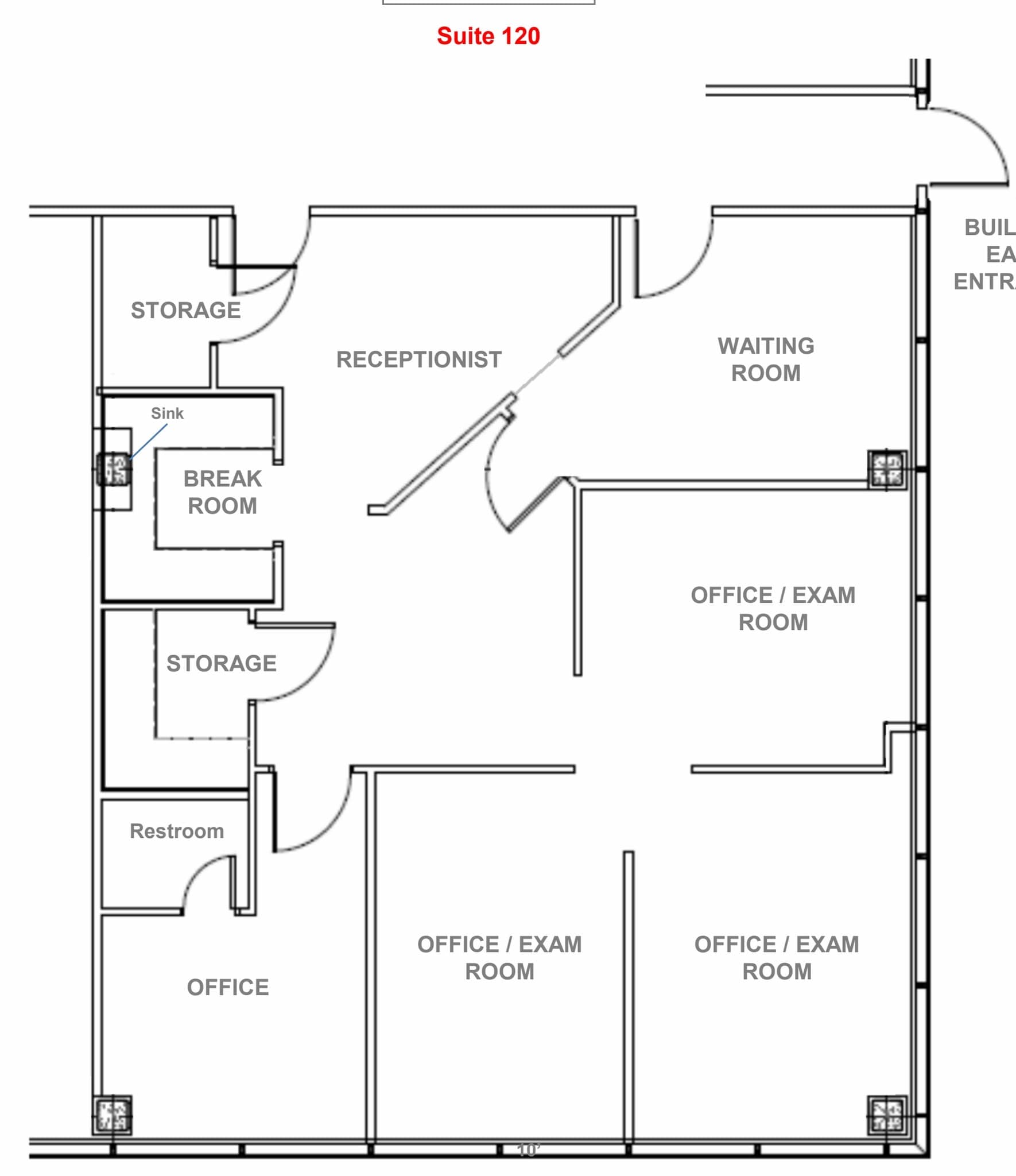
Nice office with easy access to parking. Location is right off the west building entrance. Great for medical use, previous tenant was a dentist. Space has a corner office & restroom in space.
- Lease rate does not include utilities, property expenses or building services
- Located near West Building entrance.
- Includes corner office and restroom.
- Easy access to parking.
- Great for medical use.
Nice office with easy access off the 2nd floor lobby near the elevators & restrooms, efficient layout options, storage area/closet as well.
- Lease rate does not include utilities, property expenses or building services
- Office intensive layout
- Fully Built-Out as Standard Office
Nice natural light, windowed offices, conference room with glass panels storage room with ample space. Space has a great corner office.
- Lease rate does not include utilities, property expenses or building services
- Office intensive layout
- Fully Built-Out as Standard Office
| Space | Size | Term | Rental Rate | Space Use | Build-Out | Available |
| 1st Floor, Ste 120 | 1,343 SF | Negotiable | Upon Request Upon Request Upon Request Upon Request | Office | - | 2026-09-01 |
| 2nd Floor, Ste 205 | 1,000 SF | 1-10 Years | Upon Request Upon Request Upon Request Upon Request | Office | Full Build-Out | Now |
| 3rd Floor, Ste 350 | 2,327 SF | 1-10 Years | Upon Request Upon Request Upon Request Upon Request | Office | Full Build-Out | 2026-07-01 |
1st Floor, Ste 120
| Size |
| 1,343 SF |
| Term |
| Negotiable |
| Rental Rate |
| Upon Request Upon Request Upon Request Upon Request |
| Space Use |
| Office |
| Build-Out |
| - |
| Available |
| 2026-09-01 |
2nd Floor, Ste 205
| Size |
| 1,000 SF |
| Term |
| 1-10 Years |
| Rental Rate |
| Upon Request Upon Request Upon Request Upon Request |
| Space Use |
| Office |
| Build-Out |
| Full Build-Out |
| Available |
| Now |
3rd Floor, Ste 350
| Size |
| 2,327 SF |
| Term |
| 1-10 Years |
| Rental Rate |
| Upon Request Upon Request Upon Request Upon Request |
| Space Use |
| Office |
| Build-Out |
| Full Build-Out |
| Available |
| 2026-07-01 |
1st Floor, Ste 120
| Size | 1,343 SF |
| Term | Negotiable |
| Rental Rate | Upon Request |
| Space Use | Office |
| Build-Out | - |
| Available | 2026-09-01 |
Nice office with easy access to parking. Location is right off the west building entrance. Great for medical use, previous tenant was a dentist. Space has a corner office & restroom in space.
- Lease rate does not include utilities, property expenses or building services
- Easy access to parking.
- Located near West Building entrance.
- Great for medical use.
- Includes corner office and restroom.
2nd Floor, Ste 205
| Size | 1,000 SF |
| Term | 1-10 Years |
| Rental Rate | Upon Request |
| Space Use | Office |
| Build-Out | Full Build-Out |
| Available | Now |
Nice office with easy access off the 2nd floor lobby near the elevators & restrooms, efficient layout options, storage area/closet as well.
- Lease rate does not include utilities, property expenses or building services
- Fully Built-Out as Standard Office
- Office intensive layout
3rd Floor, Ste 350
| Size | 2,327 SF |
| Term | 1-10 Years |
| Rental Rate | Upon Request |
| Space Use | Office |
| Build-Out | Full Build-Out |
| Available | 2026-07-01 |
Nice natural light, windowed offices, conference room with glass panels storage room with ample space. Space has a great corner office.
- Lease rate does not include utilities, property expenses or building services
- Fully Built-Out as Standard Office
- Office intensive layout
Property Overview
Building has easy access to Mopac/183 and is situated in the heart of the medical district. Tenants tend to be a mix of professionals including attorneys and doctors. The location of the property also places it within walking distance to local area restaurants, HEB, Post Office, and shopping. Building has close parking, after hours HVAC, on-site postal service and passcard access.
- Controlled Access
- Property Manager on Site
Property Facts
Presented by
3508 Far West Blvd | 3508 Far West Blvd
Hmm, there seems to have been an error sending your message. Please try again.
Thanks! Your message was sent.







