Log In/Sign Up
Your email has been sent.
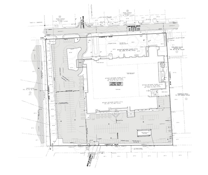
3511 Linkwood Dr 48,000 SF Specialty Building Offered For Sale in Houston, TX 77025



Investment Highlights
- Property has over 50 rooms in a variety of configurations from offices to classrooms and conference rooms
- 2 Commercial Grade Kitchens with Refrigerators and Dishwashing areas.
- Strong Surrounding Demographics – Affluent Braeswood neighborhood nearby, with home values ranging from $700K–$2.5M,
- Large Venue Room with great acoustics that can accommodate several hundred guest.
- Premier Location – Situated just minutes from the Texas Medical Center, the largest medical complex in the world with 120,000+ employees.
- Lot Size is over 5.5 Acres.
Executive Summary
Discover an unparalleled investment opportunity in the heart of Houston, where 5.5 acres of prime real estate offers over 48,000 square feet of versatile, usable space. This expansive property is strategically located near major landmarks including the Texas Medical Center—employing over 120,000 professionals—and NRG Stadium, a hub for events like the Houston Livestock Show and Rodeo.
Imagine the possibilities: from residential units to commercial enterprises, the potential for successful development is endless. The property sits conveniently close to thriving residential communities, top-rated schools, and a bustling local economy anchored by major retailers such as Target, Kroger, and Walgreens.
Perfectly positioned at the crossroads of Buffalo Speedway and Main Street, with visibility to thousands of vehicles daily, this property ensures high traffic and accessibility. Whether you're aiming to capitalize on Houston's flourishing medical and educational sectors or tap into the vibrant local culture, this property is your canvas for success.
Don't miss this chance to create your vision in one of Texas's most dynamic environments. Contact us today to explore the future of your next big project. The Harris County Appraisal District has this property currently under the religious category which has its own benefits to those who operate in the space.
Property has over 50 rooms in a variety of configurations from offices to classrooms and conference rooms
Large Venue Room with great acoustics that can accommodate several hundred guest.
A Chapel with an occupancy to fit 200 people.
2 Commercial Grade Kitchens with Refrigerators and Dishwashing areas.
A full size Basketball Gym with a 277 occupant capacity
6 sets of restrooms throughout the complex.
Property has several hundred parking spots
Campus can be operated as a Multi-tenant facility as there are multiple entrances.
2 large playground areas to accommodate Toddlers and Children.
6 different Garden/Patio/Court Yard areas.
Includes a standalone building in rear of property to accommodate and need.
Investment Highlights – 3511 Linkwood Dr | ±5.50 Acres
Premier Location – Situated just minutes from the Texas Medical Center, the largest medical complex in the world with 120,000+ employees, driving consistent housing and retail demand.
Strong Surrounding Demographics – Affluent Braeswood neighborhood nearby, with home values ranging from $700K–$2.5M, providing strong purchasing power and demand for premium development.
High-Density Residential Growth – Surrounded by new Class A multifamily developments:
Mezzo Kirby Med Center (2016 | 378 Units)
Haven at Main (2017 | 256 Units)
South Main (2019 | 185 Units)
Stadia Med Main (2020 | 336 Units)
Institutional Anchors – Proximity to NRG Stadium, The Woman’s Hospital of Texas, MD Anderson Cancer Center, and multiple major employers ensures steady traffic and demand.
Retail & Lifestyle Amenities – Walking distance or short drive to Target, Kroger, Walgreens, Fiesta, Ross, Pappas BBQ, Big Lots, Comfort Inn, Staybridge Suites, and numerous restaurants and services.
Education & Community Demand – Directly across from Longfellow Elementary School (533 students) and near The Tradition Retirement Community, creating multiple demographic drivers.
High Traffic Exposure – Excellent visibility with traffic counts of 29,160 VPD on Main Street and 8,999 VPD on Buffalo Speedway.
Flexible Development Opportunity – ±5.50 acres ideal for multifamily, medical office, senior living, mixed-use retail, or townhome development, capitalizing on the area’s strong residential and institutional base.
Imagine the possibilities: from residential units to commercial enterprises, the potential for successful development is endless. The property sits conveniently close to thriving residential communities, top-rated schools, and a bustling local economy anchored by major retailers such as Target, Kroger, and Walgreens.
Perfectly positioned at the crossroads of Buffalo Speedway and Main Street, with visibility to thousands of vehicles daily, this property ensures high traffic and accessibility. Whether you're aiming to capitalize on Houston's flourishing medical and educational sectors or tap into the vibrant local culture, this property is your canvas for success.
Don't miss this chance to create your vision in one of Texas's most dynamic environments. Contact us today to explore the future of your next big project. The Harris County Appraisal District has this property currently under the religious category which has its own benefits to those who operate in the space.
Property has over 50 rooms in a variety of configurations from offices to classrooms and conference rooms
Large Venue Room with great acoustics that can accommodate several hundred guest.
A Chapel with an occupancy to fit 200 people.
2 Commercial Grade Kitchens with Refrigerators and Dishwashing areas.
A full size Basketball Gym with a 277 occupant capacity
6 sets of restrooms throughout the complex.
Property has several hundred parking spots
Campus can be operated as a Multi-tenant facility as there are multiple entrances.
2 large playground areas to accommodate Toddlers and Children.
6 different Garden/Patio/Court Yard areas.
Includes a standalone building in rear of property to accommodate and need.
Investment Highlights – 3511 Linkwood Dr | ±5.50 Acres
Premier Location – Situated just minutes from the Texas Medical Center, the largest medical complex in the world with 120,000+ employees, driving consistent housing and retail demand.
Strong Surrounding Demographics – Affluent Braeswood neighborhood nearby, with home values ranging from $700K–$2.5M, providing strong purchasing power and demand for premium development.
High-Density Residential Growth – Surrounded by new Class A multifamily developments:
Mezzo Kirby Med Center (2016 | 378 Units)
Haven at Main (2017 | 256 Units)
South Main (2019 | 185 Units)
Stadia Med Main (2020 | 336 Units)
Institutional Anchors – Proximity to NRG Stadium, The Woman’s Hospital of Texas, MD Anderson Cancer Center, and multiple major employers ensures steady traffic and demand.
Retail & Lifestyle Amenities – Walking distance or short drive to Target, Kroger, Walgreens, Fiesta, Ross, Pappas BBQ, Big Lots, Comfort Inn, Staybridge Suites, and numerous restaurants and services.
Education & Community Demand – Directly across from Longfellow Elementary School (533 students) and near The Tradition Retirement Community, creating multiple demographic drivers.
High Traffic Exposure – Excellent visibility with traffic counts of 29,160 VPD on Main Street and 8,999 VPD on Buffalo Speedway.
Flexible Development Opportunity – ±5.50 acres ideal for multifamily, medical office, senior living, mixed-use retail, or townhome development, capitalizing on the area’s strong residential and institutional base.
Property Facts
| Sale Type | Owner User | Building Size | 48,000 SF |
| Property Type | Specialty | No. Stories | 1 |
| Property Subtype | Year Built/Renovated | 1995/2023 | |
| Building Class | C | Parking Ratio | 6.25/1,000 SF |
| Lot Size | 5.51 AC |
| Sale Type | Owner User |
| Property Type | Specialty |
| Property Subtype | |
| Building Class | C |
| Lot Size | 5.51 AC |
| Building Size | 48,000 SF |
| No. Stories | 1 |
| Year Built/Renovated | 1995/2023 |
| Parking Ratio | 6.25/1,000 SF |
Amenities
- Signage
- Wheelchair Accessible
Moderately walkable
70/100
Very drivable
80/100
Limited public transit
30/100
Moderately bikeable
60/100
Property Taxes
| Parcel Number | 0440860000235 | Improvements Assessment | $5,691,300 CAD |
| Land Assessment | $6,585,418 CAD | Total Assessment | $12,276,717 CAD |
Property Taxes
Parcel Number
0440860000235
Land Assessment
$6,585,418 CAD
Improvements Assessment
$5,691,300 CAD
Total Assessment
$12,276,717 CAD
1 of 68
Videos
Matterport 3D Exterior
Matterport 3D Tour
Photos
Street View
Street
Map
Presented by
3511 Linkwood Dr
Already a member? Log In
Hmm, there seems to have been an error sending your message. Please try again.
Thanks! Your message was sent.

