Log In/Sign Up
Your email has been sent.
3526 Louise Dr - Condos at Touchmark Center 1,207 SF Office/Medical Condo Unit Offered at $662,252 CAD in Meridian, ID 83642



PROPERTY FACTS
1 UNIT AVAILABLE
Unit 100
| Unit Size | 1,207 SF | Sale Type | Investment or Owner User |
| Price | $662,252 CAD | Cap Rate | 6.00% |
| Price Per SF | $548.68 CAD | NOI | $39,735.12 CAD |
| Condo Use | Office/Medical |
| Unit Size | 1,207 SF |
| Price | $662,252 CAD |
| Price Per SF | $548.68 CAD |
| Condo Use | Office/Medical |
| Sale Type | Investment or Owner User |
| Cap Rate | 6.00% |
| NOI | $39,735.12 CAD |
DESCRIPTION
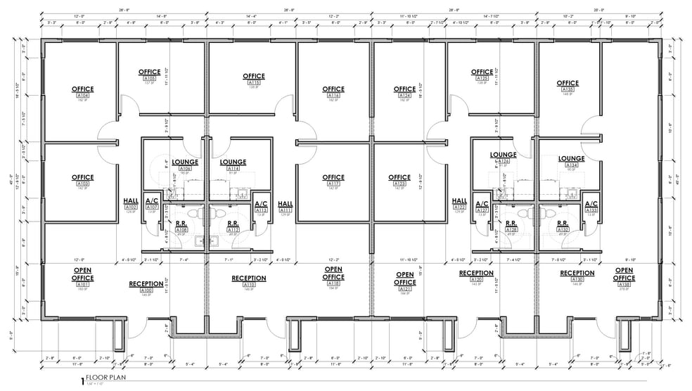
Three office/commercial condominiums available for sale at this newly constructed location in East Meridian. Each 1,207 square foot suite inlcudes reception area, kitchenette, private offices, restroom, large windows and on-site shared parking. Located in a central, convenient location on the southeast corner of the East Franklin and North Eagle Road intersection.
1 1
1 of 4
VIDEOS
MATTERPORT 3D EXTERIOR
MATTERPORT 3D TOUR
PHOTOS
STREET VIEW
STREET
MAP
1 of 1
Presented by
FlexSpace
3526 Louise Dr - Condos at Touchmark Center
Already a member? Log In
Hmm, there seems to have been an error sending your message. Please try again.
Thanks! Your message was sent.
