Your email has been sent.
3565 Cardinal Point Dr
Jacksonville, FL 32257
Office Property For Lease
·
2,806 SF


Highlights
- Free Standing Office Building
- Prestige Office Park Location off San Jose Boulevard
- Flexible Interior for Leasing and Expansion of Offices
- Excellent Condition and Beautiful Image
- Easy Ingress and Egress from San Jose Boulevard
Property Overview
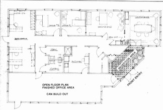
A very beautiful 2,806 SF Free-Standing office building situated in the Cardinal Point Business Park. Signage is available in front of the building and on San Jose Boulevard. Currently 5 offices plus a conference room plus a employee lounge area/break room/kitchenette and the balance is an adjacent 800 SF open floor plan that can be further subdivided into additional offices. Computer wiring throughout. City Water/Sewer, Zoned CCG1 The property is located in the heart of the San Jose-Mandarin area in the CARDINAL POINT BUSINESS PARK, just off San Jose Boulevard at Sunbeam Road and approximately 1/2 mile S. of Baymeadows Rd. Cardinal Point is a beautiful office park that contains 20 office buildings situated in a quiet atmosphere. There is a pylon sign on San Jose Blvd. identifying the Cardinal Point Business Park with a list of all of the business in the Park providing additional exposure to thousands of cars daily.
- Signage
