Log In/Sign Up
Your email has been sent.
36-42 Friars Walk 26,657 SF 100% Leased Office Building Lewes BN7 2PB $6,461,038 CAD ($242.38 CAD/SF)



Investment Highlights
- Town centre, three storey office building.
- Benefits from a variety of uses (Office, Training/Educational and Medical) , Suitable for conversion to residential subject to Planning.
Executive Summary
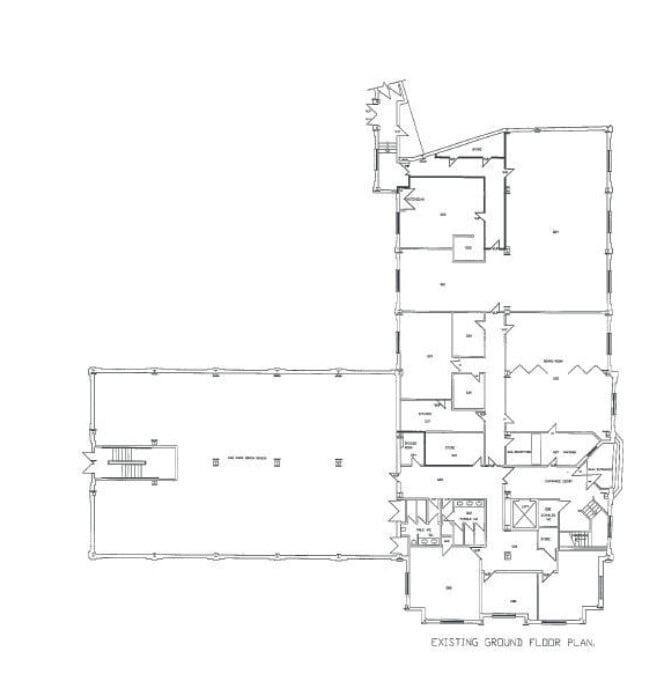
Town Centre, three storey office building with 64 on-site car parking spaces.
Suitable for office, training/educational and medical uses or conversion to residential, subject to planning.
The property is situated on Friars Walk in the centre of Lewes opposite the Premier Inn. Lewes is a busy and affluent market town with a population of approx. 17,000, located some 9 miles north east of Brighton on the A27 trunk road.
The building is a purpose built office originally constructed in 1990 as the headquarters of the Southdown Building Society. The building is arranged over 3 floors in a L shaped block with the main wing fronting the public highway. The building is of steel frame under a tile covered pitched roof with brick elevations. Windows are double glazed, set in powder coated aluminum frames.
Internally the specification is typically plastered and decorated walls, acoustic tiled suspended ceilings and solid floors with carpet tile coverings. The accommodation is centrally heated, with comfort cooling to the ground floor only. Lighting is by way of recessed fluorescent strips and power and IT distribution via a mix of perimeter, pillar and floor trunking
There are male and female WC'S and kitchen facilities on each floor.
The property has a single main staircase off the reception area and an 8 person passenger lift
There are a total of 64 car parking spaces arranged in the undercroft area and rear surface car parking which is accessed from either a carriage entrance from Friars Walk beneath the adjacent building or the access road running to the side of the property.
The property has been measured as office accommodation and was found to provide the following approximate areas.
The property is situated within a Conservation Area and is over 1500 sq m and therefore Prior Approval is not a planning option that can be followed. The adjacent property has been converted to a mixed-use building which includes residential use and there has been residential development undertaken immediately to the rear of the property. Purchasers are advised to make their own enquiries of the local planning Authority Lewes District Council. 01273 471600.
Offers invited in excess of £5million for the freehold with the benefit of vacant possession. The vendors are prepared to consider offers which are conditional on planning.
The premises are currently assessed as Offices and Premises with a Rateable Value of £175,000.
Suitable for office, training/educational and medical uses or conversion to residential, subject to planning.
The property is situated on Friars Walk in the centre of Lewes opposite the Premier Inn. Lewes is a busy and affluent market town with a population of approx. 17,000, located some 9 miles north east of Brighton on the A27 trunk road.
The building is a purpose built office originally constructed in 1990 as the headquarters of the Southdown Building Society. The building is arranged over 3 floors in a L shaped block with the main wing fronting the public highway. The building is of steel frame under a tile covered pitched roof with brick elevations. Windows are double glazed, set in powder coated aluminum frames.
Internally the specification is typically plastered and decorated walls, acoustic tiled suspended ceilings and solid floors with carpet tile coverings. The accommodation is centrally heated, with comfort cooling to the ground floor only. Lighting is by way of recessed fluorescent strips and power and IT distribution via a mix of perimeter, pillar and floor trunking
There are male and female WC'S and kitchen facilities on each floor.
The property has a single main staircase off the reception area and an 8 person passenger lift
There are a total of 64 car parking spaces arranged in the undercroft area and rear surface car parking which is accessed from either a carriage entrance from Friars Walk beneath the adjacent building or the access road running to the side of the property.
The property has been measured as office accommodation and was found to provide the following approximate areas.
The property is situated within a Conservation Area and is over 1500 sq m and therefore Prior Approval is not a planning option that can be followed. The adjacent property has been converted to a mixed-use building which includes residential use and there has been residential development undertaken immediately to the rear of the property. Purchasers are advised to make their own enquiries of the local planning Authority Lewes District Council. 01273 471600.
Offers invited in excess of £5million for the freehold with the benefit of vacant possession. The vendors are prepared to consider offers which are conditional on planning.
The premises are currently assessed as Offices and Premises with a Rateable Value of £175,000.
Property Facts Sale Pending
Sale Type
Investment or Owner User
Property Type
Office
Tenure
Freehold
Building Size
26,657 SF
Building Class
B
Year Built
1990
Price
$6,461,038 CAD
Price Per SF
$242.38 CAD
Percent Leased
100%
Tenancy
Multiple
Building Height
4 Stories
Typical Floor Size
6,664 SF
Building FAR
1.36
Lot Size
0.45 AC
Parking
27 Spaces (1.01 Spaces per 1,000 SF Leased)
Amenities
- Security System
- Energy Performance Rating - E
- Storage Space
- Demised WC facilities
- Natural Light
- Recessed Lighting
- Secure Storage
- Shower Facilities
- Yard
1 1
1 of 8
Videos
Matterport 3D Exterior
Matterport 3D Tour
Photos
Street View
Street
Map
1 of 1
Presented by
Company Not Provided
36-42 Friars Walk
Already a member? Log In
Hmm, there seems to have been an error sending your message. Please try again.
Thanks! Your message was sent.
