Your email has been sent.
Highlights
- Businesses can benefit from prominent, available building signage with exceptional exposure to I-494 and France Avenue.
- Connected to Centennial Lakes Park, a 24-acre park featuring walking trails, gardens, an amphitheater, summer activities, and winter ice skating.
- Wi-Fi is available throughout the common areas, and Comcast, CenturyLink, and TW Telecom provide an exceptional telecommunications infrastructure.
- Outdoor patio areas, including a putting green, bag toss, fireplace, grill, and water feature.
- Includes a state-of-the-art conference facility, which accommodates 75 people and can be divided into two individual conference rooms.
All Available Spaces(6)
Display Rental Rate as
- Space
- Size
- Term
- Rental Rate
- Space Use
- Build-Out
- Available
Great MEDICAL option!!
- Lease rate does not include utilities, property expenses or building services
- Office intensive layout
- Space is in Excellent Condition
- Fully Built-Out as Standard Office
- Finished Ceilings: 9’
Great MEDICAL option!!
- Lease rate does not include utilities, property expenses or building services
- Office intensive layout
- Space is in Excellent Condition
- Fully Built-Out as Standard Office
- Finished Ceilings: 9’
- Lease rate does not include utilities, property expenses or building services
- 4 Private Offices
- Fully Built-Out as Standard Office
- Lease rate does not include utilities, property expenses or building services
- Lease rate does not include utilities, property expenses or building services
- Fully Built-Out as Standard Office
- Lease rate does not include utilities, property expenses or building services
- Fully Built-Out as Standard Office
| Space | Size | Term | Rental Rate | Space Use | Build-Out | Available |
| 2nd Floor, Ste 210 | 3,031 SF | Negotiable | $23.87 CAD/SF/YR $1.99 CAD/SF/MO $72,363 CAD/YR $6,030 CAD/MO | Office | Full Build-Out | Now |
| 3rd Floor, Ste 300 | 23,643 SF | Negotiable | $23.87 CAD/SF/YR $1.99 CAD/SF/MO $564,458 CAD/YR $47,038 CAD/MO | Office | Full Build-Out | Now |
| 4th Floor, Ste 445 | 1,587 SF | Negotiable | $23.87 CAD/SF/YR $1.99 CAD/SF/MO $37,888 CAD/YR $3,157 CAD/MO | Office | Full Build-Out | Now |
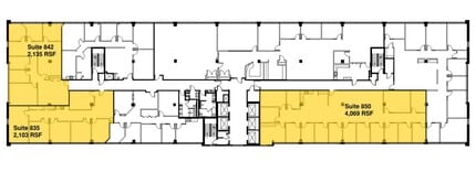
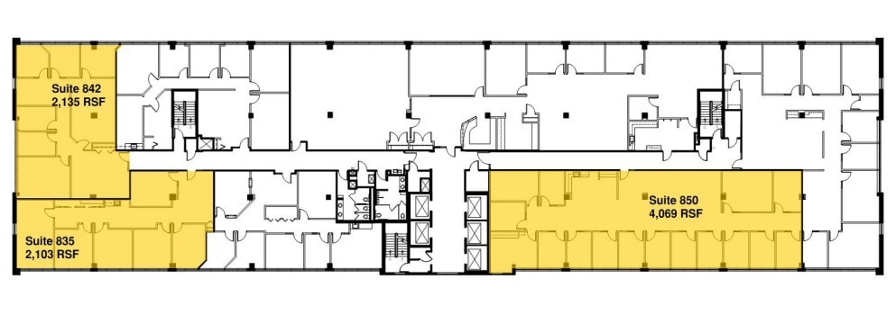
| 6th Floor, Ste 650 | 5,593 SF | Negotiable | $23.87 CAD/SF/YR $1.99 CAD/SF/MO $133,528 CAD/YR $11,127 CAD/MO | Office/Medical | Full Build-Out | Now |
| 6th Floor, Ste 685 | 1,198 SF | Negotiable | $23.87 CAD/SF/YR $1.99 CAD/SF/MO $28,601 CAD/YR $2,383 CAD/MO | Office | Full Build-Out | 30 Days |
| 7th Floor, Ste 700 | 5,000-22,477 SF | Negotiable | $23.87 CAD/SF/YR $1.99 CAD/SF/MO $536,620 CAD/YR $44,718 CAD/MO | Office | Full Build-Out | Now |
2nd Floor, Ste 210
| Size |
| 3,031 SF |
| Term |
| Negotiable |
| Rental Rate |
| $23.87 CAD/SF/YR $1.99 CAD/SF/MO $72,363 CAD/YR $6,030 CAD/MO |
| Space Use |
| Office |
| Build-Out |
| Full Build-Out |
| Available |
| Now |
3rd Floor, Ste 300
| Size |
| 23,643 SF |
| Term |
| Negotiable |
| Rental Rate |
| $23.87 CAD/SF/YR $1.99 CAD/SF/MO $564,458 CAD/YR $47,038 CAD/MO |
| Space Use |
| Office |
| Build-Out |
| Full Build-Out |
| Available |
| Now |
4th Floor, Ste 445
| Size |
| 1,587 SF |
| Term |
| Negotiable |
| Rental Rate |
| $23.87 CAD/SF/YR $1.99 CAD/SF/MO $37,888 CAD/YR $3,157 CAD/MO |
| Space Use |
| Office |
| Build-Out |
| Full Build-Out |
| Available |
| Now |
6th Floor, Ste 650
| Size |
| 5,593 SF |
| Term |
| Negotiable |
| Rental Rate |
| $23.87 CAD/SF/YR $1.99 CAD/SF/MO $133,528 CAD/YR $11,127 CAD/MO |
| Space Use |
| Office/Medical |
| Build-Out |
| Full Build-Out |
| Available |
| Now |
6th Floor, Ste 685
| Size |
| 1,198 SF |
| Term |
| Negotiable |
| Rental Rate |
| $23.87 CAD/SF/YR $1.99 CAD/SF/MO $28,601 CAD/YR $2,383 CAD/MO |
| Space Use |
| Office |
| Build-Out |
| Full Build-Out |
| Available |
| 30 Days |
7th Floor, Ste 700
| Size |
| 5,000-22,477 SF |
| Term |
| Negotiable |
| Rental Rate |
| $23.87 CAD/SF/YR $1.99 CAD/SF/MO $536,620 CAD/YR $44,718 CAD/MO |
| Space Use |
| Office |
| Build-Out |
| Full Build-Out |
| Available |
| Now |
2nd Floor, Ste 210
| Size | 3,031 SF |
| Term | Negotiable |
| Rental Rate | $23.87 CAD/SF/YR |
| Space Use | Office |
| Build-Out | Full Build-Out |
| Available | Now |
Great MEDICAL option!!
- Lease rate does not include utilities, property expenses or building services
- Fully Built-Out as Standard Office
- Office intensive layout
- Finished Ceilings: 9’
- Space is in Excellent Condition
3rd Floor, Ste 300
| Size | 23,643 SF |
| Term | Negotiable |
| Rental Rate | $23.87 CAD/SF/YR |
| Space Use | Office |
| Build-Out | Full Build-Out |
| Available | Now |
Great MEDICAL option!!
- Lease rate does not include utilities, property expenses or building services
- Fully Built-Out as Standard Office
- Office intensive layout
- Finished Ceilings: 9’
- Space is in Excellent Condition
4th Floor, Ste 445
| Size | 1,587 SF |
| Term | Negotiable |
| Rental Rate | $23.87 CAD/SF/YR |
| Space Use | Office |
| Build-Out | Full Build-Out |
| Available | Now |
- Lease rate does not include utilities, property expenses or building services
- Fully Built-Out as Standard Office
- 4 Private Offices
6th Floor, Ste 650
| Size | 5,593 SF |
| Term | Negotiable |
| Rental Rate | $23.87 CAD/SF/YR |
| Space Use | Office/Medical |
| Build-Out | Full Build-Out |
| Available | Now |
- Lease rate does not include utilities, property expenses or building services
6th Floor, Ste 685
| Size | 1,198 SF |
| Term | Negotiable |
| Rental Rate | $23.87 CAD/SF/YR |
| Space Use | Office |
| Build-Out | Full Build-Out |
| Available | 30 Days |
- Lease rate does not include utilities, property expenses or building services
- Fully Built-Out as Standard Office
7th Floor, Ste 700
| Size | 5,000-22,477 SF |
| Term | Negotiable |
| Rental Rate | $23.87 CAD/SF/YR |
| Space Use | Office |
| Build-Out | Full Build-Out |
| Available | Now |
- Lease rate does not include utilities, property expenses or building services
- Fully Built-Out as Standard Office
Property Overview
Convenience and luxury are in reach at France Place, a high-end office tower sporting a variety of turnkey suites and amenities. The nine-story, Energy Star-rated building was recently renovated in 2019 and features offices ranging in size from 716 to 24,420 square feet, making it ideal for small operations as well as organizations looking for their next regional headquarters. Treat employees to state-of-the-art conference facilities, a café and catering service, outdoor patio areas, a fitness center with locker rooms and showers, personal fitness consultation services, underground climate-controlled executive parking, and Wi-Fi throughout the common areas. The property and surrounding area provide an exceptional standard of living and connectivity to the best that the Twin Cities offers with direct access to and visibility from I-494. The same corridor plays host to a collection of recognizable brand names like Target, the Best Buy Headquarters, Trader Joe’s, Dick’s Sporting Good, REI, The Home Depot. By way of the Northside Boardwalk, the building is connected to Centennial Lakes Park, an expansive park that features walking trails, an amphitheater, gardens, sculptures, summer activities, winter ice skating, and more, all centered around an artificial pond. Enveloping the property is also an eclectic mix of casual and high-end dining options that will please any palate. Commuters can reach the Central Business Districts of Minneapolis and Saint Paul in an 18- and 31-minute drive, respectively, with the Minneapolis-Saint Paul International Airport accessible in only 14 minutes. When convenience, connectivity, and class are key, France Place at 3601 Minnesota Drive is the ideal destination.
- 24 Hour Access
- Bus Line
- Conferencing Facility
- Fitness Center
- Restaurant
- Signage
- Central Heating
- Air Conditioning
- Smoke Detector
Property Facts
Presented by
France Place | 3601 Minnesota Dr
Hmm, there seems to have been an error sending your message. Please try again.
Thanks! Your message was sent.













