Log In/Sign Up
Your email has been sent.
Highlights
- Prominent location on California Ave.
- Professional office.
- Ready to occupy.
- Excellent visibility.
- Building signage.
- Flexible lease terms.
All Available Space(1)
Display Rental Rate as
- Space
- Size
- Term
- Rental Rate
- Space Use
- Build-Out
- Available
- Listed rate may not include certain utilities, building services and property expenses
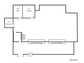
- Open Floor Plan Layout
- Secure Storage
- Fully Built-Out as Standard Office
- Private Restrooms
| Space | Size | Term | Rental Rate | Space Use | Build-Out | Available |
| 2nd Floor, Ste Suite D | 729 SF | Negotiable | $44.86 CAD/SF/YR $3.74 CAD/SF/MO $32,700 CAD/YR $2,725 CAD/MO | Office | Full Build-Out | Now |
2nd Floor, Ste Suite D
| Size |
| 729 SF |
| Term |
| Negotiable |
| Rental Rate |
| $44.86 CAD/SF/YR $3.74 CAD/SF/MO $32,700 CAD/YR $2,725 CAD/MO |
| Space Use |
| Office |
| Build-Out |
| Full Build-Out |
| Available |
| Now |
1 of 1
Videos
Matterport 3D Exterior
Matterport 3D Tour
Photos
Street View
Street
Map
2nd Floor, Ste Suite D
| Size | 729 SF |
| Term | Negotiable |
| Rental Rate | $44.86 CAD/SF/YR |
| Space Use | Office |
| Build-Out | Full Build-Out |
| Available | Now |
- Listed rate may not include certain utilities, building services and property expenses
- Fully Built-Out as Standard Office
- Open Floor Plan Layout
- Private Restrooms
- Secure Storage
Property Overview
3631 California Ave is located near the southwest corner of Real Road and California Ave.
- Signage
Property Facts
Building Type
Office
Year Built
1980
Building Height
2 Stories
Building Size
5,209 SF
Building Class
C
Typical Floor Size
2,604 SF
1 1
Moderately walkable
60/100
Exceptionally drivable
100/100
Limited public transit
30/100
Moderately bikeable
60/100
1 of 8
Videos
Matterport 3D Exterior
Matterport 3D Tour
Photos
Street View
Street
Map
1 of 1
Presented by
3631 California Ave
Already a member? Log In
Hmm, there seems to have been an error sending your message. Please try again.
Thanks! Your message was sent.





