Log In/Sign Up
Your email has been sent.
3663 S Dairy Ashford Rd 7,000 SF Retail Building Houston, TX 77082 $3,974,189 CAD ($567.74 CAD/SF)



Executive Summary
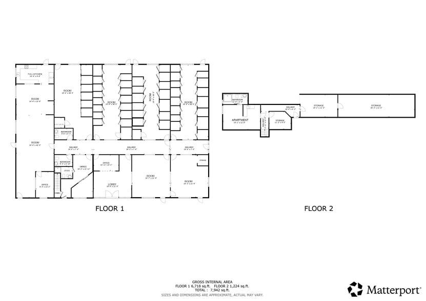
Exceptional multi-use opportunity in West Houston. This purpose-built seven thousand square foot facility on two acres combines proven operational infrastructure with significant expansion potential. The main building features classroom spaces ideal for education, wellness, or service-based businesses, plus a full kitchen, and a recently refreshed roof installed approximately four years ago. The standout feature is one acre of undeveloped, cleared land—perfect for parking expansion or additional facilities. This positioning makes the property particularly well-suited for funeral home operations seeking a dignified, conveniently located campus with room to grow. Additional uses include veterinary clinics, yoga and wellness studios, charter schools, churches, and specialized service providers. Strong bones, versatile layout, and genuine upside for the right operator.
Real estate offered for sale. Operational details available upon execution of confidentiality agreement.
Please do not disturb staff or clients. All inquiries must be directed to broker.
Real estate offered for sale. Operational details available upon execution of confidentiality agreement.
Please do not disturb staff or clients. All inquiries must be directed to broker.
Property Facts
Sale Type
Owner User
Property Type
Retail
Property Subtype
Building Size
7,000 SF
Building Class
B
Year Built
2000
Price
$3,974,189 CAD
Price Per SF
$567.74 CAD
Building Height
1 Story
Building FAR
0.08
Lot Size
2.00 AC
Space Availability
- Space
- Size
- Space Use
- Position
- Available
- 1st Floor
- 7,000 SF
- Retail
- -
- 30 Days
| Space | Size | Space Use | Position | Available |
| 1st Floor | 7,000 SF | Retail | - | 30 Days |
1st Floor
| Size |
| 7,000 SF |
| Space Use |
| Retail |
| Position |
| - |
| Available |
| 30 Days |
Moderately walkable
60/100
Moderately drivable
70/100
Limited public transit
30/100
Moderately bikeable
60/100
Nearby Major Retailers
Property Taxes
| Parcel Number | 1204340020002 | Improvements Assessment | $1,170,320 CAD |
| Land Assessment | $668,005 CAD | Total Assessment | $1,838,324 CAD |
Property Taxes
Parcel Number
1204340020002
Land Assessment
$668,005 CAD
Improvements Assessment
$1,170,320 CAD
Total Assessment
$1,838,324 CAD
1 of 8
Videos
Matterport 3D Exterior
Matterport 3D Tour
Photos
Street View
Street
Map
Presented by
WSW Realty LLC
3663 S Dairy Ashford Rd
Already a member? Log In
Hmm, there seems to have been an error sending your message. Please try again.
Thanks! Your message was sent.

