Log In/Sign Up
Your email has been sent.
Highlights
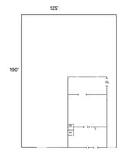
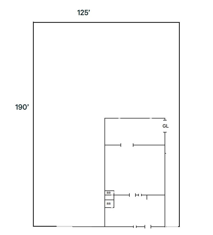
- ±2,050 SF HVAC Showroom.
- Power 400 Amps 3 phase.
- 1 Grade Level Door.
- ±5,132 SF of Storage.
- ±125’ of Street Frontage.
Features
Drive In Bays
1
Standard Parking Spaces
11
All Available Space(1)
Display Rental Rate as
- Space
- Size
- Term
- Rental Rate
- Space Use
- Build-Out
- Available
±7,182 SF Free Standing Building ±2,050 SF Showroom ±5,132 SF of Storage Power 400 Amps 3 phase ±23,750 SF Fenced and Paved lot ±125’ of Street Frontage 1 Grade Level Door
- 1 Drive Bay
| Space | Size | Term | Rental Rate | Space Use | Build-Out | Available |
| 1st Floor | 7,182 SF | Negotiable | Upon Request Upon Request Upon Request Upon Request | Industrial | Full Build-Out | Now |
1st Floor
| Size |
| 7,182 SF |
| Term |
| Negotiable |
| Rental Rate |
| Upon Request Upon Request Upon Request Upon Request |
| Space Use |
| Industrial |
| Build-Out |
| Full Build-Out |
| Available |
| Now |
1 of 1
Videos
Matterport 3D Exterior
Matterport 3D Tour
Photos
Street View
Street
Map
1st Floor
| Size | 7,182 SF |
| Term | Negotiable |
| Rental Rate | Upon Request |
| Space Use | Industrial |
| Build-Out | Full Build-Out |
| Available | Now |
±7,182 SF Free Standing Building ±2,050 SF Showroom ±5,132 SF of Storage Power 400 Amps 3 phase ±23,750 SF Fenced and Paved lot ±125’ of Street Frontage 1 Grade Level Door
- 1 Drive Bay
Property Overview
±7,182 SF Free Standing Building. ±23,750 SF Fenced and Paved lot.
Industrial Facility Facts
Building Size
7,182 SF
Lot Size
0.57 AC
Year Built
1955
Construction
Reinforced Concrete
Zoning
CC, Fremont
Select Tenants
- Floor
- Tenant Name
- Industry
- 1st
- Best Tile Inc
- Wholesaler
- 1st
- Centerville Saw & Tool
- Retailer
1 1
Fairly walkable
50/100
Exceptionally drivable
100/100
Good public transit
70/100
Moderately bikeable
60/100
1 of 12
Videos
Matterport 3D Exterior
Matterport 3D Tour
Photos
Street View
Street
Map
1 of 1
Presented by
3674-3684 Peralta Blvd
Already a member? Log In
Hmm, there seems to have been an error sending your message. Please try again.
Thanks! Your message was sent.





