Log In/Sign Up
Your email has been sent.
369 S Mobile St
Fairhope, AL 36532
Bay Break · Retail Property For Sale


Investment Highlights
- 154' of road frontage
Executive Summary
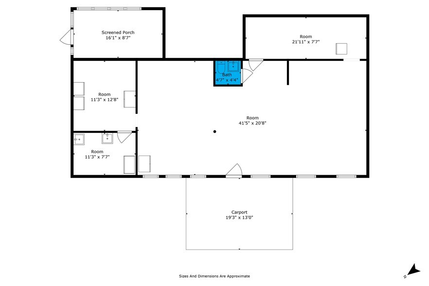
Retail Store along the Mobile Bay with 154' of road frontage is now available. This space has been previously used as Ice Ice Baby Sno-Cones, along with other retail spots here in Fairhope. Previously approved for a mixed use building with residential condos above retail. Plans available upon request.
Property Facts
Sale Type
Owner User
Property Type
Retail
Property Subtype
Building Size
1,188 SF
Building Class
C
Year Built
1945
Price
$2,038,155 CAD
Price Per SF
$1,715.62 CAD
Tenancy
Multiple
Building Height
1 Story
Building FAR
0.14
Lot Size
0.20 AC
Zoning
B3B - Tourist Lodging
Parking
9 Spaces (7.58 Spaces per 1,000 SF Leased)
Frontage
Amenities
- Corner Lot
- Waterfront
Property Taxes
| Parcel Number | 46-03-37-0-011-056.000 | Improvements Assessment | $20,517 CAD |
| Land Assessment | $76,444 CAD | Total Assessment | $96,962 CAD |
Property Taxes
Parcel Number
46-03-37-0-011-056.000
Land Assessment
$76,444 CAD
Improvements Assessment
$20,517 CAD
Total Assessment
$96,962 CAD
1 of 20
Videos
Matterport 3D Exterior
Matterport 3D Tour
Photos
Street View
Street
Map
