Log In/Sign Up
Your email has been sent.
Bridge Street Fire House 37 W Bridge St 7,092 SF 100% Leased Office Building Dublin, OH 43017 $5,432,830 CAD ($766.05 CAD/SF)



Investment Highlights
- Prime Old Dublin Location. Located in the heart of Dublin’s Old Dublin district. Within walking distance to Bridge Park and Riverview Village
- Over 100 public parking spaces immediately adjacent to the building to the south and east, providing convenient parking for tenants, clients & visitor
- Attractive income-producing investment opportunity. Pro Forma with market rents and a NNN structure exceed 6% cap rate
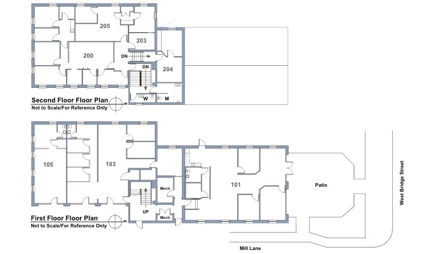
- 100% Occupied. The property is currently fully leased to seven tenants, providing immediate income and strong occupancy stability for an investor.
- Originally constructed in 1944 as the Dublin Firehouse, the building offers distinctive architectural character and authentic historic charm
Executive Summary
Positioned in the core of Historic Dublin, 37 W. Bridge Street offers a rare, fully leased multi-tenant asset with immediate income and clear upside. The combination of irreplaceable character, walkable location, and strong tenant mix makes this a highly marketable opportunity with both investor and owner-user appeal. ?
Highlights:
• 7,092 SF historic multi-tenant office/retail asset
• 100% occupied with 7 tenants providing in-place cash flow
• Pro forma supports 6%+ cap rate with NNN structure
• Prime walkable location between Old Dublin, Bridge Park, and Riverview Village
• Over 100 adjacent public parking spaces plus 500+ nearby
• Well-maintained with minimal near-term capital needs
• Strong owner-user flexibility with income in place
Highlights:
• 7,092 SF historic multi-tenant office/retail asset
• 100% occupied with 7 tenants providing in-place cash flow
• Pro forma supports 6%+ cap rate with NNN structure
• Prime walkable location between Old Dublin, Bridge Park, and Riverview Village
• Over 100 adjacent public parking spaces plus 500+ nearby
• Well-maintained with minimal near-term capital needs
• Strong owner-user flexibility with income in place
Financial Summary (Actual - 2025) Click Here to Access |
Annual (CAD) | Annual Per SF (CAD) |
|---|---|---|
| Gross Rental Income |
$99,999
|
$9.99
|
| Other Income |
-
|
-
|
| Vacancy Loss |
-
|
-
|
| Effective Gross Income |
$99,999
|
$9.99
|
| Taxes |
$99,999
|
$9.99
|
| Operating Expenses |
$99,999
|
$9.99
|
| Total Expenses |
$99,999
|
$9.99
|
| Net Operating Income |
$99,999
|
$9.99
|
Financial Summary (Actual - 2025) Click Here to Access
| Gross Rental Income (CAD) | |
|---|---|
| Annual | $99,999 |
| Annual Per SF | $9.99 |
| Other Income (CAD) | |
|---|---|
| Annual | - |
| Annual Per SF | - |
| Vacancy Loss (CAD) | |
|---|---|
| Annual | - |
| Annual Per SF | - |
| Effective Gross Income (CAD) | |
|---|---|
| Annual | $99,999 |
| Annual Per SF | $9.99 |
| Taxes (CAD) | |
|---|---|
| Annual | $99,999 |
| Annual Per SF | $9.99 |
| Operating Expenses (CAD) | |
|---|---|
| Annual | $99,999 |
| Annual Per SF | $9.99 |
| Total Expenses (CAD) | |
|---|---|
| Annual | $99,999 |
| Annual Per SF | $9.99 |
| Net Operating Income (CAD) | |
|---|---|
| Annual | $99,999 |
| Annual Per SF | $9.99 |
Property Facts
Sale Type
Investment or Owner User
Property Type
Building Size
7,092 SF
Building Class
B
Year Built/Renovated
1930/2021
Price
$5,432,830 CAD
Price Per SF
$766.05 CAD
Percent Leased
100%
Tenancy
Multiple
Building Height
2 Stories
Typical Floor Size
3,546 SF
Building FAR
0.65
Lot Size
0.25 AC
Zoning
HD-HC - The zoning for this property is Historic Core District. See Marketing Package for permitted uses.
Parking
3 Spaces (0.42 Spaces per 1,000 SF Leased)
Amenities
- Signage
Fairly walkable
50/100
Exceptionally drivable
100/100
Limited public transit
30/100
Somewhat bikeable
30/100
Property Taxes
| Parcel Number | 273-000088 | Total Assessment | $321,805 CAD |
| Land Assessment | $104,391 CAD | Annual Taxes | -$1 CAD ($0.00 CAD/SF) |
| Improvements Assessment | $217,415 CAD | Tax Year | 2025 |
Property Taxes
Parcel Number
273-000088
Land Assessment
$104,391 CAD
Improvements Assessment
$217,415 CAD
Total Assessment
$321,805 CAD
Annual Taxes
-$1 CAD ($0.00 CAD/SF)
Tax Year
2025
1 of 36
Videos
Matterport 3D Exterior
Matterport 3D Tour
Photos
Street View
Street
Map
Presented by
Bridge Street Fire House | 37 W Bridge St
Already a member? Log In
Hmm, there seems to have been an error sending your message. Please try again.
Thanks! Your message was sent.

