Your email has been sent.
3700 W Morse Ave 12,000 - 47,000 SF of Flex Space Available in Lincolnwood, IL 60712



Features
All Available Spaces(2)
Display Rental Rate as
- Space
- Size
- Term
- Rental Rate
- Space Use
- Build-Out
- Available
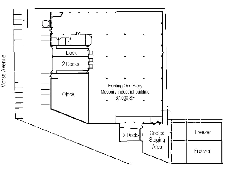
The property features an AIB superior rating, a linear flow and open-bay configuration, and modern. It is in a business friendly Lincolnwood location. The building is a brick/block production facility with an insulated panel freezer addition in 2000 and 2004. There is a 20' clear production area with a 30' clear freezer (fully racked, two deep, three high, with 600 pallet positions). There are six R-507 chillers (three each for the two freezer sections), with glycol protected floors, and a 37-degree refrigerated shipping vestibule. There are three enclosed truck docks with 8x10 overhead doors, pads, seals, and levelers; two external refrigerated shipping truck docks with 8x10 insulated doors, pads, seals, and levelers; and one 12x14 manual grade-level door, all with concrete aprons. There are two Champion air compressors (130 psi), with one refrigerated air dryer. Also epoxy floors (in the mixing and prep area), an explosion proof boiler room, air out-take wall units, an air make-up unit, gas-fired ceiling units, skylights, interior roof drains, and ceiling fans. There is a fenced foundation pad for bulk ingredient storage and internal distribution.
- Includes 5,000 SF of dedicated office space
- 1 Drive Bay
- Central Air and Heating
- Freezer Space
- Recessed Lighting
- Private Restrooms
- Conference Rooms
- Space is in Excellent Condition
- 5 Loading Docks
- Private Restrooms
- Drop Ceilings
- Common Parts WC Facilities
- High Ceilings
The building is a production facility with an insulated panel freezer addition in 2000 and 2004. There is a 20' clear production area with a 30' clear freezer (fully racked, two deep, three high, with 800 pallet positions). There are six R-507 chillers (three each for the two freezer sections), with glycol protected floors, and a 37-degree refrigerated shipping vestibule. Two external refrigerated shipping truck docks with 8x10 insulated doors, pads, seals, and levelers with concrete aprons.
- Space is in Excellent Condition
- Raised Floor
- Corner Space
- Freezer Space
- High Ceilings
- 10,00 SF Freezer Cooler space
| Space | Size | Term | Rental Rate | Space Use | Build-Out | Available |
| 1st Floor - 101 | 35,000 SF | 5 Years | $20.64 CAD/SF/YR $1.72 CAD/SF/MO $722,442 CAD/YR $60,204 CAD/MO | Flex | Full Build-Out | 60 Days |
| 1st Floor - 102 | 12,000 SF | Negotiable | $22.02 CAD/SF/YR $1.83 CAD/SF/MO $264,207 CAD/YR $22,017 CAD/MO | Flex | Partial Build-Out | 30 Days |
1st Floor - 101
| Size |
| 35,000 SF |
| Term |
| 5 Years |
| Rental Rate |
| $20.64 CAD/SF/YR $1.72 CAD/SF/MO $722,442 CAD/YR $60,204 CAD/MO |
| Space Use |
| Flex |
| Build-Out |
| Full Build-Out |
| Available |
| 60 Days |
1st Floor - 102
| Size |
| 12,000 SF |
| Term |
| Negotiable |
| Rental Rate |
| $22.02 CAD/SF/YR $1.83 CAD/SF/MO $264,207 CAD/YR $22,017 CAD/MO |
| Space Use |
| Flex |
| Build-Out |
| Partial Build-Out |
| Available |
| 30 Days |
1st Floor - 101
| Size | 35,000 SF |
| Term | 5 Years |
| Rental Rate | $20.64 CAD/SF/YR |
| Space Use | Flex |
| Build-Out | Full Build-Out |
| Available | 60 Days |
The property features an AIB superior rating, a linear flow and open-bay configuration, and modern. It is in a business friendly Lincolnwood location. The building is a brick/block production facility with an insulated panel freezer addition in 2000 and 2004. There is a 20' clear production area with a 30' clear freezer (fully racked, two deep, three high, with 600 pallet positions). There are six R-507 chillers (three each for the two freezer sections), with glycol protected floors, and a 37-degree refrigerated shipping vestibule. There are three enclosed truck docks with 8x10 overhead doors, pads, seals, and levelers; two external refrigerated shipping truck docks with 8x10 insulated doors, pads, seals, and levelers; and one 12x14 manual grade-level door, all with concrete aprons. There are two Champion air compressors (130 psi), with one refrigerated air dryer. Also epoxy floors (in the mixing and prep area), an explosion proof boiler room, air out-take wall units, an air make-up unit, gas-fired ceiling units, skylights, interior roof drains, and ceiling fans. There is a fenced foundation pad for bulk ingredient storage and internal distribution.
- Includes 5,000 SF of dedicated office space
- Space is in Excellent Condition
- 1 Drive Bay
- 5 Loading Docks
- Central Air and Heating
- Private Restrooms
- Freezer Space
- Drop Ceilings
- Recessed Lighting
- Common Parts WC Facilities
- Private Restrooms
- High Ceilings
- Conference Rooms
1st Floor - 102
| Size | 12,000 SF |
| Term | Negotiable |
| Rental Rate | $22.02 CAD/SF/YR |
| Space Use | Flex |
| Build-Out | Partial Build-Out |
| Available | 30 Days |
The building is a production facility with an insulated panel freezer addition in 2000 and 2004. There is a 20' clear production area with a 30' clear freezer (fully racked, two deep, three high, with 800 pallet positions). There are six R-507 chillers (three each for the two freezer sections), with glycol protected floors, and a 37-degree refrigerated shipping vestibule. Two external refrigerated shipping truck docks with 8x10 insulated doors, pads, seals, and levelers with concrete aprons.
- Space is in Excellent Condition
- Freezer Space
- Raised Floor
- High Ceilings
- Corner Space
- 10,00 SF Freezer Cooler space
Property Overview
The property features an AIB superior rating, a linear flow and open-bay configuration, and modern, two-story offices. It is in a business friendly Lincolnwood location. The owner will be fully upgrading the fire protection and alamrs to current code. The building is a brick/block production facility with an insulated panel freezer addition in 2000 and 2004. There is a 20' clear production area with a 30' clear freezer (fully racked, three deep, three high, with 800 pallet positions). There are six R-507 chillers (three each for the two freezer sections), with glycol protected floors, and a 34-degree refrigerated shipping vestibule. There are three enclosed truck docks with 8x10 overhead doors, pads, seals, and levelers; two external refrigerated shipping truck docks with 8x10 insulated doors, pads, seals, and levelers; and one 12x14 manual grade-level door, all with concrete aprons. There are two Champion air compressors (130 psi), with one refrigerated air dryer. Also epoxy floors (in the mixing and prep area), an explosion proof boiler room, air out-take wall units, an air make-up unit, gas-fired ceiling units, skylights, interior roof drains, and ceiling fans. There is a fenced foundation pad for bulk ingredient storage and internal distribution.
Manufacturing Facility Facts
Presented by
3700 W Morse Ave
Hmm, there seems to have been an error sending your message. Please try again.
Thanks! Your message was sent.
