Log In/Sign Up
Your email has been sent.
All Available Space(1)
Display Rental Rate as
- Space
- Size
- Term
- Rental Rate
- Space Use
- Condition
- Available
New Development. ADA compliant with ramp. Situated at the base of 184-unit residential building.
- Located in-line with other retail
- Finished Ceilings: 14’
- Space In Need of Renovation
- 65' of frontage
| Space | Size | Term | Rental Rate | Space Use | Condition | Available |
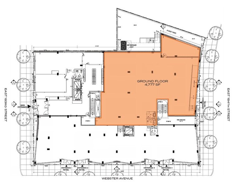
| Ground | 4,777 SF | Negotiable | Upon Request Upon Request Upon Request Upon Request | Retail | Shell Space | Now |
Ground
| Size |
| 4,777 SF |
| Term |
| Negotiable |
| Rental Rate |
| Upon Request Upon Request Upon Request Upon Request |
| Space Use |
| Retail |
| Condition |
| Shell Space |
| Available |
| Now |
1 of 2
Videos
Matterport 3D Exterior
Matterport 3D Tour
Photos
Street View
Street
Map
Ground
| Size | 4,777 SF |
| Term | Negotiable |
| Rental Rate | Upon Request |
| Space Use | Retail |
| Condition | Shell Space |
| Available | Now |
New Development. ADA compliant with ramp. Situated at the base of 184-unit residential building.
- Located in-line with other retail
- Space In Need of Renovation
- Finished Ceilings: 14’
- 65' of frontage
Property Facts
| Total Space Available | 4,777 SF | Apartment Style | Mid-Rise |
| No. Units | 182 | Building Size | 164,386 SF |
| Property Type | Multifamily | Year Built | 2023 |
| Property Subtype | Apartment |
| Total Space Available | 4,777 SF |
| No. Units | 182 |
| Property Type | Multifamily |
| Property Subtype | Apartment |
| Apartment Style | Mid-Rise |
| Building Size | 164,386 SF |
| Year Built | 2023 |
About the Property
• New Development • ADA compliant with ramp • Situated at the base of 184 unit residential building • Dense commercial/residential area
Walk Score®
Walker's Paradise (94)
Transit Score®
Rider's Paradise (100)
Nearby Major Retailers
1 of 8
Videos
Matterport 3D Exterior
Matterport 3D Tour
Photos
Street View
Street
Map
Presented by
Twin Parks Terrace | 373 E 183rd St
Already a member? Log In
Hmm, there seems to have been an error sending your message. Please try again.
Thanks! Your message was sent.
Your message has been sent!
Activate your LoopNet account now to track properties, get real-time alerts, save time on future inquiries, and more.






