Your email has been sent.
Highlights
- Site plan approval with the bulk of site work completed
- Potential for 50’ clear height
- Flexibility to customize space
- Can be subdivided to 40,000± SF
- Loading docks and dive-in doors
Features
All Available Space(1)
Display Rental Rate as
- Space
- Size
- Term
- Rental Rate
- Space Use
- Build-Out
- Available
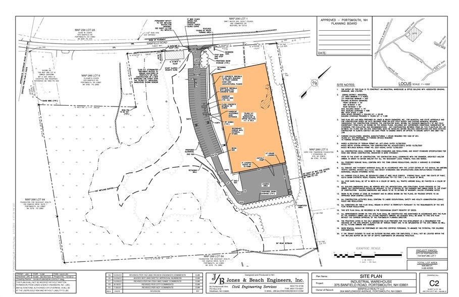
Located at 375 Banfield Road in Portsmouth, New Hampshire, this property offers a state-of-the-art solution for businesses seeking a customizable warehouse and distribution space. With conceptual plans for up to 75,000 square feet, the facility is designed to accommodate both operational efficiency and employee comfort. The layout includes a high-bay warehouse with 28-foot clear heights, ensuring ample vertical storage capacity for a variety of industrial and distribution needs. The property features four loading docks equipped with seals and levelers, as well as a convenient drive-in door for flexible access. Life safety systems are integrated throughout, and base lighting ensures a well-illuminated working environment. Additional specifications include municipal water, natural gas, Modine heat in the warehouse, and basic three-phase power, supporting a wide range of industrial operations. Beyond the warehouse, the site offers abundant on-site parking with more than 75 spaces, making it ideal for both employees and trailer storage. Zoned for industrial use, the location provides excellent connectivity—less than three miles from Route 1 and under four miles from I-95—facilitating smooth regional and interstate distribution. The property also includes plans for 5% air-conditioned office space, creating a balanced environment for administrative and operational functions.
- Lease rate does not include utilities, property expenses or building services
- 4 Loading Docks
- Secure Storage
- 75± parking spaces
- Ample parking for trailers and cars
- 1 Drive Bay
- Central Air and Heating
- 28’+ clear high-bay warehouse
- Modine heat in warehouse
- Less than 3 miles from Route 1
| Space | Size | Term | Rental Rate | Space Use | Build-Out | Available |
| 1st Floor | 40,000-75,000 SF | Negotiable | $20.55 CAD/SF/YR $1.71 CAD/SF/MO $1,540,924 CAD/YR $128,410 CAD/MO | Industrial | Full Build-Out | 2026-10-01 |
1st Floor
| Size |
| 40,000-75,000 SF |
| Term |
| Negotiable |
| Rental Rate |
| $20.55 CAD/SF/YR $1.71 CAD/SF/MO $1,540,924 CAD/YR $128,410 CAD/MO |
| Space Use |
| Industrial |
| Build-Out |
| Full Build-Out |
| Available |
| 2026-10-01 |
1st Floor
| Size | 40,000-75,000 SF |
| Term | Negotiable |
| Rental Rate | $20.55 CAD/SF/YR |
| Space Use | Industrial |
| Build-Out | Full Build-Out |
| Available | 2026-10-01 |
Located at 375 Banfield Road in Portsmouth, New Hampshire, this property offers a state-of-the-art solution for businesses seeking a customizable warehouse and distribution space. With conceptual plans for up to 75,000 square feet, the facility is designed to accommodate both operational efficiency and employee comfort. The layout includes a high-bay warehouse with 28-foot clear heights, ensuring ample vertical storage capacity for a variety of industrial and distribution needs. The property features four loading docks equipped with seals and levelers, as well as a convenient drive-in door for flexible access. Life safety systems are integrated throughout, and base lighting ensures a well-illuminated working environment. Additional specifications include municipal water, natural gas, Modine heat in the warehouse, and basic three-phase power, supporting a wide range of industrial operations. Beyond the warehouse, the site offers abundant on-site parking with more than 75 spaces, making it ideal for both employees and trailer storage. Zoned for industrial use, the location provides excellent connectivity—less than three miles from Route 1 and under four miles from I-95—facilitating smooth regional and interstate distribution. The property also includes plans for 5% air-conditioned office space, creating a balanced environment for administrative and operational functions.
- Lease rate does not include utilities, property expenses or building services
- 1 Drive Bay
- 4 Loading Docks
- Central Air and Heating
- Secure Storage
- 28’+ clear high-bay warehouse
- 75± parking spaces
- Modine heat in warehouse
- Ample parking for trailers and cars
- Less than 3 miles from Route 1
Property Overview
375 Banfield Road offers the opportunity to lease a state-of-the art, build-to-suit, high-bay warehouse/distribution space. With conceptuals in place for up to 75,000± SF of high-bay warehouse space, this facility can accommodate 5% office space, and an expansive warehouse. The plans also include loading docks equipped with seals and levelers and a drive-in door, plus base lighting throughout the warehouse. The facility also offers the potential for abundant on-site parking, and a convenient location to meet the needs of both employees and customers. Construction pricing subject to change based on market conditions/availability.
Warehouse Facility Facts
Presented by
375 Banfield Rd
Hmm, there seems to have been an error sending your message. Please try again.
Thanks! Your message was sent.



