Your email has been sent.
Park Highlights
- Common area Wi-Fi available
- Walking distance to many retail amenities
- Recently updated common areas
- Park-like setting with courtyard
- On-site fitness center, complete with showers and lockers
Park Facts
| Total Space Available | 47,161 SF | Max. Contiguous | 20,802 SF |
| Min. Divisible | 843 SF | Park Type | Office Park |
| Total Space Available | 47,161 SF |
| Min. Divisible | 843 SF |
| Max. Contiguous | 20,802 SF |
| Park Type | Office Park |
All Available Spaces(15)
Display Rental Rate as
- Space
- Size
- Term
- Rental Rate
- Space Use
- Build-Out
- Available
Available.
- Open Floor Plan Layout
- Wheelchair Accessible
Reception, 4 private offices and open area.
- Partially Built-Out as Professional Services Office
- Fits 6 - 18 People
- Wheelchair Accessible
- Mostly Open Floor Plan Layout
- 4 Private Offices
Available
- Partially Built-Out as Standard Medical Space
- Fits 5 - 16 People
Warm shell condition *Suites 204 and 210 are contiguous for up to 6,369
- Lease rate does not include utilities, property expenses or building services
- Fits 8 - 24 People
- 1 Conference Room
- Wheelchair Accessible
- Partially Built-Out as Professional Services Office
- 12 Private Offices
- Can be combined with additional space(s) for up to 6,369 SF of adjacent space
- Partially Built-Out as Standard Office
- Fits 5 - 14 People
- Office intensive layout
- Wheelchair Accessible
Reception, 8 private offices, conference, break room, storage and work/production room. *Suites 204 and 210 are contiguous for up to 6,369.
- Fits 10 - 32 People
- 1 Conference Room
- Wheelchair Accessible
- 8 Private Offices
- Can be combined with additional space(s) for up to 6,369 SF of adjacent space
- Lease rate does not include utilities, property expenses or building services
- Can be combined with additional space(s) for up to 20,802 SF of adjacent space
- Mostly Open Floor Plan Layout
- Wheelchair Accessible
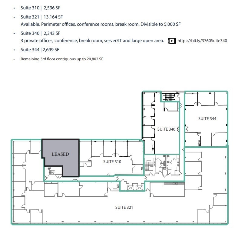
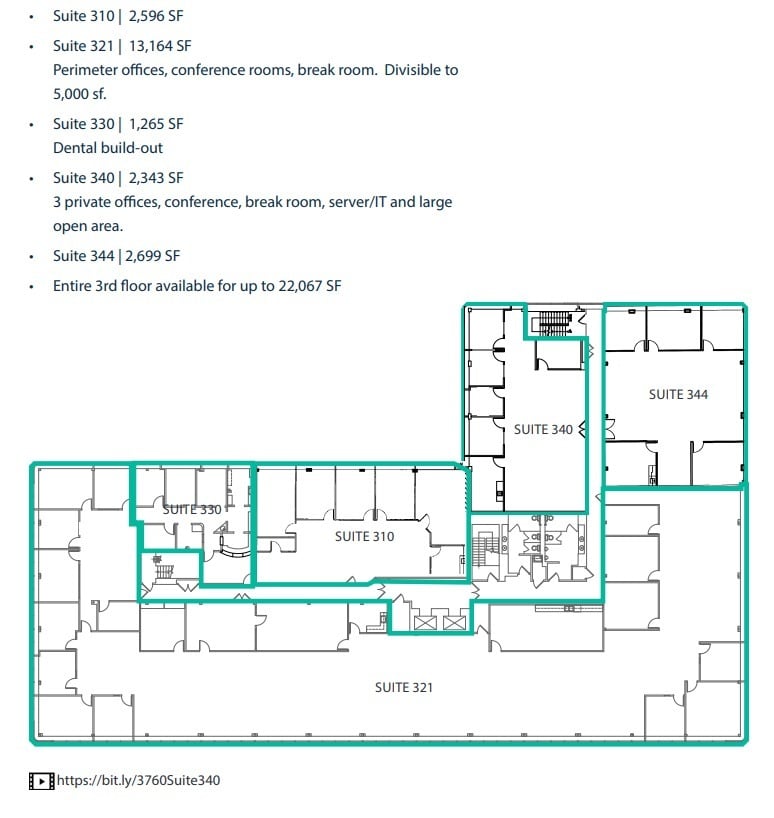
Entire 3rd floor available for up to 22,067 SF. Perimeter offices, conference rooms, break room. Divisible to 5,000 SF
- Lease rate does not include utilities, property expenses or building services
- Fits 13 - 106 People
- Wheelchair Accessible
- Open Floor Plan Layout
- Can be combined with additional space(s) for up to 20,802 SF of adjacent space
3 private offices, conference, break room, server/IT and large open area.
- Lease rate does not include utilities, property expenses or building services
- Mostly Open Floor Plan Layout
- 3 Private Offices
- Can be combined with additional space(s) for up to 20,802 SF of adjacent space
- Partially Built-Out as Standard Office
- Fits 6 - 19 People
- 1 Conference Room
- Wheelchair Accessible
Entire 3rd floor available for up to 22,067 SF
- Fits 7 - 22 People
- Can be combined with additional space(s) for up to 20,802 SF of adjacent space
| Space | Size | Term | Rental Rate | Space Use | Build-Out | Available |
| 1st Floor, Ste 100 | 3,827 SF | Negotiable | Upon Request Upon Request Upon Request Upon Request | Office/Medical | Shell Space | Now |
| 1st Floor, Ste 101 | 2,220 SF | Negotiable | Upon Request Upon Request Upon Request Upon Request | Office/Medical | Partial Build-Out | Now |
| 1st Floor, Ste 112 | 1,943 SF | Negotiable | Upon Request Upon Request Upon Request Upon Request | Office/Medical | Partial Build-Out | Now |
| 2nd Floor, Ste 204 | 2,378 SF | Negotiable | Upon Request Upon Request Upon Request Upon Request | Office/Medical | Partial Build-Out | Now |
| 2nd Floor, Ste 205 | 1,657 SF | Negotiable | Upon Request Upon Request Upon Request Upon Request | Office/Medical | Partial Build-Out | Now |
| 2nd Floor, Ste 210 | 3,991 SF | Negotiable | Upon Request Upon Request Upon Request Upon Request | Office/Medical | Partial Build-Out | Now |
| 3rd Floor, Ste 310 | 2,596 SF | Negotiable | Upon Request Upon Request Upon Request Upon Request | Office/Medical | Shell Space | Now |
| 3rd Floor, Ste 321 | 5,000-13,164 SF | Negotiable | Upon Request Upon Request Upon Request Upon Request | Office/Medical | Partial Build-Out | Now |
| 3rd Floor, Ste 340 | 2,343 SF | Negotiable | Upon Request Upon Request Upon Request Upon Request | Office/Medical | Partial Build-Out | Now |
| 3rd Floor, Ste 344 | 2,699 SF | Negotiable | Upon Request Upon Request Upon Request Upon Request | Office/Medical | Partial Build-Out | Now |
3760 Convoy St - 1st Floor - Ste 100
3760 Convoy St - 1st Floor - Ste 101
3760 Convoy St - 1st Floor - Ste 112
3760 Convoy St - 2nd Floor - Ste 204
3760 Convoy St - 2nd Floor - Ste 205
3760 Convoy St - 2nd Floor - Ste 210
3760 Convoy St - 3rd Floor - Ste 310
3760 Convoy St - 3rd Floor - Ste 321
3760 Convoy St - 3rd Floor - Ste 340
3760 Convoy St - 3rd Floor - Ste 344
- Space
- Size
- Term
- Rental Rate
- Space Use
- Build-Out
- Available
Shell condition
- Lease rate does not include utilities, property expenses or building services
- Wheelchair Accessible
- Open Floor Plan Layout
NEW MEDICAL SPEC SUITE. 2 private offices and open area.
- Lease rate does not include utilities, property expenses or building services
- 2 Private Offices
- Fits 3 - 7 People
Available
- Open Floor Plan Layout
- Wheelchair Accessible
Available. 4 private offices, large conference room, reception, breakroom and large open area
- Lease rate does not include utilities, property expenses or building services
- Fits 9 - 26 People
- 1 Conference Room
- Fully Built-Out as Professional Services Office
- 4 Private Offices
- Wheelchair Accessible
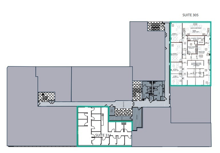
Medical buildout. 8 exam rooms, 4 offices, reception and large open area. Medical Spec suite underway.
- Fits 7 - 20 People
- Reception Area
- 4 Private Offices
| Space | Size | Term | Rental Rate | Space Use | Build-Out | Available |
| 1st Floor, Ste 115 | 2,901 SF | Negotiable | Upon Request Upon Request Upon Request Upon Request | Office/Medical | Shell Space | Now |
| 1st Floor, Ste 145 | 843 SF | Negotiable | Upon Request Upon Request Upon Request Upon Request | Office/Medical | Partial Build-Out | Now |
| 2nd Floor, Ste 203 | 920 SF | Negotiable | Upon Request Upon Request Upon Request Upon Request | Office/Medical | Shell Space | Now |
| 3rd Floor, Ste 305 | 3,227 SF | Negotiable | Upon Request Upon Request Upon Request Upon Request | Office/Medical | Full Build-Out | Now |
| 3rd Floor, Ste 311 | 2,452 SF | Negotiable | Upon Request Upon Request Upon Request Upon Request | Office/Medical | Spec Suite | Now |
3750 Convoy St - 1st Floor - Ste 115
3750 Convoy St - 1st Floor - Ste 145
3750 Convoy St - 2nd Floor - Ste 203
3750 Convoy St - 3rd Floor - Ste 305
3750 Convoy St - 3rd Floor - Ste 311
3760 Convoy St - 1st Floor - Ste 100
| Size | 3,827 SF |
| Term | Negotiable |
| Rental Rate | Upon Request |
| Space Use | Office/Medical |
| Build-Out | Shell Space |
| Available | Now |
Available.
- Open Floor Plan Layout
- Wheelchair Accessible
3760 Convoy St - 1st Floor - Ste 101
| Size | 2,220 SF |
| Term | Negotiable |
| Rental Rate | Upon Request |
| Space Use | Office/Medical |
| Build-Out | Partial Build-Out |
| Available | Now |
Reception, 4 private offices and open area.
- Partially Built-Out as Professional Services Office
- Mostly Open Floor Plan Layout
- Fits 6 - 18 People
- 4 Private Offices
- Wheelchair Accessible
3760 Convoy St - 1st Floor - Ste 112
| Size | 1,943 SF |
| Term | Negotiable |
| Rental Rate | Upon Request |
| Space Use | Office/Medical |
| Build-Out | Partial Build-Out |
| Available | Now |
Available
- Partially Built-Out as Standard Medical Space
- Fits 5 - 16 People
3760 Convoy St - 2nd Floor - Ste 204
| Size | 2,378 SF |
| Term | Negotiable |
| Rental Rate | Upon Request |
| Space Use | Office/Medical |
| Build-Out | Partial Build-Out |
| Available | Now |
Warm shell condition *Suites 204 and 210 are contiguous for up to 6,369
- Lease rate does not include utilities, property expenses or building services
- Partially Built-Out as Professional Services Office
- Fits 8 - 24 People
- 12 Private Offices
- 1 Conference Room
- Can be combined with additional space(s) for up to 6,369 SF of adjacent space
- Wheelchair Accessible
3760 Convoy St - 2nd Floor - Ste 205
| Size | 1,657 SF |
| Term | Negotiable |
| Rental Rate | Upon Request |
| Space Use | Office/Medical |
| Build-Out | Partial Build-Out |
| Available | Now |
- Partially Built-Out as Standard Office
- Office intensive layout
- Fits 5 - 14 People
- Wheelchair Accessible
3760 Convoy St - 2nd Floor - Ste 210
| Size | 3,991 SF |
| Term | Negotiable |
| Rental Rate | Upon Request |
| Space Use | Office/Medical |
| Build-Out | Partial Build-Out |
| Available | Now |
Reception, 8 private offices, conference, break room, storage and work/production room. *Suites 204 and 210 are contiguous for up to 6,369.
- Fits 10 - 32 People
- 8 Private Offices
- 1 Conference Room
- Can be combined with additional space(s) for up to 6,369 SF of adjacent space
- Wheelchair Accessible
3760 Convoy St - 3rd Floor - Ste 310
| Size | 2,596 SF |
| Term | Negotiable |
| Rental Rate | Upon Request |
| Space Use | Office/Medical |
| Build-Out | Shell Space |
| Available | Now |
- Lease rate does not include utilities, property expenses or building services
- Mostly Open Floor Plan Layout
- Can be combined with additional space(s) for up to 20,802 SF of adjacent space
- Wheelchair Accessible
3760 Convoy St - 3rd Floor - Ste 321
| Size | 5,000-13,164 SF |
| Term | Negotiable |
| Rental Rate | Upon Request |
| Space Use | Office/Medical |
| Build-Out | Partial Build-Out |
| Available | Now |
Entire 3rd floor available for up to 22,067 SF. Perimeter offices, conference rooms, break room. Divisible to 5,000 SF
- Lease rate does not include utilities, property expenses or building services
- Open Floor Plan Layout
- Fits 13 - 106 People
- Can be combined with additional space(s) for up to 20,802 SF of adjacent space
- Wheelchair Accessible
3760 Convoy St - 3rd Floor - Ste 340
| Size | 2,343 SF |
| Term | Negotiable |
| Rental Rate | Upon Request |
| Space Use | Office/Medical |
| Build-Out | Partial Build-Out |
| Available | Now |
3 private offices, conference, break room, server/IT and large open area.
- Lease rate does not include utilities, property expenses or building services
- Partially Built-Out as Standard Office
- Mostly Open Floor Plan Layout
- Fits 6 - 19 People
- 3 Private Offices
- 1 Conference Room
- Can be combined with additional space(s) for up to 20,802 SF of adjacent space
- Wheelchair Accessible
3760 Convoy St - 3rd Floor - Ste 344
| Size | 2,699 SF |
| Term | Negotiable |
| Rental Rate | Upon Request |
| Space Use | Office/Medical |
| Build-Out | Partial Build-Out |
| Available | Now |
Entire 3rd floor available for up to 22,067 SF
- Fits 7 - 22 People
- Can be combined with additional space(s) for up to 20,802 SF of adjacent space
3750 Convoy St - 1st Floor - Ste 115
| Size | 2,901 SF |
| Term | Negotiable |
| Rental Rate | Upon Request |
| Space Use | Office/Medical |
| Build-Out | Shell Space |
| Available | Now |
Shell condition
- Lease rate does not include utilities, property expenses or building services
- Open Floor Plan Layout
- Wheelchair Accessible
3750 Convoy St - 1st Floor - Ste 145
| Size | 843 SF |
| Term | Negotiable |
| Rental Rate | Upon Request |
| Space Use | Office/Medical |
| Build-Out | Partial Build-Out |
| Available | Now |
NEW MEDICAL SPEC SUITE. 2 private offices and open area.
- Lease rate does not include utilities, property expenses or building services
- Fits 3 - 7 People
- 2 Private Offices
3750 Convoy St - 2nd Floor - Ste 203
| Size | 920 SF |
| Term | Negotiable |
| Rental Rate | Upon Request |
| Space Use | Office/Medical |
| Build-Out | Shell Space |
| Available | Now |
Available
- Open Floor Plan Layout
- Wheelchair Accessible
3750 Convoy St - 3rd Floor - Ste 305
| Size | 3,227 SF |
| Term | Negotiable |
| Rental Rate | Upon Request |
| Space Use | Office/Medical |
| Build-Out | Full Build-Out |
| Available | Now |
Available. 4 private offices, large conference room, reception, breakroom and large open area
- Lease rate does not include utilities, property expenses or building services
- Fully Built-Out as Professional Services Office
- Fits 9 - 26 People
- 4 Private Offices
- 1 Conference Room
- Wheelchair Accessible
3750 Convoy St - 3rd Floor - Ste 311
| Size | 2,452 SF |
| Term | Negotiable |
| Rental Rate | Upon Request |
| Space Use | Office/Medical |
| Build-Out | Spec Suite |
| Available | Now |
Medical buildout. 8 exam rooms, 4 offices, reception and large open area. Medical Spec suite underway.
- Fits 7 - 20 People
- 4 Private Offices
- Reception Area
Park Overview
Convenient Kearny Mesa location. Excellent freeway access via I-805, Hwy. 163, Hwy. 52 and I-15.
Presented by
Kearny Mesa Crossroads | San Diego, CA 92111
Hmm, there seems to have been an error sending your message. Please try again.
Thanks! Your message was sent.


















