Log In/Sign Up
Your email has been sent.
Highlights
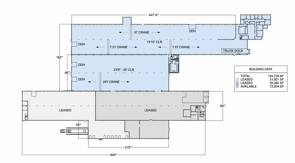
- Available space has 4 overhead cranes. one 20 ton, two 7.5 ton and one 5 ton.
- 480 3ph. power
Features
Clear Height
25’
Drive In Bays
5
Interior Dock Doors
1
Standard Parking Spaces
175
All Available Space(1)
Display Rental Rate as
- Space
- Size
- Term
- Rental Rate
- Space Use
- Condition
- Available
- Lease rate does not include utilities, property expenses or building services
| Space | Size | Term | Rental Rate | Space Use | Condition | Available |
| 1st Floor | 72,934 SF | Negotiable | $5.36 CAD/SF/YR $0.45 CAD/SF/MO $390,937 CAD/YR $32,578 CAD/MO | Industrial | Full Build-Out | Now |
1st Floor
| Size |
| 72,934 SF |
| Term |
| Negotiable |
| Rental Rate |
| $5.36 CAD/SF/YR $0.45 CAD/SF/MO $390,937 CAD/YR $32,578 CAD/MO |
| Space Use |
| Industrial |
| Condition |
| Full Build-Out |
| Available |
| Now |
1st Floor
| Size | 72,934 SF |
| Term | Negotiable |
| Rental Rate | $5.36 CAD/SF/YR |
| Space Use | Industrial |
| Condition | Full Build-Out |
| Available | Now |
- Lease rate does not include utilities, property expenses or building services
Property Overview
Multi tenant industrial building with heavy power, overhead cranes, yard space, loading docks, drive-in doors and finished office.
Warehouse Facility Facts
Building Size
121,503 SF
Lot Size
4.33 AC
Year Built/Renovated
1936/2015
Construction
Masonry
Sprinkler System
Wet
Power Supply
Volts: 480 Phase: 3
Zoning
I-2 - Heavy Industrial
Select Tenants
- Floor
- Tenant Name
- Industry
- 1st
- Alloys Unlimited & Processing
- Wholesaler
1 of 17
Videos
Matterport 3D Exterior
Matterport 3D Tour
Photos
Street View
Street
Map
Presented by
3760 Oakwood Ave
Already a member? Log In
Hmm, there seems to have been an error sending your message. Please try again.
Thanks! Your message was sent.




