Log In/Sign Up
Your email has been sent.
37620 Filbert St 42,677 SF Industrial Building Newark, CA 94560 $13,736,951 CAD ($321.88 CAD/SF)



Investment Highlights
- Highway Access: Highway 84
- Yard
- Sprinklers
Executive Summary
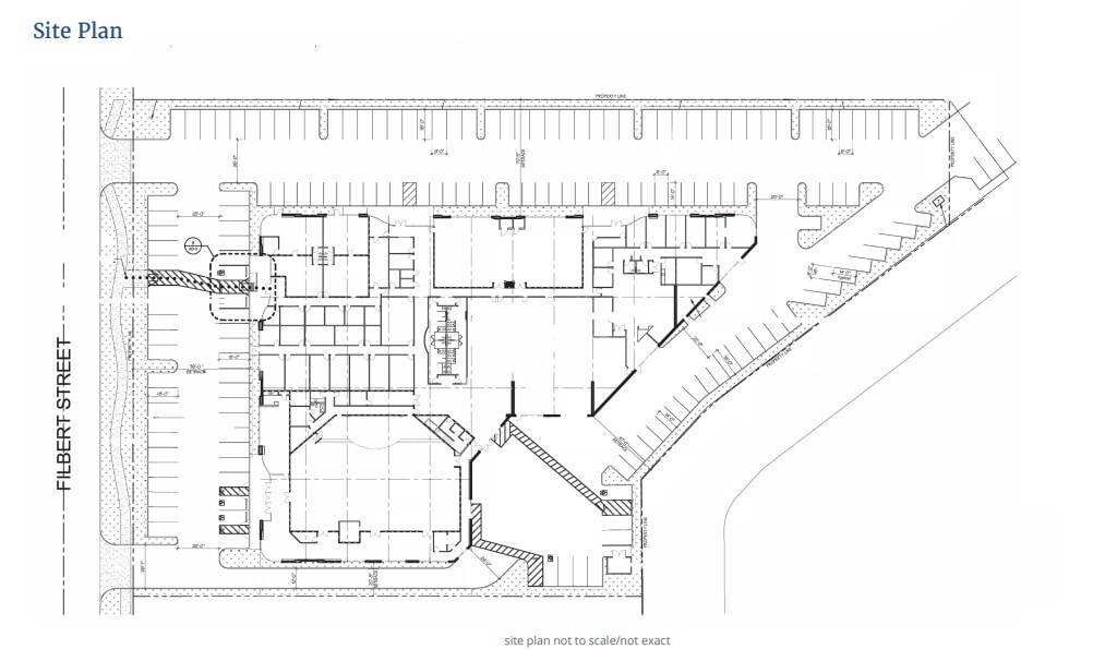
Industrial/manufacturing building available for sale or lease, featuring a heavy office build-out and four grade-level doors currently glassed over. The building offers a ±20–22-foot minimum clear height, is fully sprinklered, and equipped with 2,000 amps, 480-volt power (to be verified by tenant or buyer). A rear yard provides additional utility, and the site offers immediate access to Highway 84 via Thornton Avenue. Centrally located in the Bay Area, the property is 4 miles from Fremont, 16 miles from San Jose International Airport (SJC), 19 miles from Oakland International Airport (OAK), 20 miles from Silicon Valley, 26 miles from San Francisco International Airport (SFO), and 37 miles from San Francisco.
Property Facts
| Price | $13,736,951 CAD | Rentable Building Area | 42,677 SF |
| Price Per SF | $321.88 CAD | No. Stories | 1 |
| Sale Type | Investment or Owner User | Year Built | 2001 |
| Property Type | Industrial | Tenancy | Single |
| Property Subtype | Warehouse | Parking Ratio | 3/1,000 SF |
| Building Class | B | Clear Ceiling Height | 22’ |
| Lot Size | 2.18 AC | No. Drive In / Grade-Level Doors | 4 |
| Zoning | I, Newark - Industrial | ||
| Price | $13,736,951 CAD |
| Price Per SF | $321.88 CAD |
| Sale Type | Investment or Owner User |
| Property Type | Industrial |
| Property Subtype | Warehouse |
| Building Class | B |
| Lot Size | 2.18 AC |
| Rentable Building Area | 42,677 SF |
| No. Stories | 1 |
| Year Built | 2001 |
| Tenancy | Single |
| Parking Ratio | 3/1,000 SF |
| Clear Ceiling Height | 22’ |
| No. Drive In / Grade-Level Doors | 4 |
| Zoning | I, Newark - Industrial |
Space Availability
- Space
- Size
- Space Use
- Build-Out
- Available
$0.99 NNN 1st Year Rent + $20 TI.
| Space | Size | Space Use | Build-Out | Available |
| 1st Floor | 42,677 SF | Industrial | Full Build-Out | Now |
1st Floor
| Size |
| 42,677 SF |
| Space Use |
| Industrial |
| Build-Out |
| Full Build-Out |
| Available |
| Now |
1 of 1
Videos
Matterport 3D Exterior
Matterport 3D Tour
Photos
Street View
Street
Map
1st Floor
| Size | 42,677 SF |
| Space Use | Industrial |
| Build-Out | Full Build-Out |
| Available | Now |
$0.99 NNN 1st Year Rent + $20 TI.
Fairly walkable
40/100
Exceptionally drivable
90/100
Limited public transit
30/100
Moderately bikeable
60/100
Property Taxes
| Parcel Number | 092-0155-017-00 | Improvements Assessment | $3,742,856 CAD |
| Land Assessment | $6,904,297 CAD | Total Assessment | $10,647,153 CAD |
Property Taxes
Parcel Number
092-0155-017-00
Land Assessment
$6,904,297 CAD
Improvements Assessment
$3,742,856 CAD
Total Assessment
$10,647,153 CAD
1 of 11
Videos
Matterport 3D Exterior
Matterport 3D Tour
Photos
Street View
Street
Map
Presented by
37620 Filbert St
Already a member? Log In
Hmm, there seems to have been an error sending your message. Please try again.
Thanks! Your message was sent.



