Log In/Sign Up
Your email has been sent.
3767 S Secord St 7,400 SF Industrial Building South Salt Lake, UT 84115 $2,328,558 CAD ($314.67 CAD/SF)



Investment Highlights
- Easly Split into two sepearate spaces, separately metered
- Flexible space uses
- Single-Phase Power
Executive Summary
Owner/User Flex Property – Retail/Office & Warehouse
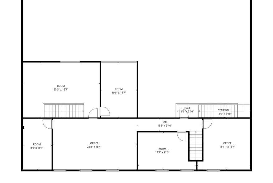
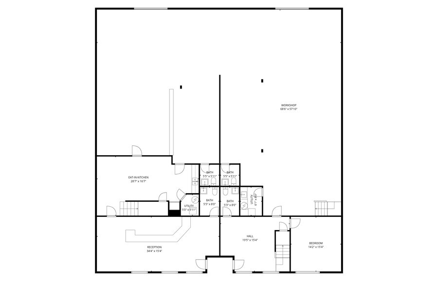
Excellent opportunity to acquire a versatile 6,236 SF flex property ideal for an owner/user or investor. The building features a functional retail/office component combined with warehouse space and can be easily divided into two separate units, each separately metered, offering flexibility for partial leasing or future resale.
The property is situated on ±0.25 acres and is equipped with single-phase power and two ground-level roll-up doors (12’ x 10’), allowing for efficient loading and operations. Well-suited for a variety of commercial uses including retail, office, light industrial, showroom, or service-oriented businesses. CC Zoning.
Excellent opportunity to acquire a versatile 6,236 SF flex property ideal for an owner/user or investor. The building features a functional retail/office component combined with warehouse space and can be easily divided into two separate units, each separately metered, offering flexibility for partial leasing or future resale.
The property is situated on ±0.25 acres and is equipped with single-phase power and two ground-level roll-up doors (12’ x 10’), allowing for efficient loading and operations. Well-suited for a variety of commercial uses including retail, office, light industrial, showroom, or service-oriented businesses. CC Zoning.
Property Facts
Space Availability
- Space
- Size
- Space Use
- Build-Out
- Available
6,236 SF Retail/Office and Warehouse 3,400 SF Office (2-Story) / 4,000 SF Warehouse
6,236 SF Retail/Office and Warehouse 3,400 SF Office (2-Story) / 4,000 SF Warehouse
| Space | Size | Space Use | Build-Out | Available |
| 1st Floor | 3,700 SF | Industrial | - | Now |
| 1st Floor | 3,700 SF | Industrial | - | Now |
1st Floor
| Size |
| 3,700 SF |
| Space Use |
| Industrial |
| Build-Out |
| - |
| Available |
| Now |
1st Floor
| Size |
| 3,700 SF |
| Space Use |
| Industrial |
| Build-Out |
| - |
| Available |
| Now |
1 of 37
Videos
Matterport 3D Exterior
Matterport 3D Tour
Photos
Street View
Street
Map
1st Floor
| Size | 3,700 SF |
| Space Use | Industrial |
| Build-Out | - |
| Available | Now |
6,236 SF Retail/Office and Warehouse 3,400 SF Office (2-Story) / 4,000 SF Warehouse
1st Floor
| Size | 3,700 SF |
| Space Use | Industrial |
| Build-Out | - |
| Available | Now |
6,236 SF Retail/Office and Warehouse 3,400 SF Office (2-Story) / 4,000 SF Warehouse
1 1
Moderately walkable
60/100
Very drivable
80/100
Some public transit
50/100
Fairly bikeable
50/100
Property Taxes
| Parcel Number | 16-31-326-002-0000 | Improvements Assessment | $1,247,251 CAD |
| Land Assessment | $194,464 CAD | Total Assessment | $1,441,715 CAD |
Property Taxes
Parcel Number
16-31-326-002-0000
Land Assessment
$194,464 CAD
Improvements Assessment
$1,247,251 CAD
Total Assessment
$1,441,715 CAD
1 of 39
Videos
Matterport 3D Exterior
Matterport 3D Tour
Photos
Street View
Street
Map
1 of 1
Presented by
3767 S Secord St
Already a member? Log In
Hmm, there seems to have been an error sending your message. Please try again.
Thanks! Your message was sent.



