Your email has been sent.
Revere Industrial Center Denver, CO 80239 6,875 - 50,307 SF of Industrial Space Available



Park Highlights
- Located I-70&Peoria, Prime NE Denver Industrial Hub With direct access to I-70, I-225 Convenient to DIA
- Dock & Drive In
- LED Lighting
- Local Ownership & Management
- Well established Industrial Park
- Ample Parking
Park Facts
Features and Amenities
- 24 Hour Access
- Freeway Visibility
- Tenant Controlled HVAC
- Air Conditioning
All Available Spaces(4)
Display Rental Rate as
- Space
- Size
- Term
- Rental Rate
- Space Use
- Build-Out
- Available
Large reception area and warehouse Brand new paint and planking flooring in the office area 2 private restrooms, Brand new paint and planking flooring
- Lease rate does not include utilities, property expenses or building services
- Space is in Excellent Condition
- Central Air Conditioning
- Private Restrooms
- Easy Access to I-70 and I-225
- Brand new vinyl planking, paint, restroom fixtures
- Includes 571 SF of dedicated office space
- 2 Loading Docks
- Reception Area
- Drop Ceilings
- Close proximity to DIA
Reception area, 2 private offices, conference room, coffee bar and New LED lighting in warehouse Dock & Drive In Loading 18' Clear HVAC maintenance included in NNN
- Lease rate does not include utilities, property expenses or building services
- 1 Drive Bay
- Central Air Conditioning
- Reception Area
- New LED lighting in warehouse
- 2 private restrooms in office area and warehouse
- Includes 1,442 SF of dedicated office space
- 2 Loading Docks
- Partitioned Offices
- Private Restrooms
- Large Reception Area
- Ample parking
| Space | Size | Term | Rental Rate | Space Use | Build-Out | Available |
| 1st Floor - A | 8,610 SF | 3 Years | $12.99 CAD/SF/YR $1.08 CAD/SF/MO $111,871 CAD/YR $9,323 CAD/MO | Industrial | Full Build-Out | Now |
| 1st Floor - C & D | 14,022 SF | 3 Years | $12.65 CAD/SF/YR $1.05 CAD/SF/MO $177,395 CAD/YR $14,783 CAD/MO | Industrial | Full Build-Out | Now |
3820 Revere St - 1st Floor - A
3820 Revere St - 1st Floor - C & D
- Space
- Size
- Term
- Rental Rate
- Space Use
- Build-Out
- Available
Reception area, 6 private offices, kitchen area and warehouse. New LED lighting, Drains and Additional power in warehouse HVAC maintenance included in NNN This space is divisible to 10,400 ft.
- Lease rate does not include utilities, property expenses or building services
- 1 Drive Bay
- Central Air and Heating
- Reception Area
- Free Standing Building, ample parking, LED Lights
- Can be demised 10,410ft
- HVAC Maintenance included in NNN
- Includes 2,349 SF of dedicated office space
- 4 Loading Docks
- Partitioned Offices
- Private Restrooms
- 18'
- Dock & Drive In Loading
| Space | Size | Term | Rental Rate | Space Use | Build-Out | Available |
| 1st Floor - A & B | 20,800 SF | 3 Years | $11.97 CAD/SF/YR $1.00 CAD/SF/MO $248,921 CAD/YR $20,743 CAD/MO | Industrial | Full Build-Out | Now |
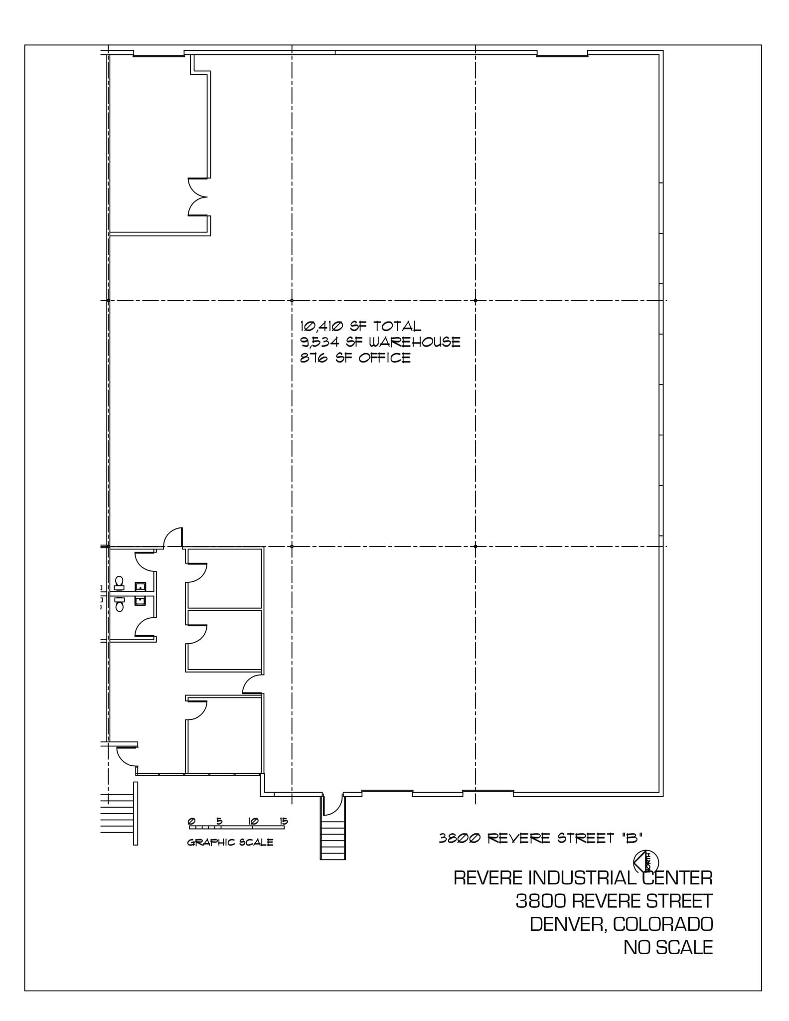
3800 Revere St - 1st Floor - A & B
- Space
- Size
- Term
- Rental Rate
- Space Use
- Build-Out
- Available
Reception area, two private office, kitchen area and warehouse. Dock Loading Only Drop Ceiling in Warehouse New LED Lighting HVAC Maintenance included in NNN
- Lease rate does not include utilities, property expenses or building services
- 1 Drive Bay
- Includes 1,064 SF of dedicated office space
- 2 Loading Docks
| Space | Size | Term | Rental Rate | Space Use | Build-Out | Available |
| 1st Floor - C | 6,875 SF | 3 Years | $12.99 CAD/SF/YR $1.08 CAD/SF/MO $89,328 CAD/YR $7,444 CAD/MO | Industrial | - | 30 Days |
3860 Revere St - 1st Floor - C
3820 Revere St - 1st Floor - A
| Size | 8,610 SF |
| Term | 3 Years |
| Rental Rate | $12.99 CAD/SF/YR |
| Space Use | Industrial |
| Build-Out | Full Build-Out |
| Available | Now |
Large reception area and warehouse Brand new paint and planking flooring in the office area 2 private restrooms, Brand new paint and planking flooring
- Lease rate does not include utilities, property expenses or building services
- Includes 571 SF of dedicated office space
- Space is in Excellent Condition
- 2 Loading Docks
- Central Air Conditioning
- Reception Area
- Private Restrooms
- Drop Ceilings
- Easy Access to I-70 and I-225
- Close proximity to DIA
- Brand new vinyl planking, paint, restroom fixtures
3820 Revere St - 1st Floor - C & D
| Size | 14,022 SF |
| Term | 3 Years |
| Rental Rate | $12.65 CAD/SF/YR |
| Space Use | Industrial |
| Build-Out | Full Build-Out |
| Available | Now |
Reception area, 2 private offices, conference room, coffee bar and New LED lighting in warehouse Dock & Drive In Loading 18' Clear HVAC maintenance included in NNN
- Lease rate does not include utilities, property expenses or building services
- Includes 1,442 SF of dedicated office space
- 1 Drive Bay
- 2 Loading Docks
- Central Air Conditioning
- Partitioned Offices
- Reception Area
- Private Restrooms
- New LED lighting in warehouse
- Large Reception Area
- 2 private restrooms in office area and warehouse
- Ample parking
3800 Revere St - 1st Floor - A & B
| Size | 20,800 SF |
| Term | 3 Years |
| Rental Rate | $11.97 CAD/SF/YR |
| Space Use | Industrial |
| Build-Out | Full Build-Out |
| Available | Now |
Reception area, 6 private offices, kitchen area and warehouse. New LED lighting, Drains and Additional power in warehouse HVAC maintenance included in NNN This space is divisible to 10,400 ft.
- Lease rate does not include utilities, property expenses or building services
- Includes 2,349 SF of dedicated office space
- 1 Drive Bay
- 4 Loading Docks
- Central Air and Heating
- Partitioned Offices
- Reception Area
- Private Restrooms
- Free Standing Building, ample parking, LED Lights
- 18'
- Can be demised 10,410ft
- Dock & Drive In Loading
- HVAC Maintenance included in NNN
3860 Revere St - 1st Floor - C
| Size | 6,875 SF |
| Term | 3 Years |
| Rental Rate | $12.99 CAD/SF/YR |
| Space Use | Industrial |
| Build-Out | - |
| Available | 30 Days |
Reception area, two private office, kitchen area and warehouse. Dock Loading Only Drop Ceiling in Warehouse New LED Lighting HVAC Maintenance included in NNN
- Lease rate does not include utilities, property expenses or building services
- Includes 1,064 SF of dedicated office space
- 1 Drive Bay
- 2 Loading Docks
Site Plan
Park Overview
Great Industrial Property located off of I-70 and Peoria. Easy access to I-70 and I-225 & DIA Well Maintained Ample Parking Dock and Drive in Loading 3800 Stand alone building, sprinklered, 18' clear ceiling, additional power, LED Lighting, Demisable 3820 sprinklered, LED Lighting Local Management and Ownership
Presented by
Fall River Investments Inc.
Revere Industrial Center | Denver, CO 80239
Hmm, there seems to have been an error sending your message. Please try again.
Thanks! Your message was sent.









