Your email has been sent.
Highlights
- Office Suites For Lease At Powell Place
- Floor Plans & 3D ToursAvailable
- Abundant Free Parking & Excellent Visibility With Signage On W. 12th Street
- 1,428± SF & 1,550± SF Office Suites Available – Up To 2,978± SF Available
- 14,000 Average Daily Traffic (PennDOT AADT 2024)
- Centrally Located & On the Public Bus Route
All Available Spaces(2)
Display Rental Rate as
- Space
- Size
- Term
- Rental Rate
- Space Use
- Build-Out
- Available
1,428± SF office suite available. New carpet & paint throughout. Layout includes large open workspace with windows for natural light, 4 private offices, storage room, kitchenette & private entrance. Floor plan available. Abundant free parking & excellent visibility. Situated along a high traffic corridor with 14,000 average daily traffic (PennDOT AADT 2024 count year). Easy egress with entrance at a signalized intersection. Centrally located & on the public bus route. Offered at $22.00/SF/YR - full service. Tenant pays $2,618/month with all utilities included. Up to 2,978± SF available.
- Rate includes utilities, building services and property expenses
- Mostly Open Floor Plan Layout
- Space is in Excellent Condition
- 1,428± SF Office Suite For Lease At Powell Place
- New Carpet & Paint Throughout
- Storage Room & Kitchenette - Floor Plan Available
- Fully Built-Out as Standard Office
- 4 Private Offices
- Can be combined with additional space(s) for up to 2,978 SF of adjacent space
- Corner Unit With Widnows - Abundant Natural Light
- 4 Private Offices & Large Open Workspace
- Abundant Free Parking & Excellent Visibility
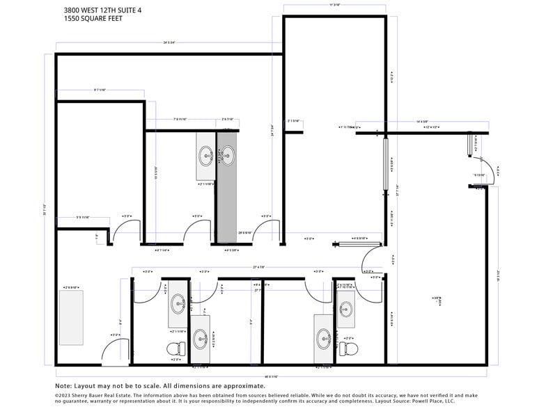
1,550± SF office suite for lease. Layout includes private lobby/waiting area, reception, 4 private offices including back office with window for natural light, open workspace, filing/copier area, coffee bar, and 2 private restrooms. 3D tour & floor plan available. Located at Powell Place with abundant free parking. In proximity to major local thoroughfares, I-79, I-90 & on the bus route. Offered at $2,300/month ($17.81/SF/YR) plus gas, electric, and desired phone/internet. Contact broker for additional information or to schedule a tour.
- Listed rate may not include certain utilities, building services and property expenses
- 4 Private Offices
- 1,550± SF Office Suite For Lease
- Private Waiting Area & Reception
- Offered At $2,300/Month + Gas & Electric
- Fully Built-Out as Professional Services Office
- Can be combined with additional space(s) for up to 2,978 SF of adjacent space
- 3D Tour & Floor Plan Available
- 4 Private Offices, Open Workspace & 2 Restrooms
- Abundant Off Street Parking & Excellent Signage
| Space | Size | Term | Rental Rate | Space Use | Build-Out | Available |
| 1st Floor, Ste 2 | 1,428 SF | Negotiable | $30.01 CAD/SF/YR $2.50 CAD/SF/MO $42,859 CAD/YR $3,572 CAD/MO | Office | Full Build-Out | Now |
| 1st Floor, Ste 4 | 1,550 SF | Negotiable | $24.30 CAD/SF/YR $2.02 CAD/SF/MO $37,661 CAD/YR $3,138 CAD/MO | Office/Medical | Full Build-Out | Now |
1st Floor, Ste 2
| Size |
| 1,428 SF |
| Term |
| Negotiable |
| Rental Rate |
| $30.01 CAD/SF/YR $2.50 CAD/SF/MO $42,859 CAD/YR $3,572 CAD/MO |
| Space Use |
| Office |
| Build-Out |
| Full Build-Out |
| Available |
| Now |
1st Floor, Ste 4
| Size |
| 1,550 SF |
| Term |
| Negotiable |
| Rental Rate |
| $24.30 CAD/SF/YR $2.02 CAD/SF/MO $37,661 CAD/YR $3,138 CAD/MO |
| Space Use |
| Office/Medical |
| Build-Out |
| Full Build-Out |
| Available |
| Now |
1st Floor, Ste 2
| Size | 1,428 SF |
| Term | Negotiable |
| Rental Rate | $30.01 CAD/SF/YR |
| Space Use | Office |
| Build-Out | Full Build-Out |
| Available | Now |
1,428± SF office suite available. New carpet & paint throughout. Layout includes large open workspace with windows for natural light, 4 private offices, storage room, kitchenette & private entrance. Floor plan available. Abundant free parking & excellent visibility. Situated along a high traffic corridor with 14,000 average daily traffic (PennDOT AADT 2024 count year). Easy egress with entrance at a signalized intersection. Centrally located & on the public bus route. Offered at $22.00/SF/YR - full service. Tenant pays $2,618/month with all utilities included. Up to 2,978± SF available.
- Rate includes utilities, building services and property expenses
- Fully Built-Out as Standard Office
- Mostly Open Floor Plan Layout
- 4 Private Offices
- Space is in Excellent Condition
- Can be combined with additional space(s) for up to 2,978 SF of adjacent space
- 1,428± SF Office Suite For Lease At Powell Place
- Corner Unit With Widnows - Abundant Natural Light
- New Carpet & Paint Throughout
- 4 Private Offices & Large Open Workspace
- Storage Room & Kitchenette - Floor Plan Available
- Abundant Free Parking & Excellent Visibility
1st Floor, Ste 4
| Size | 1,550 SF |
| Term | Negotiable |
| Rental Rate | $24.30 CAD/SF/YR |
| Space Use | Office/Medical |
| Build-Out | Full Build-Out |
| Available | Now |
1,550± SF office suite for lease. Layout includes private lobby/waiting area, reception, 4 private offices including back office with window for natural light, open workspace, filing/copier area, coffee bar, and 2 private restrooms. 3D tour & floor plan available. Located at Powell Place with abundant free parking. In proximity to major local thoroughfares, I-79, I-90 & on the bus route. Offered at $2,300/month ($17.81/SF/YR) plus gas, electric, and desired phone/internet. Contact broker for additional information or to schedule a tour.
- Listed rate may not include certain utilities, building services and property expenses
- Fully Built-Out as Professional Services Office
- 4 Private Offices
- Can be combined with additional space(s) for up to 2,978 SF of adjacent space
- 1,550± SF Office Suite For Lease
- 3D Tour & Floor Plan Available
- Private Waiting Area & Reception
- 4 Private Offices, Open Workspace & 2 Restrooms
- Offered At $2,300/Month + Gas & Electric
- Abundant Off Street Parking & Excellent Signage
Property Overview
Now leasing at Powell Place! 1,428± SF to 2,978± SF office suites available. Current offerings include 1,428± SF office suite featuring 4 private offices with windows for natural light, large open workspace, storage room, new carpet & fresh paint offered at $2,618/month ($22.00/SF/YR) - full service and 1,550± SF recently renovated office suite featuring private lobby/waiting area, reception, 4 private offices including back office with window for natural light, open workspace, filing/copier area, and 2 private restrooms - offered at $2,300/month plus gas & electric. 3D tours & floor plans available. Powell Place offers abundant free parking and excellent visibility with signage along W. 12th Street a major east-west corridor with 14,000 average daily traffic (PennDOT AADT 2024 count year). Centrally located, in proximity to I-90 & I-79, and on the public bus route. Zoned MU-2, Corridor Mixed Use. Join Brandon J. Broderick Attorney At Law, Edward Jones, Erie Pharmacy, Forest Counseling, Fortitude Counseling, Thrivent & more at Powell Place! Contact broker for additional information or to schedule a tour.
- 24 Hour Access
- Bus Line
Property Facts
Select Tenants
- Floor
- Tenant Name
- Industry
- 1st
- Brandon Broderick, Esq
- Professional, Scientific, and Technical Services
- 1st
- Edward Jones
- Finance and Insurance
- 1st
- Erie Pharmacy
- Retailer
- 1st
- Forest Counseling
- Health Care and Social Assistance
- 1st
- Fortitude Counseling
- Health Care and Social Assistance
- 1st
- Thrivent Financial
- Finance and Insurance
Presented by
Powell Place | 3800 W 12th St
Hmm, there seems to have been an error sending your message. Please try again.
Thanks! Your message was sent.









