Log In/Sign Up
Your email has been sent.
Brookfield Center 38275 W Twelve Mile Rd 6,145 - 24,105 SF of Office Space Available in Farmington Hills, MI 48331



Highlights
- 2-Story Office Building
- Up to 6,145 SF on 1st Floor
- All Common Areas Fully Rennovated
- Entire Second Floor Available
- Professionally Managed Property
- Signage Opportunities Available
All Available Spaces(2)
Display Rental Rate as
- Space
- Size
- Term
- Rental Rate
- Space Use
- Build-Out
- Available
- Listed rate may not include certain utilities, building services and property expenses
- Mostly Open Floor Plan Layout
- Fully Built-Out as Professional Services Office
- Space is in Excellent Condition
This professionally managed 2-story office building offers up to 6,145 square feet on the 1st floor and up to 17,690 square feet (full floor) on the 2nd floor.
- Listed lease rate plus proportional share of electrical cost
- Mostly Open Floor Plan Layout
- Fully Built-Out as Professional Services Office
- Space is in Excellent Condition
| Space | Size | Term | Rental Rate | Space Use | Build-Out | Available |
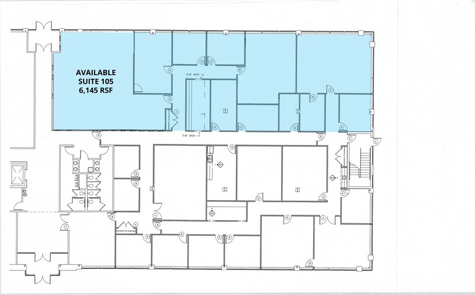
| 1st Floor, Ste 105 | 6,145 SF | Negotiable | $23.12 CAD/SF/YR $1.93 CAD/SF/MO $142,096 CAD/YR $11,841 CAD/MO | Office | Full Build-Out | Now |
| 2nd Floor, Ste 200 | 17,960 SF | Negotiable | $23.12 CAD/SF/YR $1.93 CAD/SF/MO $415,305 CAD/YR $34,609 CAD/MO | Office | Full Build-Out | Now |
1st Floor, Ste 105
| Size |
| 6,145 SF |
| Term |
| Negotiable |
| Rental Rate |
| $23.12 CAD/SF/YR $1.93 CAD/SF/MO $142,096 CAD/YR $11,841 CAD/MO |
| Space Use |
| Office |
| Build-Out |
| Full Build-Out |
| Available |
| Now |
2nd Floor, Ste 200
| Size |
| 17,960 SF |
| Term |
| Negotiable |
| Rental Rate |
| $23.12 CAD/SF/YR $1.93 CAD/SF/MO $415,305 CAD/YR $34,609 CAD/MO |
| Space Use |
| Office |
| Build-Out |
| Full Build-Out |
| Available |
| Now |
1 of 1
Videos
Matterport 3D Exterior
Matterport 3D Tour
Photos
Street View
Street
Map
1st Floor, Ste 105
| Size | 6,145 SF |
| Term | Negotiable |
| Rental Rate | $23.12 CAD/SF/YR |
| Space Use | Office |
| Build-Out | Full Build-Out |
| Available | Now |
- Listed rate may not include certain utilities, building services and property expenses
- Fully Built-Out as Professional Services Office
- Mostly Open Floor Plan Layout
- Space is in Excellent Condition
1 of 1
Videos
Matterport 3D Exterior
Matterport 3D Tour
Photos
Street View
Street
Map
2nd Floor, Ste 200
| Size | 17,960 SF |
| Term | Negotiable |
| Rental Rate | $23.12 CAD/SF/YR |
| Space Use | Office |
| Build-Out | Full Build-Out |
| Available | Now |
This professionally managed 2-story office building offers up to 6,145 square feet on the 1st floor and up to 17,690 square feet (full floor) on the 2nd floor.
- Listed lease rate plus proportional share of electrical cost
- Fully Built-Out as Professional Services Office
- Mostly Open Floor Plan Layout
- Space is in Excellent Condition
Property Overview
This professionally managed building is currently undergoing a complete interior and exterior renovation. Main road signage available.
- Security System
- Signage
Property Facts
Building Type
Office
Year Built
2001
Building Height
2 Stories
Building Size
35,365 SF
Building Class
B
Typical Floor Size
17,683 SF
Parking
145 Surface Parking Spaces
1 1
Fairly walkable
50/100
Exceptionally drivable
100/100
Limited public transit
30/100
Fairly bikeable
50/100
1 of 4
Videos
Matterport 3D Exterior
Matterport 3D Tour
Photos
Street View
Street
Map
1 of 1
Presented by
Brookfield Center | 38275 W Twelve Mile Rd
Already a member? Log In
Hmm, there seems to have been an error sending your message. Please try again.
Thanks! Your message was sent.




