Your email has been sent.
3855 Lindell -Corner of Lindell & Vandeventer 3855 Lindell Blvd 1,300 SF of Office/Retail Space Available in Saint Louis, MO 63108



Highlights
- Corner storefront across stree from main campus of St. Louis University
- Light-filled storefront with southern and western exposures
- At the intersection of Grand Center and Central West End
All Available Space(1)
Display Rental Rate as
- Space
- Size
- Term
- Rental Rate
- Space Use
- Build-Out
- Available
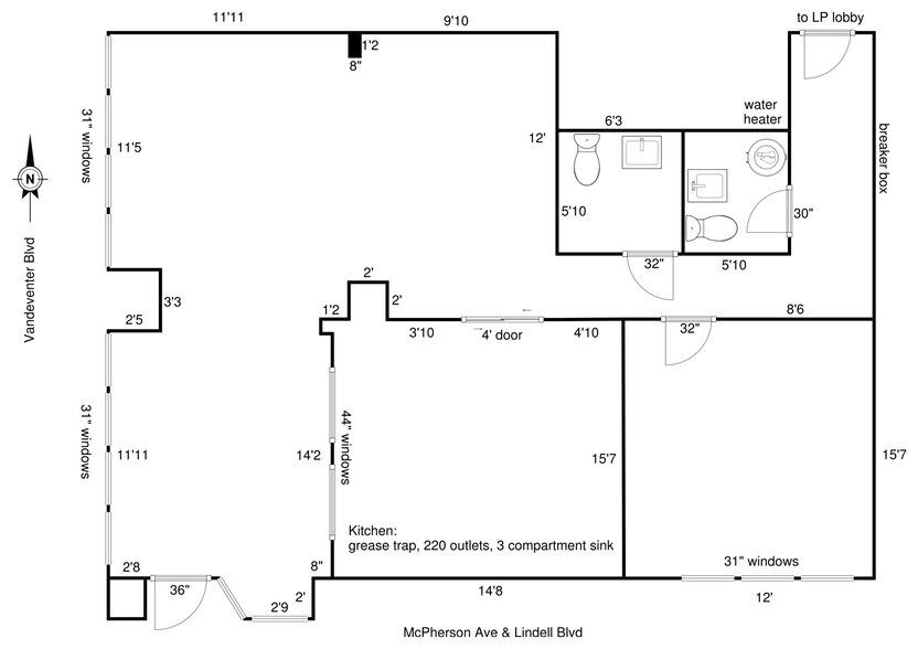
High-visibility corner retail space at the northeast intersection of Lindell Boulevard and Vandeventer Avenue — one of St. Louis's most trafficked corridors, directly across from Saint Louis University. Electric included in rental price. • 1,300 SF ground-level storefront • Premier corner exposure with signage potential on two major streets • Electric, trash and sewer included in lease rate (you pay gas and internet) • Recently updated electrical service, plumbing, and HVAC • Space delivered ready to reconfigure to suit your business Ideal uses include boutique retail, salon or barbershop, professional services, wellness studio, gallery, or creative office. (Note: commercial kitchen exhaust hood installation is not permitted.) Situated in the heart of Midtown, this location benefits from heavy daily foot and vehicle traffic driven by SLU's campus, the Grand Center Arts District, and surrounding medical institutions. Strong transit access via MetroLink and MetroBus. Qualified tenants must demonstrate excellent credit and a strong business history or viable business plan.
- Rate includes utilities, building services and property expenses
- Light-filled corner storefront
- Fits 4 - 11 People
| Space | Size | Term | Rental Rate | Space Use | Build-Out | Available |
| 1st Floor | 1,300 SF | Negotiable | $24.62 CAD/SF/YR $2.05 CAD/SF/MO $32,004 CAD/YR $2,667 CAD/MO | Office/Retail | - | Now |
1st Floor
| Size |
| 1,300 SF |
| Term |
| Negotiable |
| Rental Rate |
| $24.62 CAD/SF/YR $2.05 CAD/SF/MO $32,004 CAD/YR $2,667 CAD/MO |
| Space Use |
| Office/Retail |
| Build-Out |
| - |
| Available |
| Now |
1st Floor
| Size | 1,300 SF |
| Term | Negotiable |
| Rental Rate | $24.62 CAD/SF/YR |
| Space Use | Office/Retail |
| Build-Out | - |
| Available | Now |
High-visibility corner retail space at the northeast intersection of Lindell Boulevard and Vandeventer Avenue — one of St. Louis's most trafficked corridors, directly across from Saint Louis University. Electric included in rental price. • 1,300 SF ground-level storefront • Premier corner exposure with signage potential on two major streets • Electric, trash and sewer included in lease rate (you pay gas and internet) • Recently updated electrical service, plumbing, and HVAC • Space delivered ready to reconfigure to suit your business Ideal uses include boutique retail, salon or barbershop, professional services, wellness studio, gallery, or creative office. (Note: commercial kitchen exhaust hood installation is not permitted.) Situated in the heart of Midtown, this location benefits from heavy daily foot and vehicle traffic driven by SLU's campus, the Grand Center Arts District, and surrounding medical institutions. Strong transit access via MetroLink and MetroBus. Qualified tenants must demonstrate excellent credit and a strong business history or viable business plan.
- Rate includes utilities, building services and property expenses
- Fits 4 - 11 People
- Light-filled corner storefront
About the Property
High-visibility corner retail space at the northeast intersection of Lindell Boulevard and Vandeventer Avenue — one of St. Louis's most trafficked corridors, directly across from Saint Louis University. Rental price includes electric. • 1,300 SF ground-level storefront • Premier corner exposure with signage potential on two major streets • On-street parking (metered by City of St. Louis), with high level of pedestrian traffic • Electric, trash and sewer included in lease rate (you pay gas and internet) • Recently updated electrical service, plumbing, and HVAC • Space delivered ready to reconfigure to suit your business Ideal uses include boutique retail, salon or barbershop, professional services, wellness studio, gallery, or creative office. (Note: commercial kitchen exhaust hood installation is not permitted.) Situated in the heart of Midtown, this location benefits from heavy daily foot and vehicle traffic driven by SLU's campus, the Grand Center Arts District, and surrounding medical institutions. Strong transit access via MetroLink and MetroBus. Qualified tenants must demonstrate excellent credit and a strong business history or viable business plan.
Property Facts
| Total Space Available | 1,300 SF | Apartment Style | Mid-Rise |
| No. Units | 96 | Building Size | 67,424 SF |
| Property Type | Multifamily | Year Built/Renovated | 1922/2015 |
| Property Subtype | Apartment |
| Total Space Available | 1,300 SF |
| No. Units | 96 |
| Property Type | Multifamily |
| Property Subtype | Apartment |
| Apartment Style | Mid-Rise |
| Building Size | 67,424 SF |
| Year Built/Renovated | 1922/2015 |
Presented by
3855 Lindell -Corner of Lindell & Vandeventer | 3855 Lindell Blvd
Hmm, there seems to have been an error sending your message. Please try again.
Thanks! Your message was sent.



