Your email has been sent.
New Construction Retail/ Office 39 Hillside Ave 950 SF of Office/Retail Space Available in Amesbury, MA 01913



Highlights
- New Construction Commercial Space
- High Visibility, Excellent Demographics
- High Traffic Location
- New Commercial & Housing Development in Area
Space Availability (1)
Display Rental Rate as
- Space
- Size
- Term
- Rental Rate
- Rent Type
| Space | Size | Term | Rental Rate | Rent Type | ||
| 1st Floor, Ste A | 950 SF | Negotiable | Upon Request Upon Request Upon Request Upon Request | TBD |
1st Floor, Ste A
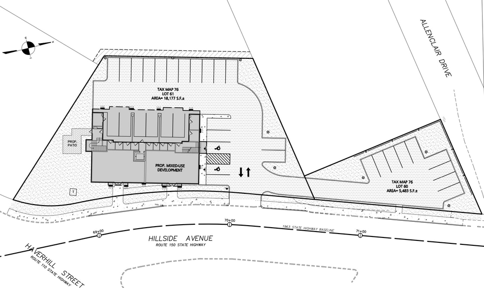
New first-class retail or professional office space to be built at one of the primary routes into Amesbury. Situated at the intersection of MA Route 110 and MA Route 150, the traffic, demographics & exposure are phenomenal. Busy retail artery benefits from the new Maples Crossing sports, office & entertainment complex, The Heights Amesbury apartment complex, and more housing proposed nearby. The retail/ office space will be on the ground floor of this new mixed-use building, and can be demised into two 1,000sf spaces or one 2,000sf space. The spaces will lease for $3,000/ month for each space (1,000sf +-), or $5,800/ month for both spaces (2,000sf +/-), NNN. Ample on-site parking is available. All information was obtained from the property owner and public records, prospective tenants are encouraged to perform due diligence regarding suitability for their purpose. The estimated completion of this project is Q4 2023. Five-year lease minimum. Tenant improvement allowance is negotiable.
- Fits 3 - 8 People
Rent Types
The rent amount and type that the tenant (lessee) will be responsible to pay to the landlord (lessor) throughout the lease term is negotiated prior to both parties signing a lease agreement. The rent type will vary depending upon the services provided. For example, triple net rents are typically lower than full service rents due to additional expenses the tenant is required to pay in addition to the base rent. Contact the listing broker for a full understanding of any associated costs or additional expenses for each rent type.
1. Full Service: A rental rate that includes normal building standard services as provided by the landlord within a base year rental.
2. Double Net (NN): Tenant pays for only two of the building expenses; the landlord and tenant determine the specific expenses prior to signing the lease agreement.
3. Triple Net (NNN): A lease in which the tenant is responsible for all expenses associated with their proportional share of occupancy of the building.
4. Modified Gross: Modified Gross is a general type of lease rate where typically the tenant will be responsible for their proportional share of one or more of the expenses. The landlord will pay the remaining expenses. See the below list of common Modified Gross rental rate structures: 4. Plus All Utilities: A type of Modified Gross Lease where the tenant is responsible for their proportional share of utilities in addition to the rent. 4. Plus Cleaning: A type of Modified Gross Lease where the tenant is responsible for their proportional share of cleaning in addition to the rent. 4. Plus Electric: A type of Modified Gross Lease where the tenant is responsible for their proportional share of the electrical cost in addition to the rent. 4. Plus Electric & Cleaning: A type of Modified Gross Lease where the tenant is responsible for their proportional share of the electrical and cleaning cost in addition to the rent. 4. Plus Utilities and Char: A type of Modified Gross Lease where the tenant is responsible for their proportional share of the utilities and cleaning cost in addition to the rent. 4. Industrial Gross: A type of Modified Gross lease where the tenant pays one or more of the expenses in addition to the rent. The landlord and tenant determine these prior to signing the lease agreement.
5. Tenant Electric: The landlord pays for all services and the tenant is responsible for their usage of lights and electrical outlets in the space they occupy.
6. Negotiable or Upon Request: Used when the leasing contact does not provide the rent or service type.
7. TBD: To be determined; used for buildings for which no rent or service type is known, commonly utilized when the buildings are not yet built.
Property Facts
| Total Space Available | 950 SF | Gross Leasable Area | 11,185 SF |
| Property Type | Retail | Year Built | 1970 |
| Property Subtype | Storefront Retail/Office | Parking Ratio | 0.89/1,000 SF |
| Total Space Available | 950 SF |
| Property Type | Retail |
| Property Subtype | Storefront Retail/Office |
| Gross Leasable Area | 11,185 SF |
| Year Built | 1970 |
| Parking Ratio | 0.89/1,000 SF |
About the Property
NOW LEASING! New first-class retail or professional office space is currently under construction at one of the primary routes into Amesbury. Situated at the intersection of MA Route 110 and MA Route 150, the traffic, demographics & exposure are phenomenal. The busy retail artery benefits from The Heights Amesbury apartment complex, and significantly more housing is being built nearby. The commercial space will be on the ground floor of this new mixed-use building and can be demised into two 1,000 sf spaces or one 2,000 sf space. The lease is NNN, at a price to be determined on the term and tenant strength. Ample on-site parking is available. Five-year lease minimum. Tenant improvement allowance is negotiable for the right tenant. All information was obtained from the property owner and public records. Prospective tenants are encouraged to perform due diligence regarding suitability for their purpose. The estimated completion of this project is Q3 2026. LEASING NOW for Q3 occupancy.
- Signage
Presented by
New Construction Retail/ Office | 39 Hillside Ave
Hmm, there seems to have been an error sending your message. Please try again.
Thanks! Your message was sent.



