Your email has been sent.
West 1st Industrial Park Eugene, OR 97402 768 - 27,264 SF of Space Available



Park Highlights
- Heavy daytime traffic
- Ample Paved Parking
- Natural Light
- Industrial Park
Park Facts
| Total Space Available | 27,264 SF | Park Type | Industrial Park |
| Total Space Available | 27,264 SF |
| Park Type | Industrial Park |
Display Rental Rate as
- Space
- Size
- Term
- Rental Rate
- Space Use
- Build-Out
- Available
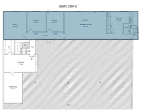
LOCATION 3904-3922 West 1st Avenue, Suite 3904 C, Eugene, OR 97402 Located in West Eugene between 99W and S Bertelsen Road. An excellent location for professional offices, services, or businesses that need dedicated office space in an industrial park setting. PROPERTY OVERVIEW The West First Avenue Industrial Park has recently undergone site-wide improvements including fresh exterior paint, updated exterior lighting, and a full parking lot repaving and restriping. The site features security fencing with gated keypad entry for added protection. SPACE DETAILS • Rentable Area: 1,530 SF (second floor) • Building Type: Metal-frame, metal-sided with standing-seam pitched roof • Suite Layout: Office space with kitchenette • Restroom: Private restroom included • Heating: Gas heat • Lighting: Ample throughout • Power: Ample • Water: Available for all Suites • Parking: Assigned outdoor parking included Expansion option: This suite can be combined with the downstairs Suite 3904 A (10,520 SF of warehouse, office, and mezzanine space) for a total of 12,050 RSF. Inquire for details. LEASE TERMS • Base Rent: $11.00/SF/year ($1,402.50/month) • NNN Charges: $2.40/SF/year ($306.00/month) • All-In Rent: $1,708.50/month • Security Deposit: $2,500.00 • Minimum Term: 24 months (extensions available) • Annual Increase: 3% increase of Base Rent • Lease Type: NNN • Utilities: Tenant is responsible for gas, electricity, internet, phone, and garbage. • HVAC: HVAC maintenance and repair are the responsibility of the owner. KEY AMENITIES • Dedicated office suite with kitchenette – ready to occupy • Private restroom • Expandable – combine with downstairs Suite 3904 A for over 12,000 RSF of warehouse and office • Security fencing • Recently improved site – new paint, lighting, and freshly repaved parking lot • Gas heat with owner-maintained HVAC • Water: Available for all Suites • Assigned outdoor parking MOVE-IN SPECIAL • New Tenants Only - Limited-Time Offer • FREE base rent for months 4 and 8. That’s a savings of $2,805.00 • Base rent increase in year two of the Lease will be 0% instead of 3% INQUIRIES Serious inquiries only. Broker courtesy extended.
- Lease rate does not include utilities, property expenses or building services
- Space is in Excellent Condition
- Partially Built-Out as Standard Office
- Private Restrooms
LOCATION 3904-3922 West 1st Avenue, Suite 3906 C, Eugene, OR 97402 Located in West Eugene between 99W and S Bertelsen Road. An excellent location for professional offices, services, or businesses that need dedicated office space in an industrial park setting. PROPERTY OVERVIEW The West First Avenue Industrial Park has recently undergone site-wide improvements including fresh exterior paint, updated exterior lighting, and a full parking lot repaving and restriping. Security is a priority—the site features security fencing with a gated entry and keypad access. SPACE DETAILS • Rentable Area: 768 SF • Building Type: Metal-frame, metal-sided with standing-seam pitched roof • Suite Type: Private office space • Heating: Gas heat • Lighting: Ample throughout • Power: Ample • Water: Available for all Suites • Parking: Assigned parking included LEASE TERMS • Base Rent: $11.00/SF/year ($704.00/month) • NNN Charges: $2.40/SF/year ($153.60/month) • All-In Rent: $857.60/month • Security Deposit: $1,500.00 • Minimum Term: 24 months (extensions available) • Annual Increase: 3% increase of Base Rent • Lease Type: NNN • Utilities: Tenant is responsible for electricity, internet, phone, and garbage. • HVAC: HVAC maintenance and repair are the responsibility of the owner. KEY AMENITIES • Private office space – ready to occupy • Security fencing with gated entry and keypad access • Gas heat with owner-maintained HVAC • Recently improved site – new paint, lighting, and freshly repaved parking lot • Water: Available for all Suites • Assigned parking MOVE-IN SPECIAL • New Tenants Only - Limited-Time Offer • FREE base rent for months 4 and 8. That’s a savings of $1,408.00 • Base rent increase in year two of the Lease will be 0% instead of 3% INQUIRIES Serious inquiries only. Broker courtesy extended.
- Lease rate does not include utilities, property expenses or building services
- Private Restrooms
- Partially Built-Out as Standard Office
| Space | Size | Term | Rental Rate | Space Use | Build-Out | Available |
| 1st Floor, Ste 3904 C | 1,530 SF | 2 Years | $15.07 CAD/SF/YR $1.26 CAD/SF/MO $23,064 CAD/YR $1,922 CAD/MO | Office | Partial Build-Out | Now |
| 1st Floor, Ste 3906 C | 768 SF | 2 Years | $15.07 CAD/SF/YR $1.26 CAD/SF/MO $11,577 CAD/YR $964.77 CAD/MO | Office | Partial Build-Out | Now |
3904-3908 W 1st Ave - 1st Floor - Ste 3904 C
3904-3908 W 1st Ave - 1st Floor - Ste 3906 C
- Space
- Size
- Term
- Rental Rate
- Space Use
- Build-Out
- Available
LOCATION 3904-3922 West 1st Avenue, Suite 3920 C, Eugene, OR 97402 Located in West Eugene between 99W and S Bertelsen Road. An excellent location for professional offices, services, or businesses that need dedicated office space in an industrial park setting. PROPERTY OVERVIEW The West First Avenue Industrial Park has recently undergone site-wide improvements including fresh exterior paint, updated exterior lighting, and a full parking lot repaving and restriping. Security is a priority—the site features security fencing with a gated entry and keypad access. Please note: photos are of a similar suite; updated pictures of the actual unit will be uploaded soon. SPACE DETAILS • Rentable Area: 956 SF • Building Type: Metal-frame, metal-sided with standing-seam pitched roof • Suite Type: Private office space with private restroom • Heating: Gas heat • Lighting: Ample throughout • Power: Ample • Water: Available for all Suites • Parking: Assigned parking included LEASE TERMS • Base Rent: $11.00/SF/year ($876.33/month) • NNN Charges: $2.50/SF/year ($199.17/month) • All-In Rent: $1,075.50/month • Security Deposit: $2,000.00 • Minimum Term: 24 months (extensions available) • Annual Increase: 3% increase of Base Rent • Lease Type: NNN • Utilities: Tenant is responsible for electricity, internet, phone, and garbage. • HVAC: HVAC maintenance and repair are the responsibility of the owner. KEY AMENITIES • Private office space – ready to occupy • Private restroom • Security fencing with gated entry and keypad access • Gas heat with owner-maintained HVAC • Recently improved site – new paint, lighting, and freshly repaved parking lot • Water: Available for all Suites • Assigned parking MOVE-IN SPECIAL • New Tenants Only - Limited-Time Offer • FREE base rent for months 4 and 8. That’s a savings of $1,752.66 • Base rent increase in year two of the Lease will be 0% instead of 3% INQUIRIES Serious inquiries only. Broker courtesy extended.
- Lease rate does not include utilities, property expenses or building services
- Partially Built-Out as Standard Office
| Space | Size | Term | Rental Rate | Space Use | Build-Out | Available |
| 1st Floor, Ste 3920 C | 956 SF | 2 Years | $15.07 CAD/SF/YR $1.26 CAD/SF/MO $14,411 CAD/YR $1,201 CAD/MO | Office | Partial Build-Out | Now |
3910-3922 West 1st Avenue - 1st Floor - Ste 3920 C
- Space
- Size
- Term
- Rental Rate
- Space Use
- Build-Out
- Available
LOCATION 3904-3922 West 1st Avenue, Suite 3904 A, Eugene, OR 97402 Located in West Eugene between 99W and S Bertelsen Road. Ideal for businesses that need warehouse, storage, light manufacturing, service, or production space. PROPERTY OVERVIEW The West First Avenue Industrial Park has recently undergone site-wide improvements including fresh exterior paint, updated exterior lighting, and a full parking lot repaving and restriping. The site features security fencing with gated keypad entry for added protection. SPACE DETAILS • Rentable Area: 10,520 SF • Building Type: Metal-frame, metal-sided with standing-seam pitched roof • Office: Office space included • Mezzanine: Mezzanine space included • Restroom: Private restroom included • Heating: Gas heat • Lighting: Ample throughout • Power: Ample • Water: Available for all Suites • Parking: Assigned outdoor parking included Expansion option: This suite can be combined with Suite 3904 C (upstairs office space) for additional capacity. Inquire for details. LEASE TERMS • Base Rent: $6.00/SF/year ($5,260.00/month) • NNN Charges: $2.40/SF/year ($2,104.00/month) • All-In Rent: $7,364.00/month • Security Deposit: $9,000.00 • Minimum Term: 24 months (extensions available) • Annual Increase: 3% increase of Base Rent • Lease Type: NNN • Utilities: Tenant is responsible for gas, electricity, internet, phone, and garbage. • HVAC: HVAC maintenance and repair are the responsibility of the owner. KEY AMENITIES • 10,520 SF at just $6.50/SF/year base rent – exceptional value for large-format warehouse space • Office space and mezzanine included • Private restroom • Expandable – combine with Suite 3904 C for additional upstairs office space • Security fencing • Recently improved site – new paint, lighting, and freshly repaved parking lot • Gas heat with owner-maintained HVAC • Water: Available for all Suites • Assigned outdoor parking MOVE-IN SPECIAL • New Tenants Only - Limited-Time Offer • FREE base rent for months 4 and 8. That’s a savings of $10,520.00 • Base rent increase in year two of the Lease will be 0% instead of 3% INQUIRIES Serious inquiries only. Broker courtesy extended.
- Lease rate does not include utilities, property expenses or building services
- Private Restrooms
LOCATION 3904-3922 West 1st Avenue, Suites 3904 A/C, Eugene, OR 97402 Located in West Eugene between 99W and S Bertelsen Road. Ideal for businesses that need warehouse, storage, light manufacturing, service, or production space with dedicated upstairs office. PROPERTY OVERVIEW The West First Avenue Industrial Park has recently undergone site-wide improvements including fresh exterior paint, updated exterior lighting, and a full parking lot repaving and restriping. Security is a priority—the site features security fencing with a gated entry and keypad access. SPACE DETAILS • Rentable Area: 12,050 SF total (10,520 SF warehouse/mezzanine + 1,530 SF upstairs office) • Building Type: Metal-frame, metal-sided with standing-seam pitched roof • Warehouse (Suite A): 10,520 SF with office space and mezzanine • Upstairs Office (Suite C): 1,530 SF dedicated second-floor office • Mezzanine: Mezzanine space included • Restroom: Private restroom included • Heating: Gas heat • Lighting: Ample throughout • Power: Ample • Water: Available for all Suites • Parking: Assigned outdoor parking included LEASE TERMS • Base Rent: $6.00/SF/year ($6,025.00/month) • NNN Charges: $2.40/SF/year ($2,410.00/month) • All-In Rent: $8,435.00/month • Security Deposit: $10,500.00 • Minimum Term: 24 months (extensions available) • Annual Increase: 3% increase of Base Rent • Lease Type: NNN • Utilities: Tenant is responsible for electricity, internet, phone, and garbage. • HVAC: HVAC maintenance and repair are the responsibility of the owner. KEY AMENITIES • 12,050 SF at just $6.50/SF/year base rent – exceptional value for large-format warehouse with office • 10,520 SF warehouse with mezzanine on the first floor • 1,530 SF dedicated upstairs office suite • Private restroom • Security fencing with gated entry and keypad access • Recently improved site – new paint, lighting, and freshly repaved parking lot • Gas heat with owner-maintained HVAC • Water: Available for all Suites • Assigned outdoor parking MOVE-IN SPECIAL • New Tenants Only - Limited-Time Offer • FREE base rent for months 4 and 8. That’s a savings of $12,050.00 • Base rent increase in year two of the Lease will be 0% instead of 3% INQUIRIES Serious inquiries only. Broker courtesy extended.
- Lease rate does not include utilities, property expenses or building services
- Private Restrooms
- Space is in Excellent Condition
LOCATION 3904-3922 West 1st Avenue, Suite 3904 C, Eugene, OR 97402 Located in West Eugene between 99W and S Bertelsen Road. An excellent location for professional offices, services, or businesses that need dedicated office space in an industrial park setting. PROPERTY OVERVIEW The West First Avenue Industrial Park has recently undergone site-wide improvements including fresh exterior paint, updated exterior lighting, and a full parking lot repaving and restriping. The site features security fencing with gated keypad entry for added protection. SPACE DETAILS • Rentable Area: 1,530 SF (second floor) • Building Type: Metal-frame, metal-sided with standing-seam pitched roof • Suite Layout: Office space with kitchenette • Restroom: Private restroom included • Heating: Gas heat • Lighting: Ample throughout • Power: Ample • Water: Available for all Suites • Parking: Assigned outdoor parking included Expansion option: This suite can be combined with the downstairs Suite 3904 A (10,520 SF of warehouse, office, and mezzanine space) for a total of 12,050 RSF. Inquire for details. LEASE TERMS • Base Rent: $11.00/SF/year ($1,402.50/month) • NNN Charges: $2.40/SF/year ($306.00/month) • All-In Rent: $1,708.50/month • Security Deposit: $2,500.00 • Minimum Term: 24 months (extensions available) • Annual Increase: 3% increase of Base Rent • Lease Type: NNN • Utilities: Tenant is responsible for gas, electricity, internet, phone, and garbage. • HVAC: HVAC maintenance and repair are the responsibility of the owner. KEY AMENITIES • Dedicated office suite with kitchenette – ready to occupy • Private restroom • Expandable – combine with downstairs Suite 3904 A for over 12,000 RSF of warehouse and office • Security fencing • Recently improved site – new paint, lighting, and freshly repaved parking lot • Gas heat with owner-maintained HVAC • Water: Available for all Suites • Assigned outdoor parking MOVE-IN SPECIAL • New Tenants Only - Limited-Time Offer • FREE base rent for months 4 and 8. That’s a savings of $2,805.00 • Base rent increase in year two of the Lease will be 0% instead of 3% INQUIRIES Serious inquiries only. Broker courtesy extended.
- Lease rate does not include utilities, property expenses or building services
- Space is in Excellent Condition
- Partially Built-Out as Standard Office
- Private Restrooms
LOCATION 3904-3922 West 1st Avenue, Suite 3906 C, Eugene, OR 97402 Located in West Eugene between 99W and S Bertelsen Road. An excellent location for professional offices, services, or businesses that need dedicated office space in an industrial park setting. PROPERTY OVERVIEW The West First Avenue Industrial Park has recently undergone site-wide improvements including fresh exterior paint, updated exterior lighting, and a full parking lot repaving and restriping. Security is a priority—the site features security fencing with a gated entry and keypad access. SPACE DETAILS • Rentable Area: 768 SF • Building Type: Metal-frame, metal-sided with standing-seam pitched roof • Suite Type: Private office space • Heating: Gas heat • Lighting: Ample throughout • Power: Ample • Water: Available for all Suites • Parking: Assigned parking included LEASE TERMS • Base Rent: $11.00/SF/year ($704.00/month) • NNN Charges: $2.40/SF/year ($153.60/month) • All-In Rent: $857.60/month • Security Deposit: $1,500.00 • Minimum Term: 24 months (extensions available) • Annual Increase: 3% increase of Base Rent • Lease Type: NNN • Utilities: Tenant is responsible for electricity, internet, phone, and garbage. • HVAC: HVAC maintenance and repair are the responsibility of the owner. KEY AMENITIES • Private office space – ready to occupy • Security fencing with gated entry and keypad access • Gas heat with owner-maintained HVAC • Recently improved site – new paint, lighting, and freshly repaved parking lot • Water: Available for all Suites • Assigned parking MOVE-IN SPECIAL • New Tenants Only - Limited-Time Offer • FREE base rent for months 4 and 8. That’s a savings of $1,408.00 • Base rent increase in year two of the Lease will be 0% instead of 3% INQUIRIES Serious inquiries only. Broker courtesy extended.
- Lease rate does not include utilities, property expenses or building services
- Private Restrooms
- Partially Built-Out as Standard Office
LOCATION 3904-3922 West 1st Avenue, Suite 3908 B, Eugene, OR 97402 Located off OR-126 in West Eugene. Ideal for businesses that need warehouse, storage, or light manufacturing and production space. PROPERTY OVERVIEW The West First Avenue Industrial Park has recently undergone site-wide improvements including fresh exterior paint, updated exterior lighting, and a full parking lot repaving and restriping. Security is a priority—the site features security fencing with a gated entry and keypad access. SPACE DETAILS • Rentable Area: 1,440 SF • Building Type: Metal-frame, metal-sided with standing-seam pitched roof • Ceiling Clearance: High interior clearance • Restrooms: Shared restroom access • Heating: Electric heater (freeze protection) • Power: Details Pending • Water: Available for all Suites • Parking: Assigned outdoor parking included LEASE TERMS • Base Rent: $9.00/SF/year ($1,080.00/month) • NNN Charges: $2.40/SF/year ($191.20/month) • All-In Rent: $1,067.53/month • Security Deposit: $2,000.00 • Minimum Term: 24 months (extensions available) • Annual Increase: 3% increase of Base Rent • Lease Type: NNN • Utilities: Tenant is responsible for electricity, internet, phone, and garbage. • HVAC: HVAC maintenance and repair are the responsibility of the owner. KEY AMENITIES • High ceiling clearance warehouse • Security fencing with gated entry and keypad access • Recently improved site – new paint, lighting, and freshly repaved parking lot • Owner-maintained HVAC • Water: Available for all Suites • Assigned outdoor parking MOVE-IN SPECIAL • New Tenants Only - Limited-Time Offer • FREE base rent for months 4 and 8. That’s a savings of $2,160.00 • Base rent increase in year two of the Lease will be 0% instead of 3% INQUIRIES Serious inquiries only. Broker courtesy extended.
- Lease rate does not include utilities, property expenses or building services
| Space | Size | Term | Rental Rate | Space Use | Build-Out | Available |
| 1st Floor - 3904 A | 10,520 SF | 2 Years | $8.22 CAD/SF/YR $0.69 CAD/SF/MO $86,500 CAD/YR $7,208 CAD/MO | Industrial | Partial Build-Out | Now |
| 1st Floor - 3904 A/C | 12,050 SF | Negotiable | $8.22 CAD/SF/YR $0.69 CAD/SF/MO $99,081 CAD/YR $8,257 CAD/MO | Industrial | Partial Build-Out | Now |
| 1st Floor, Ste 3904 C | 1,530 SF | 2 Years | $15.07 CAD/SF/YR $1.26 CAD/SF/MO $23,064 CAD/YR $1,922 CAD/MO | Office | Partial Build-Out | Now |
| 1st Floor, Ste 3906 C | 768 SF | 2 Years | $15.07 CAD/SF/YR $1.26 CAD/SF/MO $11,577 CAD/YR $964.77 CAD/MO | Office | Partial Build-Out | Now |
| 1st Floor - 3908 B | 1,440 SF | 2 Years | $12.33 CAD/SF/YR $1.03 CAD/SF/MO $17,761 CAD/YR $1,480 CAD/MO | Industrial | Partial Build-Out | Now |
3904-3908 W 1st Ave - 1st Floor - 3904 A
3904-3908 W 1st Ave - 1st Floor - 3904 A/C
3904-3908 W 1st Ave - 1st Floor - Ste 3904 C
3904-3908 W 1st Ave - 1st Floor - Ste 3906 C
3904-3908 W 1st Ave - 1st Floor - 3908 B
- Space
- Size
- Term
- Rental Rate
- Space Use
- Build-Out
- Available
LOCATION 3904-3922 West 1st Avenue, Suite 3920 C, Eugene, OR 97402 Located in West Eugene between 99W and S Bertelsen Road. An excellent location for professional offices, services, or businesses that need dedicated office space in an industrial park setting. PROPERTY OVERVIEW The West First Avenue Industrial Park has recently undergone site-wide improvements including fresh exterior paint, updated exterior lighting, and a full parking lot repaving and restriping. Security is a priority—the site features security fencing with a gated entry and keypad access. Please note: photos are of a similar suite; updated pictures of the actual unit will be uploaded soon. SPACE DETAILS • Rentable Area: 956 SF • Building Type: Metal-frame, metal-sided with standing-seam pitched roof • Suite Type: Private office space with private restroom • Heating: Gas heat • Lighting: Ample throughout • Power: Ample • Water: Available for all Suites • Parking: Assigned parking included LEASE TERMS • Base Rent: $11.00/SF/year ($876.33/month) • NNN Charges: $2.50/SF/year ($199.17/month) • All-In Rent: $1,075.50/month • Security Deposit: $2,000.00 • Minimum Term: 24 months (extensions available) • Annual Increase: 3% increase of Base Rent • Lease Type: NNN • Utilities: Tenant is responsible for electricity, internet, phone, and garbage. • HVAC: HVAC maintenance and repair are the responsibility of the owner. KEY AMENITIES • Private office space – ready to occupy • Private restroom • Security fencing with gated entry and keypad access • Gas heat with owner-maintained HVAC • Recently improved site – new paint, lighting, and freshly repaved parking lot • Water: Available for all Suites • Assigned parking MOVE-IN SPECIAL • New Tenants Only - Limited-Time Offer • FREE base rent for months 4 and 8. That’s a savings of $1,752.66 • Base rent increase in year two of the Lease will be 0% instead of 3% INQUIRIES Serious inquiries only. Broker courtesy extended.
- Lease rate does not include utilities, property expenses or building services
- Partially Built-Out as Standard Office
| Space | Size | Term | Rental Rate | Space Use | Build-Out | Available |
| 1st Floor, Ste 3920 C | 956 SF | 2 Years | $15.07 CAD/SF/YR $1.26 CAD/SF/MO $14,411 CAD/YR $1,201 CAD/MO | Office | Partial Build-Out | Now |
3910-3922 West 1st Avenue - 1st Floor - Ste 3920 C
3904-3908 W 1st Ave - 1st Floor - 3904 A
| Size | 10,520 SF |
| Term | 2 Years |
| Rental Rate | $8.22 CAD/SF/YR |
| Space Use | Industrial |
| Build-Out | Partial Build-Out |
| Available | Now |
LOCATION 3904-3922 West 1st Avenue, Suite 3904 A, Eugene, OR 97402 Located in West Eugene between 99W and S Bertelsen Road. Ideal for businesses that need warehouse, storage, light manufacturing, service, or production space. PROPERTY OVERVIEW The West First Avenue Industrial Park has recently undergone site-wide improvements including fresh exterior paint, updated exterior lighting, and a full parking lot repaving and restriping. The site features security fencing with gated keypad entry for added protection. SPACE DETAILS • Rentable Area: 10,520 SF • Building Type: Metal-frame, metal-sided with standing-seam pitched roof • Office: Office space included • Mezzanine: Mezzanine space included • Restroom: Private restroom included • Heating: Gas heat • Lighting: Ample throughout • Power: Ample • Water: Available for all Suites • Parking: Assigned outdoor parking included Expansion option: This suite can be combined with Suite 3904 C (upstairs office space) for additional capacity. Inquire for details. LEASE TERMS • Base Rent: $6.00/SF/year ($5,260.00/month) • NNN Charges: $2.40/SF/year ($2,104.00/month) • All-In Rent: $7,364.00/month • Security Deposit: $9,000.00 • Minimum Term: 24 months (extensions available) • Annual Increase: 3% increase of Base Rent • Lease Type: NNN • Utilities: Tenant is responsible for gas, electricity, internet, phone, and garbage. • HVAC: HVAC maintenance and repair are the responsibility of the owner. KEY AMENITIES • 10,520 SF at just $6.50/SF/year base rent – exceptional value for large-format warehouse space • Office space and mezzanine included • Private restroom • Expandable – combine with Suite 3904 C for additional upstairs office space • Security fencing • Recently improved site – new paint, lighting, and freshly repaved parking lot • Gas heat with owner-maintained HVAC • Water: Available for all Suites • Assigned outdoor parking MOVE-IN SPECIAL • New Tenants Only - Limited-Time Offer • FREE base rent for months 4 and 8. That’s a savings of $10,520.00 • Base rent increase in year two of the Lease will be 0% instead of 3% INQUIRIES Serious inquiries only. Broker courtesy extended.
- Lease rate does not include utilities, property expenses or building services
- Private Restrooms
3904-3908 W 1st Ave - 1st Floor - 3904 A/C
| Size | 12,050 SF |
| Term | Negotiable |
| Rental Rate | $8.22 CAD/SF/YR |
| Space Use | Industrial |
| Build-Out | Partial Build-Out |
| Available | Now |
LOCATION 3904-3922 West 1st Avenue, Suites 3904 A/C, Eugene, OR 97402 Located in West Eugene between 99W and S Bertelsen Road. Ideal for businesses that need warehouse, storage, light manufacturing, service, or production space with dedicated upstairs office. PROPERTY OVERVIEW The West First Avenue Industrial Park has recently undergone site-wide improvements including fresh exterior paint, updated exterior lighting, and a full parking lot repaving and restriping. Security is a priority—the site features security fencing with a gated entry and keypad access. SPACE DETAILS • Rentable Area: 12,050 SF total (10,520 SF warehouse/mezzanine + 1,530 SF upstairs office) • Building Type: Metal-frame, metal-sided with standing-seam pitched roof • Warehouse (Suite A): 10,520 SF with office space and mezzanine • Upstairs Office (Suite C): 1,530 SF dedicated second-floor office • Mezzanine: Mezzanine space included • Restroom: Private restroom included • Heating: Gas heat • Lighting: Ample throughout • Power: Ample • Water: Available for all Suites • Parking: Assigned outdoor parking included LEASE TERMS • Base Rent: $6.00/SF/year ($6,025.00/month) • NNN Charges: $2.40/SF/year ($2,410.00/month) • All-In Rent: $8,435.00/month • Security Deposit: $10,500.00 • Minimum Term: 24 months (extensions available) • Annual Increase: 3% increase of Base Rent • Lease Type: NNN • Utilities: Tenant is responsible for electricity, internet, phone, and garbage. • HVAC: HVAC maintenance and repair are the responsibility of the owner. KEY AMENITIES • 12,050 SF at just $6.50/SF/year base rent – exceptional value for large-format warehouse with office • 10,520 SF warehouse with mezzanine on the first floor • 1,530 SF dedicated upstairs office suite • Private restroom • Security fencing with gated entry and keypad access • Recently improved site – new paint, lighting, and freshly repaved parking lot • Gas heat with owner-maintained HVAC • Water: Available for all Suites • Assigned outdoor parking MOVE-IN SPECIAL • New Tenants Only - Limited-Time Offer • FREE base rent for months 4 and 8. That’s a savings of $12,050.00 • Base rent increase in year two of the Lease will be 0% instead of 3% INQUIRIES Serious inquiries only. Broker courtesy extended.
- Lease rate does not include utilities, property expenses or building services
- Space is in Excellent Condition
- Private Restrooms
3904-3908 W 1st Ave - 1st Floor - Ste 3904 C
| Size | 1,530 SF |
| Term | 2 Years |
| Rental Rate | $15.07 CAD/SF/YR |
| Space Use | Office |
| Build-Out | Partial Build-Out |
| Available | Now |
LOCATION 3904-3922 West 1st Avenue, Suite 3904 C, Eugene, OR 97402 Located in West Eugene between 99W and S Bertelsen Road. An excellent location for professional offices, services, or businesses that need dedicated office space in an industrial park setting. PROPERTY OVERVIEW The West First Avenue Industrial Park has recently undergone site-wide improvements including fresh exterior paint, updated exterior lighting, and a full parking lot repaving and restriping. The site features security fencing with gated keypad entry for added protection. SPACE DETAILS • Rentable Area: 1,530 SF (second floor) • Building Type: Metal-frame, metal-sided with standing-seam pitched roof • Suite Layout: Office space with kitchenette • Restroom: Private restroom included • Heating: Gas heat • Lighting: Ample throughout • Power: Ample • Water: Available for all Suites • Parking: Assigned outdoor parking included Expansion option: This suite can be combined with the downstairs Suite 3904 A (10,520 SF of warehouse, office, and mezzanine space) for a total of 12,050 RSF. Inquire for details. LEASE TERMS • Base Rent: $11.00/SF/year ($1,402.50/month) • NNN Charges: $2.40/SF/year ($306.00/month) • All-In Rent: $1,708.50/month • Security Deposit: $2,500.00 • Minimum Term: 24 months (extensions available) • Annual Increase: 3% increase of Base Rent • Lease Type: NNN • Utilities: Tenant is responsible for gas, electricity, internet, phone, and garbage. • HVAC: HVAC maintenance and repair are the responsibility of the owner. KEY AMENITIES • Dedicated office suite with kitchenette – ready to occupy • Private restroom • Expandable – combine with downstairs Suite 3904 A for over 12,000 RSF of warehouse and office • Security fencing • Recently improved site – new paint, lighting, and freshly repaved parking lot • Gas heat with owner-maintained HVAC • Water: Available for all Suites • Assigned outdoor parking MOVE-IN SPECIAL • New Tenants Only - Limited-Time Offer • FREE base rent for months 4 and 8. That’s a savings of $2,805.00 • Base rent increase in year two of the Lease will be 0% instead of 3% INQUIRIES Serious inquiries only. Broker courtesy extended.
- Lease rate does not include utilities, property expenses or building services
- Partially Built-Out as Standard Office
- Space is in Excellent Condition
- Private Restrooms
3904-3908 W 1st Ave - 1st Floor - Ste 3906 C
| Size | 768 SF |
| Term | 2 Years |
| Rental Rate | $15.07 CAD/SF/YR |
| Space Use | Office |
| Build-Out | Partial Build-Out |
| Available | Now |
LOCATION 3904-3922 West 1st Avenue, Suite 3906 C, Eugene, OR 97402 Located in West Eugene between 99W and S Bertelsen Road. An excellent location for professional offices, services, or businesses that need dedicated office space in an industrial park setting. PROPERTY OVERVIEW The West First Avenue Industrial Park has recently undergone site-wide improvements including fresh exterior paint, updated exterior lighting, and a full parking lot repaving and restriping. Security is a priority—the site features security fencing with a gated entry and keypad access. SPACE DETAILS • Rentable Area: 768 SF • Building Type: Metal-frame, metal-sided with standing-seam pitched roof • Suite Type: Private office space • Heating: Gas heat • Lighting: Ample throughout • Power: Ample • Water: Available for all Suites • Parking: Assigned parking included LEASE TERMS • Base Rent: $11.00/SF/year ($704.00/month) • NNN Charges: $2.40/SF/year ($153.60/month) • All-In Rent: $857.60/month • Security Deposit: $1,500.00 • Minimum Term: 24 months (extensions available) • Annual Increase: 3% increase of Base Rent • Lease Type: NNN • Utilities: Tenant is responsible for electricity, internet, phone, and garbage. • HVAC: HVAC maintenance and repair are the responsibility of the owner. KEY AMENITIES • Private office space – ready to occupy • Security fencing with gated entry and keypad access • Gas heat with owner-maintained HVAC • Recently improved site – new paint, lighting, and freshly repaved parking lot • Water: Available for all Suites • Assigned parking MOVE-IN SPECIAL • New Tenants Only - Limited-Time Offer • FREE base rent for months 4 and 8. That’s a savings of $1,408.00 • Base rent increase in year two of the Lease will be 0% instead of 3% INQUIRIES Serious inquiries only. Broker courtesy extended.
- Lease rate does not include utilities, property expenses or building services
- Partially Built-Out as Standard Office
- Private Restrooms
3904-3908 W 1st Ave - 1st Floor - 3908 B
| Size | 1,440 SF |
| Term | 2 Years |
| Rental Rate | $12.33 CAD/SF/YR |
| Space Use | Industrial |
| Build-Out | Partial Build-Out |
| Available | Now |
LOCATION 3904-3922 West 1st Avenue, Suite 3908 B, Eugene, OR 97402 Located off OR-126 in West Eugene. Ideal for businesses that need warehouse, storage, or light manufacturing and production space. PROPERTY OVERVIEW The West First Avenue Industrial Park has recently undergone site-wide improvements including fresh exterior paint, updated exterior lighting, and a full parking lot repaving and restriping. Security is a priority—the site features security fencing with a gated entry and keypad access. SPACE DETAILS • Rentable Area: 1,440 SF • Building Type: Metal-frame, metal-sided with standing-seam pitched roof • Ceiling Clearance: High interior clearance • Restrooms: Shared restroom access • Heating: Electric heater (freeze protection) • Power: Details Pending • Water: Available for all Suites • Parking: Assigned outdoor parking included LEASE TERMS • Base Rent: $9.00/SF/year ($1,080.00/month) • NNN Charges: $2.40/SF/year ($191.20/month) • All-In Rent: $1,067.53/month • Security Deposit: $2,000.00 • Minimum Term: 24 months (extensions available) • Annual Increase: 3% increase of Base Rent • Lease Type: NNN • Utilities: Tenant is responsible for electricity, internet, phone, and garbage. • HVAC: HVAC maintenance and repair are the responsibility of the owner. KEY AMENITIES • High ceiling clearance warehouse • Security fencing with gated entry and keypad access • Recently improved site – new paint, lighting, and freshly repaved parking lot • Owner-maintained HVAC • Water: Available for all Suites • Assigned outdoor parking MOVE-IN SPECIAL • New Tenants Only - Limited-Time Offer • FREE base rent for months 4 and 8. That’s a savings of $2,160.00 • Base rent increase in year two of the Lease will be 0% instead of 3% INQUIRIES Serious inquiries only. Broker courtesy extended.
- Lease rate does not include utilities, property expenses or building services
3910-3922 West 1st Avenue - 1st Floor - Ste 3920 C
| Size | 956 SF |
| Term | 2 Years |
| Rental Rate | $15.07 CAD/SF/YR |
| Space Use | Office |
| Build-Out | Partial Build-Out |
| Available | Now |
LOCATION 3904-3922 West 1st Avenue, Suite 3920 C, Eugene, OR 97402 Located in West Eugene between 99W and S Bertelsen Road. An excellent location for professional offices, services, or businesses that need dedicated office space in an industrial park setting. PROPERTY OVERVIEW The West First Avenue Industrial Park has recently undergone site-wide improvements including fresh exterior paint, updated exterior lighting, and a full parking lot repaving and restriping. Security is a priority—the site features security fencing with a gated entry and keypad access. Please note: photos are of a similar suite; updated pictures of the actual unit will be uploaded soon. SPACE DETAILS • Rentable Area: 956 SF • Building Type: Metal-frame, metal-sided with standing-seam pitched roof • Suite Type: Private office space with private restroom • Heating: Gas heat • Lighting: Ample throughout • Power: Ample • Water: Available for all Suites • Parking: Assigned parking included LEASE TERMS • Base Rent: $11.00/SF/year ($876.33/month) • NNN Charges: $2.50/SF/year ($199.17/month) • All-In Rent: $1,075.50/month • Security Deposit: $2,000.00 • Minimum Term: 24 months (extensions available) • Annual Increase: 3% increase of Base Rent • Lease Type: NNN • Utilities: Tenant is responsible for electricity, internet, phone, and garbage. • HVAC: HVAC maintenance and repair are the responsibility of the owner. KEY AMENITIES • Private office space – ready to occupy • Private restroom • Security fencing with gated entry and keypad access • Gas heat with owner-maintained HVAC • Recently improved site – new paint, lighting, and freshly repaved parking lot • Water: Available for all Suites • Assigned parking MOVE-IN SPECIAL • New Tenants Only - Limited-Time Offer • FREE base rent for months 4 and 8. That’s a savings of $1,752.66 • Base rent increase in year two of the Lease will be 0% instead of 3% INQUIRIES Serious inquiries only. Broker courtesy extended.
- Lease rate does not include utilities, property expenses or building services
- Partially Built-Out as Standard Office
Select Tenants at This Property
- Floor
- Tenant Name
- Industry
- 1st
- Arbon Equipment
- Services
- 1st
- Auxin Consulting LLC
- Services
- 1st
- Dr Energy Saver
- Services
- 1st
- Easy Flow Gutter Co LLC
- Services
- 1st
- Pasta Plus Inc
- Wholesaler
- 1st
- Rick Ware
- Services
- 1st
- Torchy's Fabrication
- Services
- 1st
- White Bird Clinic, Inc.
- Services
Park Overview
The West 1st Avenue Industrial Park located at 3904-3922 West 1st Ave, Eugene, OR 97402 is made up of 10 total buildings and 60,844 SF of leasable warehouse space. The West 1st Avenue Industrial Park offers a variety of warehouse and office spaces that range in size from 580-3,000 SF and outdoor parking for lease. With easy access to major highways, our industrial park is the perfect choice for companies looking for office, warehouse, storage, or light manufacturing/production spaces. Plus, with competitive leasing rates and flexible lease terms, we make it easy for you to get the space you need at a price that fits your budget. Contact us today to learn more about our available warehouse spaces. The West 1st Avenue Industrial Park recently had a series of sitewide improvements including new exterior paint, updated lighting, exterior security cameras, parking lot repair, and interior suite renovations. Each building is a metal-frame structure with a metal standing-seam pitched roof. Each suite has assigned parking, ample power, and ample water for your use. The lease rates for all suites are as shown in the suite-level detail pages found by clicking the 'View Availability' buttons below. Each tenant will also pay their own electricity bill, phone bill, and internet charges Serious inquiries only. Courtesy to Brokers.
Presented by
West 1st Industrial Park | Eugene, OR 97402
Hmm, there seems to have been an error sending your message. Please try again.
Thanks! Your message was sent.


















