Your email has been sent.
Highlights
- Convenient access to the 110 Freeway for efficient transportation and distribution.
- Air-conditioned office space with LED lighting for improved work environment.
- Two ground-level roll-up loading doors for streamlined loading and unloading.
- Clear span warehouse with 12 to 14-foot clear heights for flexible operations.
- Distributed power infrastructure to support various industrial uses.
- Six on-site parking spaces to accommodate staff and visitors.
Features
All Available Space(1)
Display Rental Rate as
- Space
- Size
- Term
- Rental Rate
- Space Use
- Build-Out
- Available
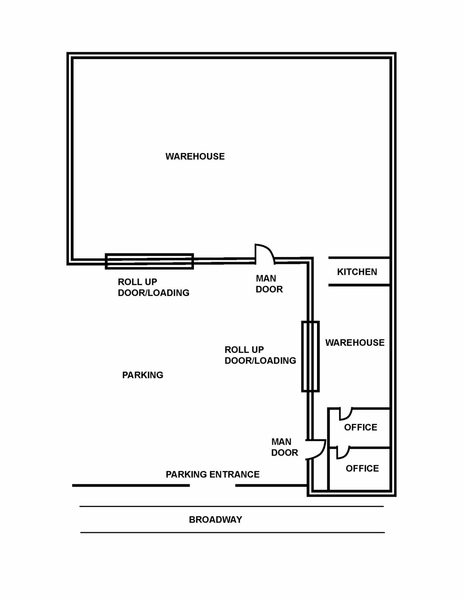
This industrial property offers 5,320 square feet of functional space in a highly accessible Los Angeles location. Positioned near the 110 Freeway, the site provides excellent connectivity for distribution and logistics operations. The building includes approximately 450 square feet of office space, creating a balanced layout for administrative and operational needs. The property features two ground-level roll-up loading doors, clear heights ranging from 12 to 14 feet, and a clear span warehouse design that maximizes usable space. Additional amenities include LED lighting, distributed power, and air-conditioned offices for enhanced comfort. Six on-site parking spaces support employee and visitor convenience. Available immediately, this property is well-suited for businesses seeking efficient warehouse functionality with office integration in a central Los Angeles location.
- Listed rate may not include certain utilities, building services and property expenses
- 2 Drive Ins
- Two ground-level roll-up loading doors
- Stand Alone Building
- Full Kitchen Buildout
- Includes 450 SF of dedicated office space
- Air-conditioned offices with LED lighting
- Close access to 110 Freeway for easy distribution
- Gated Secure Parking
| Space | Size | Term | Rental Rate | Space Use | Build-Out | Available |
| 1st Floor | 5,320 SF | 3-5 Years | $24.80 CAD/SF/YR $2.07 CAD/SF/MO $131,955 CAD/YR $10,996 CAD/MO | Industrial | Full Build-Out | Now |
1st Floor
| Size |
| 5,320 SF |
| Term |
| 3-5 Years |
| Rental Rate |
| $24.80 CAD/SF/YR $2.07 CAD/SF/MO $131,955 CAD/YR $10,996 CAD/MO |
| Space Use |
| Industrial |
| Build-Out |
| Full Build-Out |
| Available |
| Now |
1st Floor
| Size | 5,320 SF |
| Term | 3-5 Years |
| Rental Rate | $24.80 CAD/SF/YR |
| Space Use | Industrial |
| Build-Out | Full Build-Out |
| Available | Now |
This industrial property offers 5,320 square feet of functional space in a highly accessible Los Angeles location. Positioned near the 110 Freeway, the site provides excellent connectivity for distribution and logistics operations. The building includes approximately 450 square feet of office space, creating a balanced layout for administrative and operational needs. The property features two ground-level roll-up loading doors, clear heights ranging from 12 to 14 feet, and a clear span warehouse design that maximizes usable space. Additional amenities include LED lighting, distributed power, and air-conditioned offices for enhanced comfort. Six on-site parking spaces support employee and visitor convenience. Available immediately, this property is well-suited for businesses seeking efficient warehouse functionality with office integration in a central Los Angeles location.
- Listed rate may not include certain utilities, building services and property expenses
- Includes 450 SF of dedicated office space
- 2 Drive Ins
- Air-conditioned offices with LED lighting
- Two ground-level roll-up loading doors
- Close access to 110 Freeway for easy distribution
- Stand Alone Building
- Gated Secure Parking
- Full Kitchen Buildout
Property Overview
The property is located on South Broadway in Los Angeles, California, with proximity to the 110 Freeway. It consists of an industrial building with warehouse and office components. The site includes two ground-level loading doors, on-site parking, and a clear span interior. The building has distributed power and air-conditioned office areas.
Warehouse Facility Facts
Select Tenants
- Floor
- Tenant Name
- Industry
- 1st
- Angel City Woodshop
- Manufacturing
- 1st
- M & T Apparel Inc
- Retailer
Presented by
3904 S Broadway
Hmm, there seems to have been an error sending your message. Please try again.
Thanks! Your message was sent.






