Your email has been sent.
Village Office Park Bellevue, NE 68123 225 - 3,136 SF of Space Available



Park Highlights
- 3,200 sq. ft Suite. Accredited SCIF general secure room. Department of Defense DDA secure. Multiple vendors for fiber and cable.
Park Facts
| Total Space Available | 3,136 SF | Park Type | Office Park |
| Total Space Available | 3,136 SF |
| Park Type | Office Park |
All Available Spaces(2)
Display Rental Rate as
- Space
- Size
- Term
- Rental Rate
- Space Use
- Build-Out
- Available
Rental rate is $625 per month, full service. High quality tenant finishes. 1 large office or flex/office area suitable for workstations or cubicles. Twin Creek Office Park is this area's premier business park. Highly desirable Raynor Parkway address. Very stable tenant base in this building with infrequent turnover. Rental space is not often available and leases quickly. Rental rate is $625 per month, full service.
- Rate includes utilities, building services and property expenses
- Open Floor Plan Layout
- 1 Private Office
- 4 Workstations
- Space is in Excellent Condition
- Fully Carpeted
- Recessed Lighting
- Emergency Lighting
- DDA Compliant
- High Quality Finishes
- Fully Built-Out as Standard Office
- Fits 1 - 4 People
- 1 Conference Room
- Finished Ceilings: 8’
- Central Air and Heating
- Drop Ceilings
- After Hours HVAC Available
- Accent Lighting
- Wheelchair Accessible
- Great Co-Tenancy
| Space | Size | Term | Rental Rate | Space Use | Build-Out | Available |
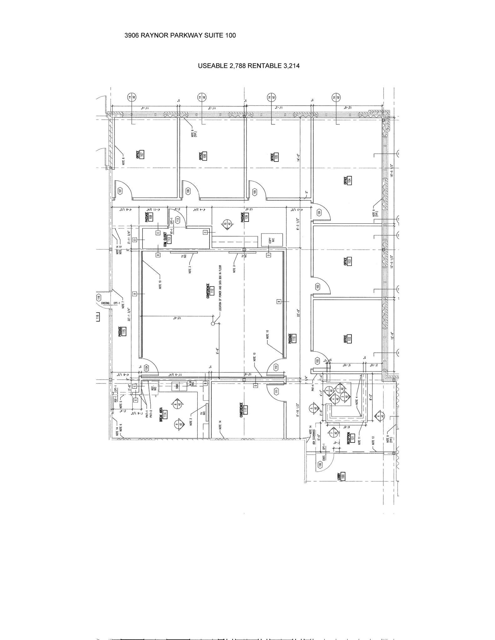
| 1st Floor, Ste 107 | 225 SF | Negotiable | Upon Request Upon Request Upon Request Upon Request | Office | Full Build-Out | Now |
3906 Raynor Pky - 1st Floor - Ste 107
- Space
- Size
- Term
- Rental Rate
- Space Use
- Build-Out
- Available
Finished office space. Six (6) private offices - all with widows, including one corner office. Conference room, Kitchen, and flex room. Flex room could fit 6 to 8 workstations. Data room has independent cooling system. could be used as an additional private office. Originally built out as medical offices, could be converted back to medical use.
- Lease rate does not include utilities, property expenses or building services
- Fits 8 - 24 People
- 1 Conference Room
- Finished Ceilings: 8’ - 12’
- Central Air and Heating
- Corner Space
- Natural Light
- Fully Built-Out as Standard Office
- 6 Private Offices
- 8 Workstations
- Space is in Excellent Condition
- Fully Carpeted
- High Ceilings
- After Hours HVAC Available
| Space | Size | Term | Rental Rate | Space Use | Build-Out | Available |
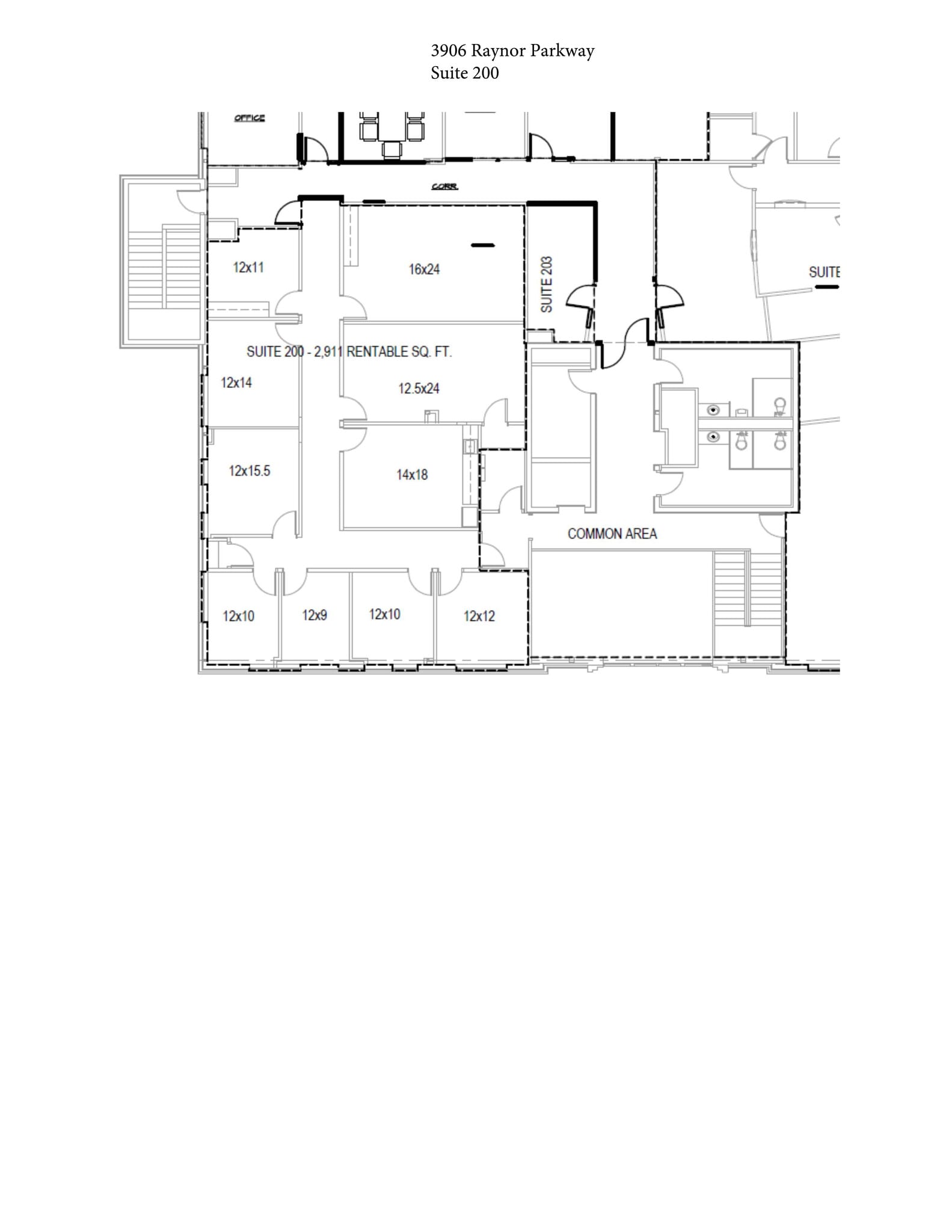
| 2nd Floor, Ste 200 | 2,911 SF | Negotiable | $22.57 CAD/SF/YR $1.88 CAD/SF/MO $65,699 CAD/YR $5,475 CAD/MO | Office/Medical | Full Build-Out | Now |
3802 Raynor Pky - 2nd Floor - Ste 200
3906 Raynor Pky - 1st Floor - Ste 107
| Size | 225 SF |
| Term | Negotiable |
| Rental Rate | Upon Request |
| Space Use | Office |
| Build-Out | Full Build-Out |
| Available | Now |
Rental rate is $625 per month, full service. High quality tenant finishes. 1 large office or flex/office area suitable for workstations or cubicles. Twin Creek Office Park is this area's premier business park. Highly desirable Raynor Parkway address. Very stable tenant base in this building with infrequent turnover. Rental space is not often available and leases quickly. Rental rate is $625 per month, full service.
- Rate includes utilities, building services and property expenses
- Fully Built-Out as Standard Office
- Open Floor Plan Layout
- Fits 1 - 4 People
- 1 Private Office
- 1 Conference Room
- 4 Workstations
- Finished Ceilings: 8’
- Space is in Excellent Condition
- Central Air and Heating
- Fully Carpeted
- Drop Ceilings
- Recessed Lighting
- After Hours HVAC Available
- Emergency Lighting
- Accent Lighting
- DDA Compliant
- Wheelchair Accessible
- High Quality Finishes
- Great Co-Tenancy
3802 Raynor Pky - 2nd Floor - Ste 200
| Size | 2,911 SF |
| Term | Negotiable |
| Rental Rate | $22.57 CAD/SF/YR |
| Space Use | Office/Medical |
| Build-Out | Full Build-Out |
| Available | Now |
Finished office space. Six (6) private offices - all with widows, including one corner office. Conference room, Kitchen, and flex room. Flex room could fit 6 to 8 workstations. Data room has independent cooling system. could be used as an additional private office. Originally built out as medical offices, could be converted back to medical use.
- Lease rate does not include utilities, property expenses or building services
- Fully Built-Out as Standard Office
- Fits 8 - 24 People
- 6 Private Offices
- 1 Conference Room
- 8 Workstations
- Finished Ceilings: 8’ - 12’
- Space is in Excellent Condition
- Central Air and Heating
- Fully Carpeted
- Corner Space
- High Ceilings
- Natural Light
- After Hours HVAC Available
Select Tenants at This Property
- Floor
- Tenant Name
- Industry
- 2nd
- Healing Place
- Health Care and Social Assistance
- 2nd
- MRG
- Health Care and Social Assistance
- 1st
- Nebraska Medicine
- Health Care and Social Assistance
Park Overview
LARGE OFFICE WINDOWS! Views of lake and treed hillside! Twin Creek Office Park is this area's premier business park. Highly desirable Raynor Parkway address. Very stable tenant base in this building with infrequent turnover. Rental space is not often available and leases quickly. Walking distance to Courtyard by Marriott and Beardmore Event Center. Modern two story all brick building. Suites with secure conference rooms. Accredited SCIF general secure conference rooms. Department of Defense secure. DDA secure. Multiple vendors to supply fiber and cable needs - high speed - high bandwidth.
Presented by
Twin Creek LP
Village Office Park | Bellevue, NE 68123
Hmm, there seems to have been an error sending your message. Please try again.
Thanks! Your message was sent.






