Log In/Sign Up
Your email has been sent.
3932 Swift Rd 2,230 SF 100% Leased Office Building Sarasota, FL 34231 $929,813 CAD ($416.96 CAD/SF)



Investment Highlights
- Heavy daytime vehicle traffic
- New Impact Windows & Doors
- Lots of natural light
Executive Summary
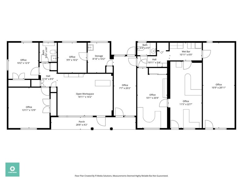
Freestanding 2,230± SF office building ideally positioned on Swift Road just one block south of Bee Ridge Road, offering excellent visibility and exposure to over 21,700 vehicles per day. This fully leased, four-unit office property features individual office suites ranging from 365 SF to 755 SF, providing a diversified tenant mix and stable income stream. The building has been well maintained and recently upgraded with new impact-rated windows and doors, reducing near-term capital expenditures. Its manageable size and suite configuration make it a low-maintenance investment with minimal management demands. Centrally located in a well-established Sarasota submarket with convenient access to US-41, downtown Sarasota, and surrounding residential and commercial corridors, this property presents a compelling opportunity for investors seeking dependable cash flow in a strong office location.
Financial Summary (Actual - 2025) Click Here to Access |
Annual (CAD) | Annual Per SF (CAD) |
|---|---|---|
| Gross Rental Income |
$99,999
|
$9.99
|
| Other Income |
-
|
-
|
| Vacancy Loss |
-
|
-
|
| Effective Gross Income |
$99,999
|
$9.99
|
| Taxes |
$99,999
|
$9.99
|
| Operating Expenses |
-
|
-
|
| Total Expenses |
$99,999
|
$9.99
|
| Net Operating Income |
-
|
-
|
Financial Summary (Actual - 2025) Click Here to Access
| Gross Rental Income (CAD) | |
|---|---|
| Annual | $99,999 |
| Annual Per SF | $9.99 |
| Other Income (CAD) | |
|---|---|
| Annual | - |
| Annual Per SF | - |
| Vacancy Loss (CAD) | |
|---|---|
| Annual | - |
| Annual Per SF | - |
| Effective Gross Income (CAD) | |
|---|---|
| Annual | $99,999 |
| Annual Per SF | $9.99 |
| Taxes (CAD) | |
|---|---|
| Annual | $99,999 |
| Annual Per SF | $9.99 |
| Operating Expenses (CAD) | |
|---|---|
| Annual | - |
| Annual Per SF | - |
| Total Expenses (CAD) | |
|---|---|
| Annual | $99,999 |
| Annual Per SF | $9.99 |
| Net Operating Income (CAD) | |
|---|---|
| Annual | - |
| Annual Per SF | - |
Property Facts
Sale Type
Investment
Property Type
Building Size
2,230 SF
Building Class
B
Year Built
1954
Price
$929,813 CAD
Price Per SF
$416.96 CAD
Percent Leased
100%
Tenancy
Multiple
Building Height
1 Story
Typical Floor Size
2,230 SF
Building FAR
0.29
Lot Size
0.18 AC
Zoning
OPI - OFFICE,PROFESSIONAL INSTITUTIONAL
Parking
12 Spaces (5.38 Spaces per 1,000 SF Leased)
Amenities
- Signage
- Air Conditioning
Major Tenants Click Here to Access
- Tenant
- Industry
- SF Occupied
- Rent/SF
- Lease End
- Sarasota Process Servers
- Professional, Scientific, and Technical Services
-
99,999 SF
- -
- -
| Tenant | Industry | SF Occupied | Rent/SF | Lease End | ||
| Sarasota Process Servers | Professional, Scientific, and Technical Services | 99,999 SF | - | - |
1 1
Moderately walkable
60/100
Moderately drivable
60/100
Limited public transit
30/100
Fairly bikeable
50/100
Property Taxes
| Parcel Number | 0074-01-0006 | Total Assessment | $503,769 CAD |
| Land Assessment | $0 CAD | Annual Taxes | -$1 CAD ($0.00 CAD/SF) |
| Improvements Assessment | $0 CAD | Tax Year | 2025 |
Property Taxes
Parcel Number
0074-01-0006
Land Assessment
$0 CAD
Improvements Assessment
$0 CAD
Total Assessment
$503,769 CAD
Annual Taxes
-$1 CAD ($0.00 CAD/SF)
Tax Year
2025
1 of 21
Videos
Matterport 3D Exterior
Matterport 3D Tour
Photos
Street View
Street
Map
1 of 1
Presented by
3932 Swift Rd
Already a member? Log In
Hmm, there seems to have been an error sending your message. Please try again.
Thanks! Your message was sent.

