Your email has been sent.
3940 S Eastern Ave 1,546 SF of Office/Medical Space Available in Las Vegas, NV 89119



Sublease Highlights
- Second-generation medical/clinical space with existing build-out
- Cost-effective alternative to new construction
- Strong Eastern Ave exposure and easy access
- Suitable for medical, imaging support, wellness, lab, or related healthcare users
All Available Space(1)
Display Rental Rate as
- Space
- Size
- Term
- Rental Rate
- Space Use
- Build-Out
- Available
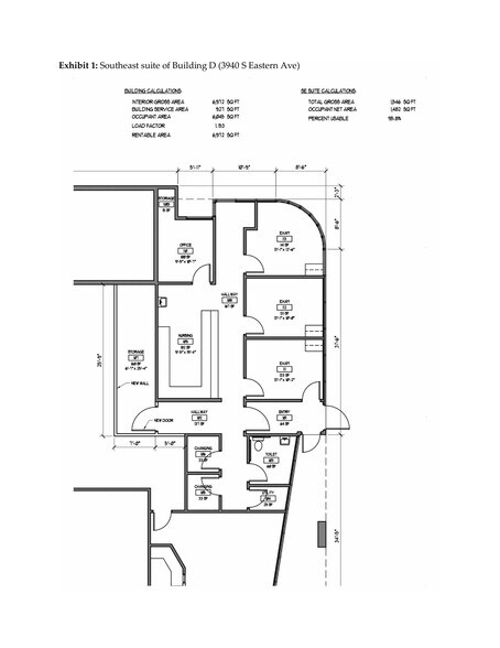
Approximately 1,546 rentable sf it includes 3 exam rooms, an office, waiting room, a nurse’s station, 2 changing rooms, 1 bathroom and a storage area. Asking rent is $1.53/sf and NNN’s are currently at $0.41/sf with 3 years left on the lease.
- Sublease space available from current tenant
- Fully Built-Out as Health Care Space
- Reception Area
- 1 Private Office
- 3 Exam Rooms
- 2 Changing Rooms
- Lease rate does not include utilities, property expenses or building services
- 4 Private Offices
- Private Restrooms
- Nurse's Station
- Private Restroom
- Waiting Room
| Space | Size | Term | Rental Rate | Space Use | Build-Out | Available |
| 1st Floor, Ste Bldg D, A-207 | 1,546 SF | Jun 2030 | $25.15 CAD/SF/YR $2.10 CAD/SF/MO $38,887 CAD/YR $3,241 CAD/MO | Office/Medical | Full Build-Out | Now |
1st Floor, Ste Bldg D, A-207
| Size |
| 1,546 SF |
| Term |
| Jun 2030 |
| Rental Rate |
| $25.15 CAD/SF/YR $2.10 CAD/SF/MO $38,887 CAD/YR $3,241 CAD/MO |
| Space Use |
| Office/Medical |
| Build-Out |
| Full Build-Out |
| Available |
| Now |
1st Floor, Ste Bldg D, A-207
| Size | 1,546 SF |
| Term | Jun 2030 |
| Rental Rate | $25.15 CAD/SF/YR |
| Space Use | Office/Medical |
| Build-Out | Full Build-Out |
| Available | Now |
Approximately 1,546 rentable sf it includes 3 exam rooms, an office, waiting room, a nurse’s station, 2 changing rooms, 1 bathroom and a storage area. Asking rent is $1.53/sf and NNN’s are currently at $0.41/sf with 3 years left on the lease.
- Sublease space available from current tenant
- Lease rate does not include utilities, property expenses or building services
- Fully Built-Out as Health Care Space
- 4 Private Offices
- Reception Area
- Private Restrooms
- 1 Private Office
- Nurse's Station
- 3 Exam Rooms
- Private Restroom
- 2 Changing Rooms
- Waiting Room
Property Overview
High-visibility medical/diagnostic sublease opportunity at 3940 S. Eastern Ave. ±1,546 SF of second-generation clinical/healthcare or professional office space available within a larger ±6,972 SF medical tenancy—ideal for imaging-related uses, specialty medical, wellness, lab, or healthcare services. Efficient layout with existing improvements in place, allowing an incoming subtenant to reduce buildout time and capital outlay versus a raw shell. Sublease term runs through the remaining master lease term. Subtenant to pay base rent plus CAM/operating expenses (NNN) on a proportionate share basis. Flexible occupancy timing with a target start date of February 1, 2026 (or sooner by agreement), subject to approval. Call Bridget Atterbom 702-807-7463 or email Bridget@BridgetAtterbom with any questions about this property. Contact (702) 401-2237 Aareon Smith-Allen for any questions and showings.
- Bus Line
- Courtyard
- Signage
Property Facts
Presented by
3940 S Eastern Ave
Hmm, there seems to have been an error sending your message. Please try again.
Thanks! Your message was sent.

