Log In/Sign Up
Your email has been sent.
3990 Sam Wilson Road 3990 Sam Wilson Rd 23,153 SF Industrial Building Charlotte, NC 28214 $8,914,100 CAD ($385.01 CAD/SF)



INVESTMENT HIGHLIGHTS
- 10 Parking Spaces
- Entire building is heated and cooled
- Excellent access to I-85 and I-485
EXECUTIVE SUMMARY
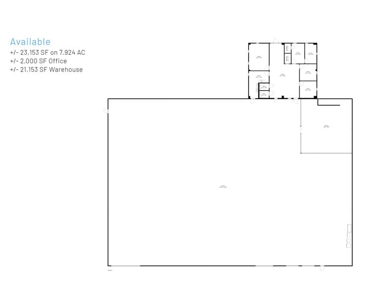
+/- 23,153 SF on 7.924 AC Available for Sale
+/- 2,000 SF Office
+/- 21,153 SF Warehouse
An excellent opportunity to purchase or lease an industrial building situated on +/- 7.94 AC. The property features four private offices, a breakroom, a conference room, an open bullpen, and warehouse space. Located along the proposed LYNX Silver Line and just steps from the future Sam Wilson station, this site offers unique amenities and a prime location. It’s conveniently positioned only 1.3 miles from I-485, 2.3 miles from I-85, and 3 miles from Charlotte Douglas International Airport, making it a highly accessible acquisition opportunity along Wilkinson Blvd.
Sale Price $6,500,000
Lease Rate $20/SF NNN fees at $1.17/SF
+/- 2,000 SF Office
+/- 21,153 SF Warehouse
An excellent opportunity to purchase or lease an industrial building situated on +/- 7.94 AC. The property features four private offices, a breakroom, a conference room, an open bullpen, and warehouse space. Located along the proposed LYNX Silver Line and just steps from the future Sam Wilson station, this site offers unique amenities and a prime location. It’s conveniently positioned only 1.3 miles from I-485, 2.3 miles from I-85, and 3 miles from Charlotte Douglas International Airport, making it a highly accessible acquisition opportunity along Wilkinson Blvd.
Sale Price $6,500,000
Lease Rate $20/SF NNN fees at $1.17/SF
PROPERTY FACTS
| Price | $8,914,100 CAD | No. Stories | 1 |
| Price Per SF | $385.01 CAD | Year Built | 1989 |
| Sale Type | Investment or Owner User | Tenancy | Single |
| Property Type | Industrial | Parking Ratio | 0.73/1,000 SF |
| Property Subtype | Warehouse | Clear Ceiling Height | 17’9” |
| Building Class | B | No. Dock-High Doors/Loading | 2 |
| Lot Size | 7.92 AC | No. Drive In / Grade-Level Doors | 2 |
| Rentable Building Area | 23,153 SF | ||
| Zoning | I-1 CD - I-1 Industrial CD | ||
| Price | $8,914,100 CAD |
| Price Per SF | $385.01 CAD |
| Sale Type | Investment or Owner User |
| Property Type | Industrial |
| Property Subtype | Warehouse |
| Building Class | B |
| Lot Size | 7.92 AC |
| Rentable Building Area | 23,153 SF |
| No. Stories | 1 |
| Year Built | 1989 |
| Tenancy | Single |
| Parking Ratio | 0.73/1,000 SF |
| Clear Ceiling Height | 17’9” |
| No. Dock-High Doors/Loading | 2 |
| No. Drive In / Grade-Level Doors | 2 |
| Zoning | I-1 CD - I-1 Industrial CD |
AMENITIES
- Air Conditioning
SPACE AVAILABILITY
- SPACE
- SIZE
- SPACE USE
- CONDITION
- AVAILABLE
+/- 23,153 SF on 7.924 AC Available for Sale +/- 2,000 SF Office +/- 21,153 SF Warehouse
| Space | Size | Space Use | Condition | Available |
| 1st Floor | 21,153 SF | Industrial | - | Now |
1st Floor
| Size |
| 21,153 SF |
| Space Use |
| Industrial |
| Condition |
| - |
| Available |
| Now |
1 of 1
VIDEOS
MATTERPORT 3D EXTERIOR
MATTERPORT 3D TOUR
PHOTOS
STREET VIEW
STREET
MAP
1st Floor
| Size | 21,153 SF |
| Space Use | Industrial |
| Condition | - |
| Available | Now |
+/- 23,153 SF on 7.924 AC Available for Sale +/- 2,000 SF Office +/- 21,153 SF Warehouse
1 1
PROPERTY TAXES
| Parcel Number | 113-046-08 | Improvements Assessment | $1,569,147 CAD |
| Land Assessment | $2,340,004 CAD | Total Assessment | $3,909,150 CAD |
PROPERTY TAXES
Parcel Number
113-046-08
Land Assessment
$2,340,004 CAD
Improvements Assessment
$1,569,147 CAD
Total Assessment
$3,909,150 CAD
1 of 23
VIDEOS
MATTERPORT 3D EXTERIOR
MATTERPORT 3D TOUR
PHOTOS
STREET VIEW
STREET
MAP
1 of 1
Presented by
3990 Sam Wilson Road | 3990 Sam Wilson Rd
Already a member? Log In
Hmm, there seems to have been an error sending your message. Please try again.
Thanks! Your message was sent.


