Log In/Sign Up
Your email has been sent.
Highlights
- Convenient access to the Garden State Parkway and major regional highways.
- Located near NJ Transit stations and Newark Liberty International Airport.
- Flexible floor plans across three stories plus a lower level.
- Ample on-site parking with 216 spaces and a 3.5/1,000 SF parking ratio.
- Surrounded by retail, dining, and hospitality amenities within minutes.
Display Rental Rate as
- Space
- Size
- Term
- Rental Rate
- Space Use
- Build-Out
- Available
Potential storage space.
- Tenant responsible for usage of lights and electrical outlets
| Space | Size | Term | Rental Rate | Space Use | Build-Out | Available |
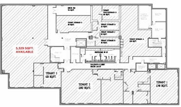
| Lower Level | 5,329 SF | Negotiable | $21.89 CAD/SF/YR $1.82 CAD/SF/MO $116,628 CAD/YR $9,719 CAD/MO | Flex | Partial Build-Out | Now |
Lower Level
| Size |
| 5,329 SF |
| Term |
| Negotiable |
| Rental Rate |
| $21.89 CAD/SF/YR $1.82 CAD/SF/MO $116,628 CAD/YR $9,719 CAD/MO |
| Space Use |
| Flex |
| Build-Out |
| Partial Build-Out |
| Available |
| Now |
Spaces are matched based on search filters: space use, price, and size
- Space
- Size
- Term
- Rental Rate
- Space Use
- Build-Out
- Available
Potential storage space.
- Tenant responsible for usage of lights and electrical outlets
Has additional 3,129 sf of potential storage space on the lower level.
- Tenant responsible for usage of lights and electrical outlets
- Mostly Open Floor Plan Layout
- Fully Built-Out as Standard Office
- Fits 10 - 32 People
- Tenant responsible for usage of lights and electrical outlets
- Mostly Open Floor Plan Layout
- Space is in Excellent Condition
- Fully Built-Out as Standard Office
- Fits 42 - 133 People
| Space | Size | Term | Rental Rate | Space Use | Build-Out | Available |
| Lower Level | 5,329 SF | Negotiable | $21.89 CAD/SF/YR $1.82 CAD/SF/MO $116,628 CAD/YR $9,719 CAD/MO | Flex | Partial Build-Out | Now |
| 1st Floor | 3,991 SF | Negotiable | $38.98 CAD/SF/YR $3.25 CAD/SF/MO $155,583 CAD/YR $12,965 CAD/MO | Office | Full Build-Out | Now |
| 3rd Floor | 16,619 SF | Negotiable | $38.98 CAD/SF/YR $3.25 CAD/SF/MO $647,866 CAD/YR $53,989 CAD/MO | Office | Full Build-Out | Now |
Lower Level
| Size |
| 5,329 SF |
| Term |
| Negotiable |
| Rental Rate |
| $21.89 CAD/SF/YR $1.82 CAD/SF/MO $116,628 CAD/YR $9,719 CAD/MO |
| Space Use |
| Flex |
| Build-Out |
| Partial Build-Out |
| Available |
| Now |
1st Floor
| Size |
| 3,991 SF |
| Term |
| Negotiable |
| Rental Rate |
| $38.98 CAD/SF/YR $3.25 CAD/SF/MO $155,583 CAD/YR $12,965 CAD/MO |
| Space Use |
| Office |
| Build-Out |
| Full Build-Out |
| Available |
| Now |
3rd Floor
| Size |
| 16,619 SF |
| Term |
| Negotiable |
| Rental Rate |
| $38.98 CAD/SF/YR $3.25 CAD/SF/MO $647,866 CAD/YR $53,989 CAD/MO |
| Space Use |
| Office |
| Build-Out |
| Full Build-Out |
| Available |
| Now |
1 of 4
Videos
Matterport 3D Exterior
Matterport 3D Tour
Photos
Street View
Street
Map
Lower Level
| Size | 5,329 SF |
| Term | Negotiable |
| Rental Rate | $21.89 CAD/SF/YR |
| Space Use | Flex |
| Build-Out | Partial Build-Out |
| Available | Now |
Potential storage space.
- Tenant responsible for usage of lights and electrical outlets
1st Floor
| Size | 3,991 SF |
| Term | Negotiable |
| Rental Rate | $38.98 CAD/SF/YR |
| Space Use | Office |
| Build-Out | Full Build-Out |
| Available | Now |
Has additional 3,129 sf of potential storage space on the lower level.
- Tenant responsible for usage of lights and electrical outlets
- Fully Built-Out as Standard Office
- Mostly Open Floor Plan Layout
- Fits 10 - 32 People
3rd Floor
| Size | 16,619 SF |
| Term | Negotiable |
| Rental Rate | $38.98 CAD/SF/YR |
| Space Use | Office |
| Build-Out | Full Build-Out |
| Available | Now |
- Tenant responsible for usage of lights and electrical outlets
- Fully Built-Out as Standard Office
- Mostly Open Floor Plan Layout
- Fits 42 - 133 People
- Space is in Excellent Condition
Property Overview
The Property is located within Union County, NJ and within the Northern New Jersey MSA. With easy access to multiple NJ Transit stations and Newark Liberty International Airport, the area offers exceptional connectivity and dynamic growth potential.
- Food Service
Property Facts
Building Type
Office
Year Built
1984
Building Height
3 Stories
Building Size
58,840 SF
Building Class
A
Typical Floor Size
19,613 SF
Unfinished Ceiling Height
9’
Parking
216 Surface Parking Spaces
Surface Tandem Parking
Covered Parking
Covered Tandem Parking
Reserved Parking
Select Tenants
- Floor
- Tenant Name
- Industry
- Multiple
- Kiewit
- Construction
- 1st
- Leman
- Transportation and Warehousing
- 1st
- Leman USA Inc
- Transportation and Warehousing
Fairly walkable
40/100
Exceptionally drivable
100/100
Some public transit
40/100
Somewhat bikeable
30/100
1 of 4
Videos
Matterport 3D Exterior
Matterport 3D Tour
Photos
Street View
Street
Map
Presented by
4 Commerce Dr
Already a member? Log In
Hmm, there seems to have been an error sending your message. Please try again.
Thanks! Your message was sent.







