Your email has been sent.
Highlights
- Once the tallest building in the world, the landmark neo-Gothic skyscraper soars over 927-feet above Manhattan’s vibrant Financial District.
- Take in dramatic panoramic views of the city and Hudson River, and enjoy world-class property management and white-glove concierge services.
- Comprised of over 1.2-million square feet of New York City’s finest Class A office suites with efficient floor plans ranging from 6,000 to 38,000 SF.
- Centrally located with convenient access to 12 subway lines, bus routes, and minutes from ferries and water taxis to New Jersey and Staten Island.
All Available Spaces(8)
Display Rental Rate as
- Space
- Size
- Term
- Rental Rate
- Space Use
- Build-Out
- Available
-Fully built out restaurant space -Full kitchen infrastructure in place -Seating capacity for up to 400 -7 day pedestrian activity catering to the heavy office population, tourists, and residents -Wall Street entrance -Central Downtown location with direct access to all major transportation lines -Photos and video available upon request.
- Fully Built-Out as a Restaurant or Café Space
- Space is in Excellent Condition
- Located in-line with other retail
-Raw space, LL will build to suit -Full service Vaults amenity center available to all tenants -Central Downtown location with direct access to all major transportation lines
- Open Floor Plan Layout
-Brand new high end pre-built -Built with 7 offices, conference room, pantry and large open area -Excellent light and views -New corridor and restrooms -Full service Vaults amenity center available to all tenants -Central Downtown location with direct access to all major transportation lines -Photos and video available upon request.
- Fully Built-Out as Standard Office
- Fits 19 - 59 People
- 1 Conference Room
- Kitchen
- Mostly Open Floor Plan Layout
- 7 Private Offices
- Space is in Excellent Condition
-Full floor opportunity. -LL will build to suit. -Full service Vaults amenity center available to all tenants -Central Downtown location with direct access to all major transportation lines
- Mostly Open Floor Plan Layout
- Space is in Excellent Condition
- Fits 72 - 230 People
- Built with 3 offices, conference room, pantry, and open area - Space is fully wired to a patch panel -Excellent light and views -Full service Vaults amenity center available to all tenants -Central Downtown location with direct access to all major transportation lines
- Fully Built-Out as Standard Office
- Fits 16 - 49 People
- 1 Conference Room
- Mostly Open Floor Plan Layout
- 3 Private Offices
- Space is in Excellent Condition
-Built with 18 windowed offices, 2 internal offices, conference room, and pantry. -Great light and views. -Full service Vaults amenity center available to all tenants -Central Downtown location with direct access to all major transportation lines -Photos and video available upon request.
- Fully Built-Out as Standard Office
- 20 Private Offices
- Space is in Excellent Condition
- Fits 27 - 85 People
- 1 Conference Room
-Full floor opportunity. -LL will build to suit. -15"6' ceiling heights. -Full service Vaults amenity center available to all tenants -Central Downtown location with direct access to all major transportation lines -Photos and video available upon request.
- Open Floor Plan Layout
- Finished Ceilings: 15’6”
-Rare full floor tower availability -Space is currently built and can be modified or LL can provide a build to suit -Exceptional light and views in all directions -Full service Vaults amenity center available to all tenants -Central Downtown location with direct access to all major transportation lines -Photos and video available upon request.
- Partially Built-Out as Standard Office
- Fits 25 - 79 People
- Natural Light
- Mostly Open Floor Plan Layout
- Private Restrooms
| Space | Size | Term | Rental Rate | Space Use | Build-Out | Available |
| Ground, Ste 101 | 18,500 SF | 10-20 Years | Upon Request Upon Request Upon Request Upon Request | Retail | Full Build-Out | Now |
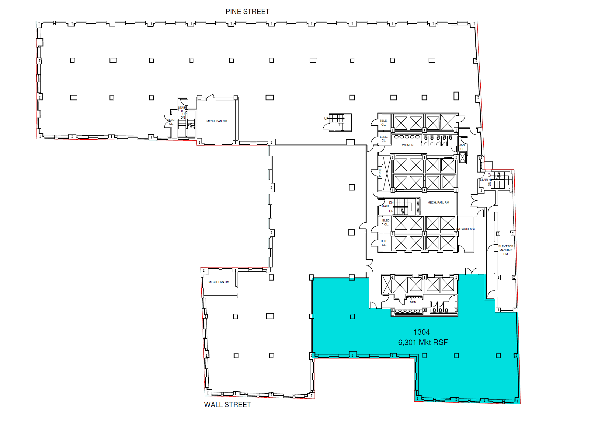
| 13th Floor, Ste 1304 | 6,301 SF | Negotiable | Upon Request Upon Request Upon Request Upon Request | Office | Shell Space | Now |
| 21st Floor, Ste 2107 | 7,277 SF | Negotiable | Upon Request Upon Request Upon Request Upon Request | Office | Full Build-Out | Now |
| 22nd Floor, Ste Entire | 28,647 SF | Negotiable | Upon Request Upon Request Upon Request Upon Request | Office | Spec Suite | Now |
| 23rd Floor, Ste 2302 | 6,092 SF | Negotiable | Upon Request Upon Request Upon Request Upon Request | Office | Full Build-Out | Now |
| 31st Floor, Ste 3102 | 10,581 SF | Negotiable | Upon Request Upon Request Upon Request Upon Request | Office | Full Build-Out | Now |
| 34th Floor, Ste Entire | 13,100 SF | Negotiable | Upon Request Upon Request Upon Request Upon Request | Office | Shell Space | Now |
| 44th Floor, Ste Entire | 9,812 SF | Negotiable | Upon Request Upon Request Upon Request Upon Request | Office | Partial Build-Out | Now |
Ground, Ste 101
| Size |
| 18,500 SF |
| Term |
| 10-20 Years |
| Rental Rate |
| Upon Request Upon Request Upon Request Upon Request |
| Space Use |
| Retail |
| Build-Out |
| Full Build-Out |
| Available |
| Now |
13th Floor, Ste 1304
| Size |
| 6,301 SF |
| Term |
| Negotiable |
| Rental Rate |
| Upon Request Upon Request Upon Request Upon Request |
| Space Use |
| Office |
| Build-Out |
| Shell Space |
| Available |
| Now |
21st Floor, Ste 2107
| Size |
| 7,277 SF |
| Term |
| Negotiable |
| Rental Rate |
| Upon Request Upon Request Upon Request Upon Request |
| Space Use |
| Office |
| Build-Out |
| Full Build-Out |
| Available |
| Now |
22nd Floor, Ste Entire
| Size |
| 28,647 SF |
| Term |
| Negotiable |
| Rental Rate |
| Upon Request Upon Request Upon Request Upon Request |
| Space Use |
| Office |
| Build-Out |
| Spec Suite |
| Available |
| Now |
23rd Floor, Ste 2302
| Size |
| 6,092 SF |
| Term |
| Negotiable |
| Rental Rate |
| Upon Request Upon Request Upon Request Upon Request |
| Space Use |
| Office |
| Build-Out |
| Full Build-Out |
| Available |
| Now |
31st Floor, Ste 3102
| Size |
| 10,581 SF |
| Term |
| Negotiable |
| Rental Rate |
| Upon Request Upon Request Upon Request Upon Request |
| Space Use |
| Office |
| Build-Out |
| Full Build-Out |
| Available |
| Now |
34th Floor, Ste Entire
| Size |
| 13,100 SF |
| Term |
| Negotiable |
| Rental Rate |
| Upon Request Upon Request Upon Request Upon Request |
| Space Use |
| Office |
| Build-Out |
| Shell Space |
| Available |
| Now |
44th Floor, Ste Entire
| Size |
| 9,812 SF |
| Term |
| Negotiable |
| Rental Rate |
| Upon Request Upon Request Upon Request Upon Request |
| Space Use |
| Office |
| Build-Out |
| Partial Build-Out |
| Available |
| Now |
Ground, Ste 101
| Size | 18,500 SF |
| Term | 10-20 Years |
| Rental Rate | Upon Request |
| Space Use | Retail |
| Build-Out | Full Build-Out |
| Available | Now |
-Fully built out restaurant space -Full kitchen infrastructure in place -Seating capacity for up to 400 -7 day pedestrian activity catering to the heavy office population, tourists, and residents -Wall Street entrance -Central Downtown location with direct access to all major transportation lines -Photos and video available upon request.
- Fully Built-Out as a Restaurant or Café Space
- Located in-line with other retail
- Space is in Excellent Condition
13th Floor, Ste 1304
| Size | 6,301 SF |
| Term | Negotiable |
| Rental Rate | Upon Request |
| Space Use | Office |
| Build-Out | Shell Space |
| Available | Now |
-Raw space, LL will build to suit -Full service Vaults amenity center available to all tenants -Central Downtown location with direct access to all major transportation lines
- Open Floor Plan Layout
21st Floor, Ste 2107
| Size | 7,277 SF |
| Term | Negotiable |
| Rental Rate | Upon Request |
| Space Use | Office |
| Build-Out | Full Build-Out |
| Available | Now |
-Brand new high end pre-built -Built with 7 offices, conference room, pantry and large open area -Excellent light and views -New corridor and restrooms -Full service Vaults amenity center available to all tenants -Central Downtown location with direct access to all major transportation lines -Photos and video available upon request.
- Fully Built-Out as Standard Office
- Mostly Open Floor Plan Layout
- Fits 19 - 59 People
- 7 Private Offices
- 1 Conference Room
- Space is in Excellent Condition
- Kitchen
22nd Floor, Ste Entire
| Size | 28,647 SF |
| Term | Negotiable |
| Rental Rate | Upon Request |
| Space Use | Office |
| Build-Out | Spec Suite |
| Available | Now |
-Full floor opportunity. -LL will build to suit. -Full service Vaults amenity center available to all tenants -Central Downtown location with direct access to all major transportation lines
- Mostly Open Floor Plan Layout
- Fits 72 - 230 People
- Space is in Excellent Condition
23rd Floor, Ste 2302
| Size | 6,092 SF |
| Term | Negotiable |
| Rental Rate | Upon Request |
| Space Use | Office |
| Build-Out | Full Build-Out |
| Available | Now |
- Built with 3 offices, conference room, pantry, and open area - Space is fully wired to a patch panel -Excellent light and views -Full service Vaults amenity center available to all tenants -Central Downtown location with direct access to all major transportation lines
- Fully Built-Out as Standard Office
- Mostly Open Floor Plan Layout
- Fits 16 - 49 People
- 3 Private Offices
- 1 Conference Room
- Space is in Excellent Condition
31st Floor, Ste 3102
| Size | 10,581 SF |
| Term | Negotiable |
| Rental Rate | Upon Request |
| Space Use | Office |
| Build-Out | Full Build-Out |
| Available | Now |
-Built with 18 windowed offices, 2 internal offices, conference room, and pantry. -Great light and views. -Full service Vaults amenity center available to all tenants -Central Downtown location with direct access to all major transportation lines -Photos and video available upon request.
- Fully Built-Out as Standard Office
- Fits 27 - 85 People
- 20 Private Offices
- 1 Conference Room
- Space is in Excellent Condition
34th Floor, Ste Entire
| Size | 13,100 SF |
| Term | Negotiable |
| Rental Rate | Upon Request |
| Space Use | Office |
| Build-Out | Shell Space |
| Available | Now |
-Full floor opportunity. -LL will build to suit. -15"6' ceiling heights. -Full service Vaults amenity center available to all tenants -Central Downtown location with direct access to all major transportation lines -Photos and video available upon request.
- Open Floor Plan Layout
- Finished Ceilings: 15’6”
44th Floor, Ste Entire
| Size | 9,812 SF |
| Term | Negotiable |
| Rental Rate | Upon Request |
| Space Use | Office |
| Build-Out | Partial Build-Out |
| Available | Now |
-Rare full floor tower availability -Space is currently built and can be modified or LL can provide a build to suit -Exceptional light and views in all directions -Full service Vaults amenity center available to all tenants -Central Downtown location with direct access to all major transportation lines -Photos and video available upon request.
- Partially Built-Out as Standard Office
- Mostly Open Floor Plan Layout
- Fits 25 - 79 People
- Private Restrooms
- Natural Light
Matterport 3D Tour
Property Overview
40 Wall Street, also known as the Trump Building, is a 72-story neo-Gothic skyscraper located on Wall Street between Nassau and William Streets in the Financial District of Manhattan in New York City. Erected in 1930 as the headquarters of the Manhattan Company, the landmark property soars over 927 feet and was once the tallest building in the world. The tower’s façade incorporates limestone, brick, spandrels between the windows on each story, with a signature turquoise spire adorning the top of the building. Tenants and guests are greeted by an immaculate grand marble lobby, accessed through three central revolving glass doors flanked by glass double doors, all trimmed with polished brass. Ensuring speed and efficiency, the property boasts 27 passenger elevators and seven freight elevators for convenience. Brand-new cabs were installed on all passenger elevators during the property’s complete elevator modernization. Floor plans ranging from 6,000 to 38,000 square feet contribute to the 1.2 million square feet of Class A office space. Not only do tenants enjoy the finest commercial office suites that New York City has to offer, but they can expect superior in-house management and white-glove concierge services. From the upper floors, take in unobstructed panoramic views of the Manhattan skyline and the Hudson River. The building features Wall Street’s most coveted event space, The Vaults. Here, entertain and leave an impression on guests with access to private conference rooms, a private wine room, bistro and coffee bar, bar and lounge area, multimedia game room, and collaborative workspaces. 40 Wall Street is situated in the heart of one of the most vibrant and powerful neighborhoods in the world. An unbeatable downtown location with proximity to the finest restaurants, shops, and entertainment in the world. Take advantage of unmatched access to the 2, 3, J, M, Z, 4, and 5 subways lines, PATH, and minutes to bus routes, ferries, and water taxi stations. Representing a new age of style, sophistication, and prestige, The Trump Building is one of the most desirable commercial properties in New York City and beyond.
- 24 Hour Access
- Banking
- Bus Line
- Metro/Subway
- Property Manager on Site
- Energy Star Labeled
Property Facts
Marketing Brochure
Nearby Amenities
Restaurants |
|||
|---|---|---|---|
| Delmonico's Restaurant | Steak | $$$$ | 4 min walk |
| Sophie's Restaurant | American | $$ | 4 min walk |
| Trinity Place Bar & Restaurant | American | $$$ | 4 min walk |
| Reserve Cut | Kosher | $$$$ | 4 min walk |
| Wall & Water | American | $$$ | 4 min walk |
| Route 66 Smokehouse | American | $$$ | 6 min walk |
Retail |
||
|---|---|---|
| Duane Reade | Drug Store | In Building |
| Bright Horizons | Daycare | 2 min walk |
| Chase | Bank | 2 min walk |
| AT&T Wireless | Wireless Communications | 2 min walk |
| Citi | Bank | 2 min walk |
| New York Sports Club | Fitness | 3 min walk |
| Whole Foods Market | Supermarket | 4 min walk |
Hotels |
|
|---|---|
| Residence Inn |
126 rooms
2 min drive
|
| Hotel Indigo |
127 rooms
2 min drive
|
| Virgin Hotels |
460 rooms
12 min drive
|
About Financial District
Located at the Southern tip of Manhattan, the Financial District, like its name suggests, is home to Wall Street and the New York Stock Exchange—the financial center of the United States. Dominated by the banking industry, tenants like Citicorp, JPMorgan, and Morgan Stanley have a significant presence here.
Occupiers continue to be attracted by the bevy of quality office buildings, superior connectivity to Brooklyn and New Jersey, growing residential development, and evolving retail landscape at nearby Brookfield Place and Pier 17.
This evolving landscape has played a major part in why tenants in the tech, media, and coworking sectors have grown their footprint here.
Leasing Team
Myles Fennon, Senior Vice President Head of Commercial Leasing
Previously spent 9+ years at Cushman and Wakefield in the Agency Consulting Group representing a wide spectrum of owners including Rolex, Jack Resnick & Sons, Savanna, Union Investment, Extell, Tishman Speyer, Janus Property Group, The Sapir Organization, The Moinian Group, Daija Insurance and Moody's.
Began his career at Newmark where he learned the business of commercial real estate in his 7 years at the company. During that time he represented an ownership roster that included The Paramount Group, Philips International, ELK Investors, and Samson Management.
Penn State undergraduate and six time 100 mile ultramarathon finisher currently residing in East Harlem with his wife and daughter.
About the Owner
Other Properties in the TRUMP ORGANIZATION Portfolio
About the Architect
Other Properties in the Carrère and Hastings Portfolio
Presented by
The Trump Building | 40 Wall St
Hmm, there seems to have been an error sending your message. Please try again.
Thanks! Your message was sent.

























