Your email has been sent.
Bellemeade Retail Space 400 Bellemeade St 1,388 - 13,272 SF of 4-Star Space Available in Greensboro, NC 27401



All Available Spaces(3)
Display Rental Rate as
- Space
- Size
- Term
- Rental Rate
- Space Use
- Condition
- Available
Nine-story Class A office tower featuring modern architecture and a striking masonry and glass façade. The building offers first-floor retail and restaurant opportunities, complemented by a ground-level fitness center for tenant convenience. Enjoy sweeping views of Downtown Greensboro and First National Bank Field, home of the Greensboro Grasshoppers. Positioned at the prominent intersection of Bellemeade and Eugene Street, the property provides excellent visibility and accessibility. Tenants benefit from the adjacent City of Greensboro Parking Deck, ensuring ample parking options.
- Rate includes utilities, building services and property expenses
- Located in-line with other retail
- Central Air Conditioning
- Partially Built-Out as Standard Retail Space
- Can be combined with additional space(s) for up to 6,531 SF of adjacent space
- Ample Parking Available
Nine-story Class A office tower featuring modern architecture and a striking masonry and glass façade. The building offers first-floor retail and restaurant opportunities, complemented by a ground-level fitness center for tenant convenience. Enjoy sweeping views of Downtown Greensboro and First National Bank Field, home of the Greensboro Grasshoppers. Positioned at the prominent intersection of Bellemeade and Eugene Street, the property provides excellent visibility and accessibility. Tenants benefit from the adjacent City of Greensboro Parking Deck, ensuring ample parking options.
- Rate includes utilities, building services and property expenses
- Can be combined with additional space(s) for up to 6,531 SF of adjacent space
- Strategic Location
- Fits 4 - 12 People
- Located in-line with other retail
- Unique, modern architecture
Nine-story Class A office tower featuring modern architecture and a striking masonry and glass façade. The building offers first-floor retail and restaurant opportunities, complemented by a ground-level fitness center for tenant convenience. Enjoy sweeping views of Downtown Greensboro and First National Bank Field, home of the Greensboro Grasshoppers. Positioned at the prominent intersection of Bellemeade and Eugene Street, the property provides excellent visibility and accessibility. Tenants benefit from the adjacent City of Greensboro Parking Deck, ensuring ample parking options.
- Rate includes utilities, building services and property expenses
- Mostly Open Floor Plan Layout
- Natural Light
- Partially Built-Out as Standard Office
- Fits 17 - 54 People
- Strategic Location
| Space | Size | Term | Rental Rate | Space Use | Condition | Available |
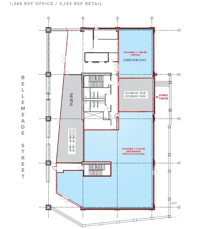
| 1st Floor | 5,143 SF | 5-10 Years | Upon Request Upon Request Upon Request Upon Request | Retail | Partial Build-Out | Now |
| 1st Floor | 1,388 SF | 5-10 Years | Upon Request Upon Request Upon Request Upon Request | Office | - | Now |
| 3rd Floor | 6,741 SF | 5-10 Years | Upon Request Upon Request Upon Request Upon Request | Office | Partial Build-Out | Now |
1st Floor
| Size |
| 5,143 SF |
| Term |
| 5-10 Years |
| Rental Rate |
| Upon Request Upon Request Upon Request Upon Request |
| Space Use |
| Retail |
| Condition |
| Partial Build-Out |
| Available |
| Now |
1st Floor
| Size |
| 1,388 SF |
| Term |
| 5-10 Years |
| Rental Rate |
| Upon Request Upon Request Upon Request Upon Request |
| Space Use |
| Office |
| Condition |
| - |
| Available |
| Now |
3rd Floor
| Size |
| 6,741 SF |
| Term |
| 5-10 Years |
| Rental Rate |
| Upon Request Upon Request Upon Request Upon Request |
| Space Use |
| Office |
| Condition |
| Partial Build-Out |
| Available |
| Now |
1st Floor
| Size | 5,143 SF |
| Term | 5-10 Years |
| Rental Rate | Upon Request |
| Space Use | Retail |
| Condition | Partial Build-Out |
| Available | Now |
Nine-story Class A office tower featuring modern architecture and a striking masonry and glass façade. The building offers first-floor retail and restaurant opportunities, complemented by a ground-level fitness center for tenant convenience. Enjoy sweeping views of Downtown Greensboro and First National Bank Field, home of the Greensboro Grasshoppers. Positioned at the prominent intersection of Bellemeade and Eugene Street, the property provides excellent visibility and accessibility. Tenants benefit from the adjacent City of Greensboro Parking Deck, ensuring ample parking options.
- Rate includes utilities, building services and property expenses
- Partially Built-Out as Standard Retail Space
- Located in-line with other retail
- Can be combined with additional space(s) for up to 6,531 SF of adjacent space
- Central Air Conditioning
- Ample Parking Available
1st Floor
| Size | 1,388 SF |
| Term | 5-10 Years |
| Rental Rate | Upon Request |
| Space Use | Office |
| Condition | - |
| Available | Now |
Nine-story Class A office tower featuring modern architecture and a striking masonry and glass façade. The building offers first-floor retail and restaurant opportunities, complemented by a ground-level fitness center for tenant convenience. Enjoy sweeping views of Downtown Greensboro and First National Bank Field, home of the Greensboro Grasshoppers. Positioned at the prominent intersection of Bellemeade and Eugene Street, the property provides excellent visibility and accessibility. Tenants benefit from the adjacent City of Greensboro Parking Deck, ensuring ample parking options.
- Rate includes utilities, building services and property expenses
- Fits 4 - 12 People
- Can be combined with additional space(s) for up to 6,531 SF of adjacent space
- Located in-line with other retail
- Strategic Location
- Unique, modern architecture
3rd Floor
| Size | 6,741 SF |
| Term | 5-10 Years |
| Rental Rate | Upon Request |
| Space Use | Office |
| Condition | Partial Build-Out |
| Available | Now |
Nine-story Class A office tower featuring modern architecture and a striking masonry and glass façade. The building offers first-floor retail and restaurant opportunities, complemented by a ground-level fitness center for tenant convenience. Enjoy sweeping views of Downtown Greensboro and First National Bank Field, home of the Greensboro Grasshoppers. Positioned at the prominent intersection of Bellemeade and Eugene Street, the property provides excellent visibility and accessibility. Tenants benefit from the adjacent City of Greensboro Parking Deck, ensuring ample parking options.
- Rate includes utilities, building services and property expenses
- Partially Built-Out as Standard Office
- Mostly Open Floor Plan Layout
- Fits 17 - 54 People
- Natural Light
- Strategic Location
Property Overview
• Available SF: +/- 1,388 – 8,129 SF • Nine-story, 110,306 SF mid-rise office tower • Class A office building with 1st floor retail /restaurant availability • Unique, modern architecture • Masonry and glass façade • Fitness center on ground floor • Expansive views of Downtown Greensboro and First National Bank Field (home of the Greensboro Grasshoppers) • City of Greensboro Parking Deck • Located at the intersection of Bellemeade and Eugene Street
- Fitness Center
- Signage
- Smoke Detector
Property Facts
Presented by
Bellemeade Retail Space | 400 Bellemeade St
Hmm, there seems to have been an error sending your message. Please try again.
Thanks! Your message was sent.







