Log In/Sign Up
Your email has been sent.
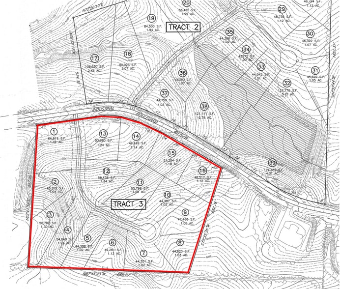
400 Industrial Blvd - Telford Hulsey Industrial Park - Lot 3 18.59 Acres of Commercial Land in Cleveland, GA 30528


Investment Highlights
- Part of Telford Hulsey Industrial Park
Property Facts
| Sale Type | Investment | Property Subtype | Commercial |
| No. Lots | 1 | Proposed Use | Industrial |
| Property Type | Land | Total Lot Size | 18.59 AC |
| Zoning | Industrial | ||
| Sale Type | Investment |
| No. Lots | 1 |
| Property Type | Land |
| Property Subtype | Commercial |
| Proposed Use | Industrial |
| Total Lot Size | 18.59 AC |
| Zoning | Industrial |
1 Lot Available
Lot 3
| Lot Size | 18.59 AC |
| Lot Size | 18.59 AC |
Description
Lot 3 - 18.59 +/- Acres Zoned Industrial Infrastructure in Place All Utilities Including Sewer Water Detention & Drainage in Place Excellent Accessibility 0.4 miles from Highway 129S
1 1
Not walkable
10/100
Exceptionally drivable
100/100
Not bikeable
10/100
Property Taxes
| Parcel Number | 050-142 | Improvements Assessment | $0 CAD |
| Land Assessment | $47,186 CAD | Total Assessment | $47,186 CAD |
Property Taxes
Parcel Number
050-142
Land Assessment
$47,186 CAD
Improvements Assessment
$0 CAD
Total Assessment
$47,186 CAD
1 of 3
Videos
Matterport 3D Exterior
Matterport 3D Tour
Photos
Street View
Street
Map
1 of 1
Presented by
400 Industrial Blvd - Telford Hulsey Industrial Park - Lot 3
Already a member? Log In
Hmm, there seems to have been an error sending your message. Please try again.
Thanks! Your message was sent.
