Your email has been sent.
Kolendorski Industrial Park Jackson Township, NJ 08527 80,000 - 680,000 SF of Industrial Space Available


Park Highlights
- Kolendorski Industrial Park offers up to 680,000 square feet of build-to-suit space across four state-of-the-art buildings in Central Jersey.
- Situated on 50 acres, the development is under construction and features three 200,000-square-foot buildings and an 80,000-square-foot building.
- Located in Jackson Township, this brand-new industrial park environment offers cost-effective pricing and proximity to regional ports and airports.
- Capitalize on a strategic location near Interstate 195 with excellent visibility and access to major metro areas like New York City and Philadelphia.
- Tenants benefit from soaring clear heights, dock doors for loading operations, ample parking, and flexible zoning for diverse industrial needs.
Park Facts
| Total Space Available | 680,000 SF | Park Type | Industrial Park |
| Total Space Available | 680,000 SF |
| Park Type | Industrial Park |
All Available Spaces(4)
Display Rental Rate as
- Space
- Size
- Term
- Rental Rate
- Space Use
- Build-Out
- Available
Shell build out.
- Space is in Excellent Condition
| Space | Size | Term | Rental Rate | Space Use | Build-Out | Available |
| 1st Floor | 80,000 SF | Negotiable | Upon Request Upon Request Upon Request Upon Request | Industrial | Shell Space | Now |
100 Kolendorski Rd - 1st Floor
- Space
- Size
- Term
- Rental Rate
- Space Use
- Build-Out
- Available
- Space is in Excellent Condition
- Shell Build Out
| Space | Size | Term | Rental Rate | Space Use | Build-Out | Available |
| 1st Floor | 200,000 SF | Negotiable | Upon Request Upon Request Upon Request Upon Request | Industrial | Shell Space | Now |
200 Kolendorski rd - 1st Floor
- Space
- Size
- Term
- Rental Rate
- Space Use
- Build-Out
- Available
- Space is in Excellent Condition
- Shell Build Out.
| Space | Size | Term | Rental Rate | Space Use | Build-Out | Available |
| 1st Floor | 200,000 SF | Negotiable | Upon Request Upon Request Upon Request Upon Request | Industrial | Shell Space | Now |
300 Kolendorski Rd - 1st Floor
- Space
- Size
- Term
- Rental Rate
- Space Use
- Build-Out
- Available
- Space is in Excellent Condition
- Shell Build Out.
| Space | Size | Term | Rental Rate | Space Use | Build-Out | Available |
| 1st Floor | 200,000 SF | Negotiable | Upon Request Upon Request Upon Request Upon Request | Industrial | Shell Space | Now |
400 Kolendorski Rd - 1st Floor
100 Kolendorski Rd - 1st Floor
| Size | 80,000 SF |
| Term | Negotiable |
| Rental Rate | Upon Request |
| Space Use | Industrial |
| Build-Out | Shell Space |
| Available | Now |
Shell build out.
- Space is in Excellent Condition
200 Kolendorski rd - 1st Floor
| Size | 200,000 SF |
| Term | Negotiable |
| Rental Rate | Upon Request |
| Space Use | Industrial |
| Build-Out | Shell Space |
| Available | Now |
- Space is in Excellent Condition
- Shell Build Out
300 Kolendorski Rd - 1st Floor
| Size | 200,000 SF |
| Term | Negotiable |
| Rental Rate | Upon Request |
| Space Use | Industrial |
| Build-Out | Shell Space |
| Available | Now |
- Space is in Excellent Condition
- Shell Build Out.
400 Kolendorski Rd - 1st Floor
| Size | 200,000 SF |
| Term | Negotiable |
| Rental Rate | Upon Request |
| Space Use | Industrial |
| Build-Out | Shell Space |
| Available | Now |
- Space is in Excellent Condition
- Shell Build Out.
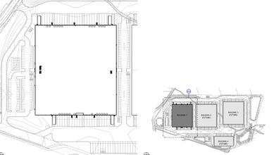
Site Plan
Park Overview
Kolendorski Industrial Park, located off Kolendorski Road, is a brand-new industrial development in Jackson Township, New Jersey. Currently under construction, the development will offer up to 680,000 square feet of build-to-suit space across four state-of-the-art buildings on a 50-acre development site. Businesses are invited to secure customized space for logistics, distribution, manufacturing, and more in a brand-new industrial hub. Strategic site positioning provides excellent visibility and access to Interstate 195. The industrial park is also within minutes of industrial and manufacturing neighbors off the adjacent Wright Debow Road. Tenants will benefit from easy property access, soaring clear heights, loading docks, ample parking, and flexible zoning regulations. Three buildings are 200,000 square feet each, and one is 80,000 square feet. The first building is currently under construction and offers 20 loading docks and a 40-foot clear height. Jackson Township, New Jersey, offers numerous advantages for businesses seeking strategically placed and cost-effective pricing. Major transportation routes, including Interstate 195, the Garden State Parkway, and the New Jersey Turnpike, provide connectivity to major transportation routes. This prime location allows businesses to efficiently access major metropolitan areas such as New York City and Philadelphia, as well as regional ports and airports.
Park Brochure
About Ocean County
Ocean County is known primarily for its beach communities, but farther inland lies a network of critical industrial assets totaling over 15 million square feet. Geographically, the area stretches from Jackson Township in the north to Little Egg Harbor Township in the south. Industrial stock is concentrated in Lakewood, Toms River, and Jackson Township, with large clusters around the Lakewood Township Municipal Airport.
Route 9 is a key artery in the movement of goods here, as it bisects the entire area and connects with the ports at Elizabeth and Newark further north. This highway connects with Route 37 for shore points heading east, as well as Route 70 going westward to Philadelphia.
Manufacturers and wholesalers make up the majority of industrial tenants in Ocean County. Church & Dwight is the single largest occupier, with its 250,000-square-foot personal care facility in Lakewood. Also in Lakewood is the nearly 192,000-square-foot headquarters of Woodhaven Lumber & Millwork.
Demographics
Regional Accessibility
Leasing Agent
Leasing Agent
About the Owner
Other Properties in the SURGE SPACES Portfolio
Presented by
Kolendorski Industrial Park | Jackson Township, NJ 08527
Hmm, there seems to have been an error sending your message. Please try again.
Thanks! Your message was sent.

