Your email has been sent.
Continental Executive Parke I 400 N Lakeview Pky 56,597 SF 22% Leased Office Building Vernon Hills, IL 60061 $3,306,000 CAD ($58.41 CAD/SF)



Investment Highlights
- Rare Infill Redevelopment Site – Few parcels of this scale remain in South Lake County with industrial building potential.
- Located in Continental Executive Park in Vernon Hills with immediate access to I-94, connecting Chicago, O’Hare, and Milwaukee.
- Corporate & Retail Adjacency – Situated near major corporate campuses, retail centers, and service amenities that enhance tenant appeal.
- Zoning Advantage – Currently zoned Office/Business Park, allowing for an easy transition to industrial uses.
- Strong Labor Market – Surrounded by a highly skilled workforce and dense residential base.
- High-Demand Submarket – Southern Lake County industrial vacancy remains near historic lows, driving demand for modern space.
Executive Summary
Property Facts
Amenities
- 24 Hour Access
- Banking
- Fitness Center
- Pond
- Property Manager on Site
Space Availability
- Space
- Size
- Space Use
- Build-Out
- Available
Suite 100 is 5,763 SF. It has a nice conference room, kitchen, ten private offices, and two file rooms. Bathrooms are located off suite.
- 1st Fl - 130
- 7,931 SF
- Flex
- Partial Build-Out
- Now
- 1st Fl-Ste 180
- 4,526 SF
- Office
- Full Build-Out
- Now
This is a proposed flex addition to the building. For the right tenant this is build-to-suit. 25' clear heights are proposed with upgraded power and 4 docks. When completed there could be 23,000 sf of flex space and 33,000 sf of office space. This would be perfect for a small to medium sized companies main office.
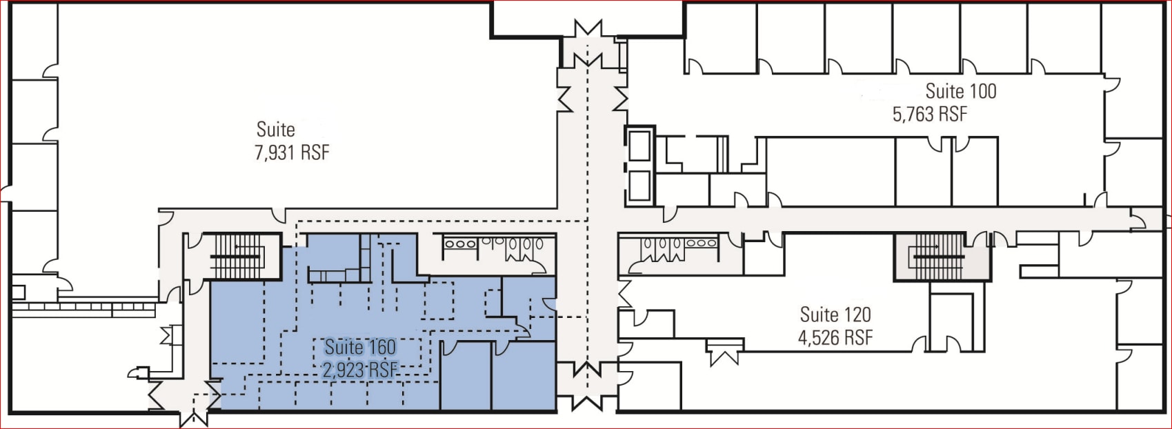
| Space | Size | Space Use | Build-Out | Available |
| 1st Fl-Ste 100 | 5,763 SF | Office | Partial Build-Out | Now |
| 1st Fl - 130 | 7,931 SF | Flex | Partial Build-Out | Now |
| 1st Fl-Ste 160 | 2,923 SF | Office | Partial Build-Out | Now |
| 1st Fl-Ste 180 | 4,526 SF | Office | Full Build-Out | Now |
| 1st Fl - BTS | 12,261 SF | Flex | Shell Space | 30 Days |
| 2nd Fl-Ste 200 | 23,193 SF | Office | Partial Build-Out | Now |
1st Fl-Ste 100
| Size |
| 5,763 SF |
| Space Use |
| Office |
| Build-Out |
| Partial Build-Out |
| Available |
| Now |
1st Fl - 130
| Size |
| 7,931 SF |
| Space Use |
| Flex |
| Build-Out |
| Partial Build-Out |
| Available |
| Now |
1st Fl-Ste 160
| Size |
| 2,923 SF |
| Space Use |
| Office |
| Build-Out |
| Partial Build-Out |
| Available |
| Now |
1st Fl-Ste 180
| Size |
| 4,526 SF |
| Space Use |
| Office |
| Build-Out |
| Full Build-Out |
| Available |
| Now |
1st Fl - BTS
| Size |
| 12,261 SF |
| Space Use |
| Flex |
| Build-Out |
| Shell Space |
| Available |
| 30 Days |
2nd Fl-Ste 200
| Size |
| 23,193 SF |
| Space Use |
| Office |
| Build-Out |
| Partial Build-Out |
| Available |
| Now |
1st Fl-Ste 100
| Size | 5,763 SF |
| Space Use | Office |
| Build-Out | Partial Build-Out |
| Available | Now |
Suite 100 is 5,763 SF. It has a nice conference room, kitchen, ten private offices, and two file rooms. Bathrooms are located off suite.
1st Fl-Ste 160
| Size | 2,923 SF |
| Space Use | Office |
| Build-Out | Partial Build-Out |
| Available | Now |
1st Fl - BTS
| Size | 12,261 SF |
| Space Use | Flex |
| Build-Out | Shell Space |
| Available | 30 Days |
This is a proposed flex addition to the building. For the right tenant this is build-to-suit. 25' clear heights are proposed with upgraded power and 4 docks. When completed there could be 23,000 sf of flex space and 33,000 sf of office space. This would be perfect for a small to medium sized companies main office.
2nd Fl-Ste 200
| Size | 23,193 SF |
| Space Use | Office |
| Build-Out | Partial Build-Out |
| Available | Now |
Property Taxes
| Parcel Numbers | Improvements Assessment | $735,337 CAD | |
| Land Assessment | $649,972 CAD | Total Assessment | $1,385,309 CAD |
Property Taxes
Presented by
Continental Executive Parke I | 400 N Lakeview Pky
Hmm, there seems to have been an error sending your message. Please try again.
Thanks! Your message was sent.







